查看完整案例


收藏

下载

翻译
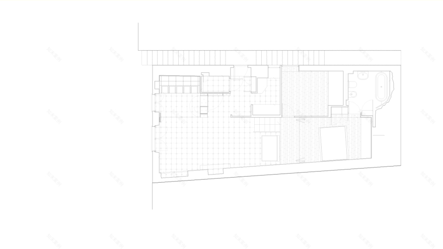
L’intervento consiste nella ristrutturazione di un appartamento affacciato sul porto di Portofino. Si compone di due livelli non collegati tra di loro: uno al piano terra in diretta connessione con il molo, utilizzata come camera/ magazzino e uno posto al primo piano dell’edificio, dove si sviluppa lo spazio abitativo con un impianto open space. La più grande sfida di questo progetto riguarda la creazione di uno spazio flessibile e trasformabile, in grado di adattarsi alle diverse esigenze e funzioni, attraverso la realizzazione di pannellature di legno a scomparsa. L’intero progetto trae ispirazione dai materiali utilizzati nelle barche, elemento presente nel porto su cui si affaccia l’edificio.
客服
消息
收藏
下载
最近


















