查看完整案例


收藏

下载

翻译
Khesht-Baf building located in west part of Tehran. The architecture of the building was handed over to the IMAGE ARCHITECTS when the construction of the skeleton and concrete was completed.
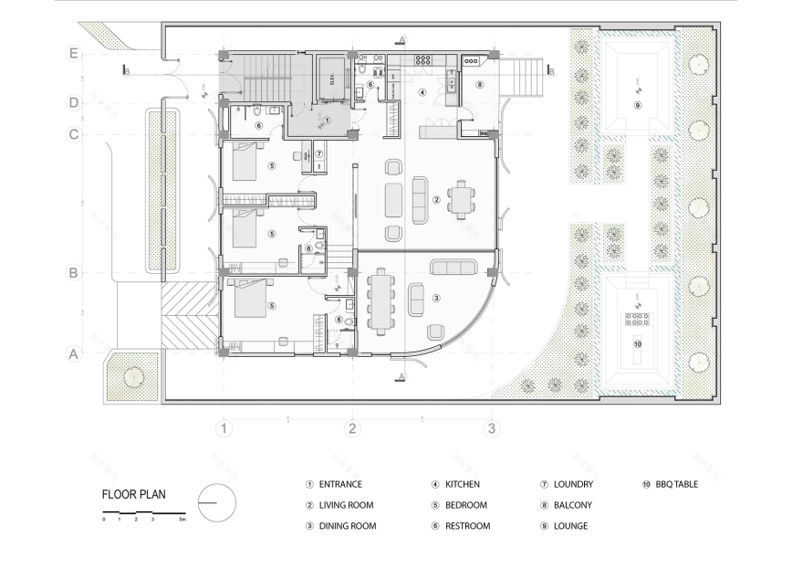
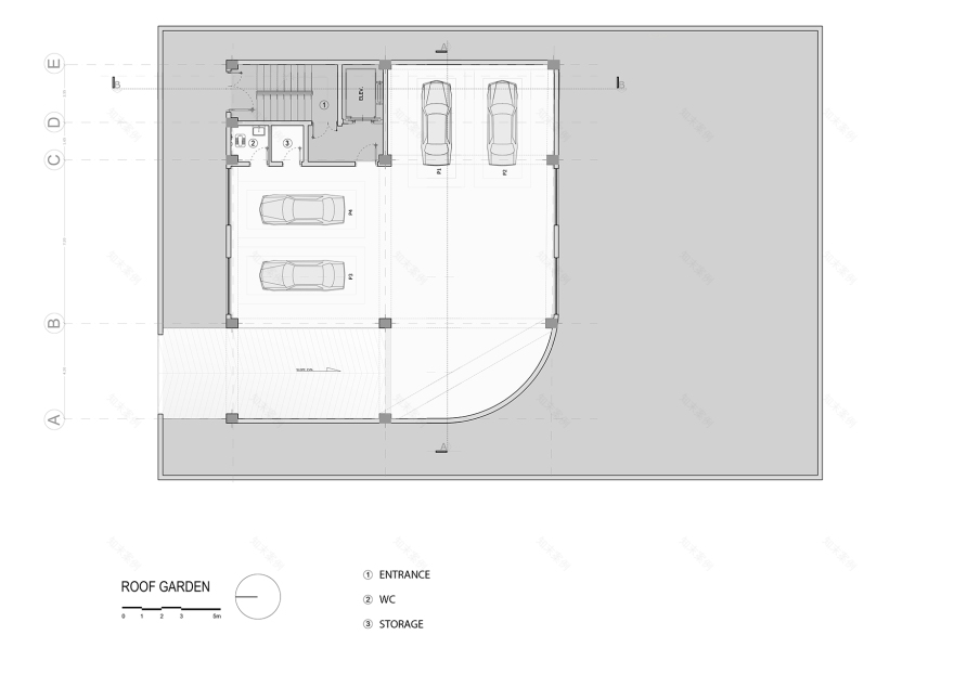
Khesht-Baf 4 floors, two of which are underground and used for swimming pool, gym, parking lot, storage room and mechanical room. The first and second floors are residential units.
The main challenge in this project was to create a space that meets the needs of Iranian life for two brothers living a modern life in a pre-constructed building with a strange and immaculate body.
In the first phase, separating the interior and exterior portions, spaces were provided for the activities of the two families in the roof garden, backyard and pool and gym. In addition, spatial separations within each unit were attempted to create a hierarchy and privacy.
One of the things to do in this regard is to add movable partitions inside the unit that separate the living and dinning room space. These panels increase the flexibility of the space for the user to make the space smaller or larger depending on the requirements and capacity.
Keeping privacy with surrounding buildings on the one hand and the view of the local park on the other made it difficult to decide on the extent and type of facade openings.
Therefore, curved panels were designed for the building's facade, with parametric patterns that feature openings that limit the visibility of the street into the rooms while enhancing the visibility of the interiors to the green space on the west side of the building.
This visual control induces a sense of security and a sense of relaxation in the spaces. In addition to the fundamental foundations of Iranian beliefs and customs, this privacy is also based on the principles of climate.
Creating lattice parametric shells can provide the needed heat in the winter, but annoying sunlight in the summer can't get in the room. In addition, the city's visual pollution filter was also a target controlled by brick panels. The framing of the view from the inside out as well as the fluidity of the parametrically expanded frame and patterns make the viewer experience a dynamic view.
In addition to the popular design issues, the need for a quick start-up of the construction and economic issues made the panels and architectural elements of the building modular. This increased the speed of operation of the building.
General Information
Project Name: Khesht-Baf
Architecture Firm: Imagearchitects
Completion Year: 2018
Gross Built Area:912 square meters
Project location: No8 , Mehr st. , 9th st , Simaie Iran blv. , Shahrak Gharb , Tehran , Iran
Lead Architects: Navid Tavallaie , Armin Shayanpour , Mohammad Mahdi Sharafatpeima
Media Provider
Photo credits: Mohammad Hossein Hamzeloui / Mohammad Mahdi Sharafatpeima
Additional Credits
Clients: Ahmad Damarchali
Landscape: imagearchitects
Executive manager: Elyas damirchi
Executive team: Amir Hossein Khavas Sefat
Supervisor: ED.group
Mechanical engineer: Ali Shahbazi
Electrical engineer: Mohammad Barati
客服
消息
收藏
下载
最近






































