查看完整案例

收藏

下载

翻译
HOME AFTER WORK
Residence
Location: Jerash - Jordan
Year: 2025
Area: 140 sqm
Type: Residence , Accommodation
Freelance Project
Instagram Linkedin Issuu Facebook
After thirty years of hard work, this home in Jerash, Jordan was designed as a place of rest, reflection, and joy for its owner. It is not a large house, but a thoughtful one, shaped to hold memories of the past and open space for the days ahead.The guest area, set on a separate level, allows him to welcome friends and family with warmth, while keeping his private spaces calm and personal. Around the house, gardens unfold, offering quiet corners to sit, breathe, and feel the changing light of the day.This is a home where life slows down, where mornings begin with the scent of earth and evenings end with the sound of wind through trees, a gentle beginning to a new chapter.
The brise-soleil is the project’s key feature, shaping both its identity and atmosphere. More than shading, it filters light into soft rhythms while offering privacy and openness. Inspired by Levantine traditions like the mashrabiya and stone latticework, it reinterprets these elements in a contemporary way, carrying forward a heritage of beauty, comfort, and harmony with the sun.
The project rests in an embrace of nature in Jerash, where the land itself becomes the true feature, setting it apart from any other place. Red soil, ancient olive trees, and the quiet spirit of the landscape give it a character of its own. Though modest in size, the house fulfills every need of its owner while honoring the land, treading lightly and with respect for the nature that cradles it.
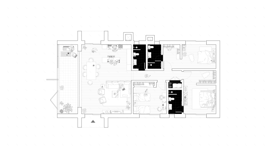
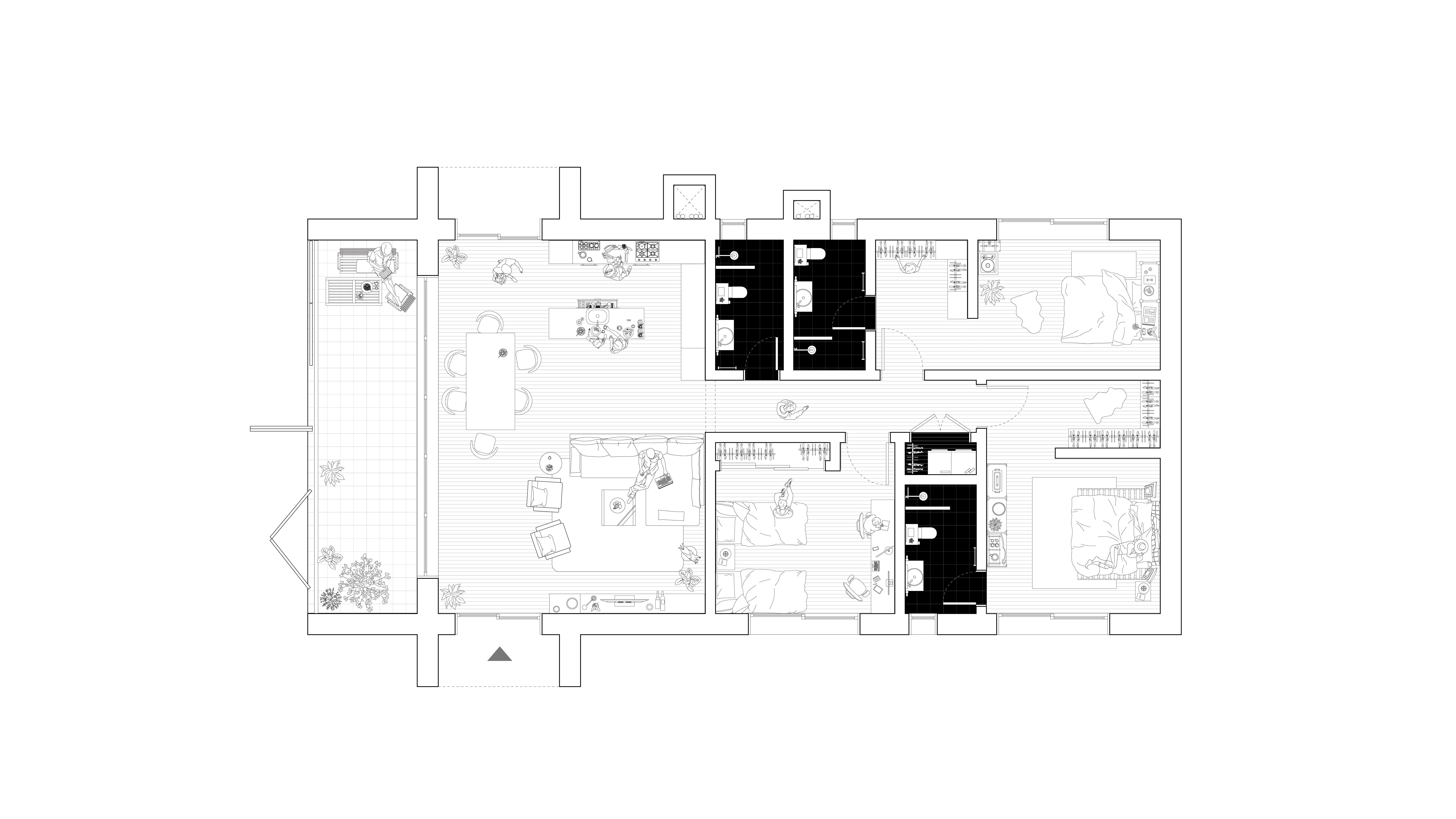
Floor Plan
Section
客服
消息
收藏
下载
最近








