创作上传
VIP
收藏下载
登录 | 注册有礼
知末案例
/
建筑
/
乡村建筑
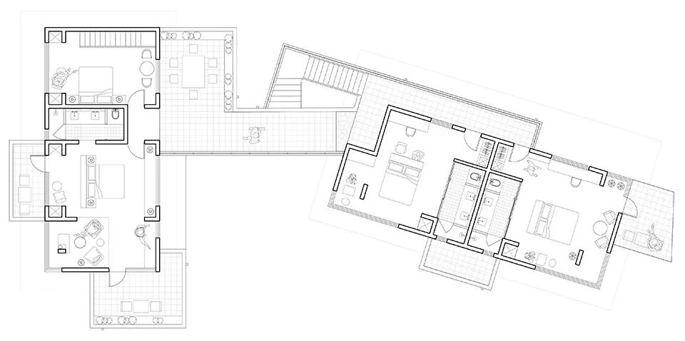
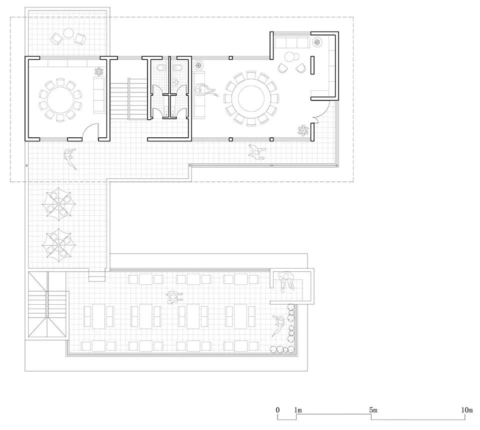
现代陕南民居的另一种可能丨中国商洛丨垣建筑
2025/09/21 21:25:51
查看完整案例
微信扫一扫
收藏
下载
分享
你可能还喜欢
换一换
激情生活小屋 | 传统与现代的融合
羊圈谷仓
乡村旧屋的现代重生——意大利 Venetian 乡村 1900 年代老屋室内设计案例
葡萄牙乡村度假屋改造 | 石头与木头的共生
高友愿景馆丨中国广西
珠海银坑艺术中心丨中国珠海丨MAD建筑事务所
“王师傅”的瞭望塔丨中国烟台丨大小景观
ACHOC甜品茶饮店丨中国常州丨艾得设计事务所
ASLA获奖作品 连接过去和未来的城市绿洲——嘉兴火车站景丨中国嘉兴丨致舍景观
Mission Rock社区景观设计丨美国丨Min De
客服
消息
收藏
下载
最近