查看完整案例

收藏

下载
项目名称: 柏林ZKU艺术与城市学中心改造
位置:德国
设计单位:Peter Grundmann Architekten
图片数量:27张
ZKU艺术与城市学中心于2012年成立。其前身为柏林莫阿比特的一座旧货运站。其多元化的活动不仅涵盖艺术、城市研究及各类音乐活动,还包括城市战略、讲座、电影放映、社区市集等。随着活动范围不断扩大,现有的空间很快便不敷使用。
▼项目概览,project overview © Yizhi Wang
▼活动中心,Center for Art and Urbanistics © Yizhi Wang
2016 年,ZKU艺术与城市学中心决定进行扩建。但由于项目四周均为公园,扩建必须以不占用任何开放空间的方式进行。最终的解决方案是:在原有未供暖的仓库上方加建一层。
▼周边环境,surrounding environment of the project © Yizhi Wang
建筑的原有屋顶被拆除,但地下层大厅的所有墙体和天花板均得以保留。新的结构环绕在现有砖墙之外,而这些砖墙保持原貌,未做保温处理,从而保留了建筑的工业特征。
▼新增结构概览,new structure overview © Yizhi Wang
▼建筑的工业特征,the industrial character of the building © Yizhi Wang
地下层与底层为大型活动空间。南侧的玻璃幕墙距离砖墙1.80米,形成类似画廊的空间。北侧的玻璃幕墙则后退6米,从而增加了一间房间。两座外部楼梯通向由环绕的廊道围合的上层空间。这些廊道既可从室内进入,也可从室外通行。屋顶被设计为大露台,旨在提供全景视野。
▼大型活动空间,the large event spaces © Yizhi Wang
▼不同的活动空间,different activity spaces © Yizhi Wang
▼上层空间,the upper floor © Yizhi Wang
▼楼梯与廊道,gallery walkways and staircases © Yizhi Wang
旧有与新建的元素均以开放的方式依次展开,如带屋顶的平台、楼梯、玻璃幕墙、结构本身、环廊、砖墙以及室内空间,最终形成一个开放而一体化的场所。这些建筑元素之间的动态互动,又因众多艺术家、文化工作者与社区团体的参与而进一步丰富,使其成为一座充满活力的艺术与城市交流中心。
▼室内细部,interior details © Yizhi Wang
▼建筑立面图,elevation drawing © Peter Grundmann Architekten
▼屋顶平面图,roof plan © Peter Grundmann Architekten
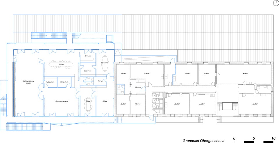
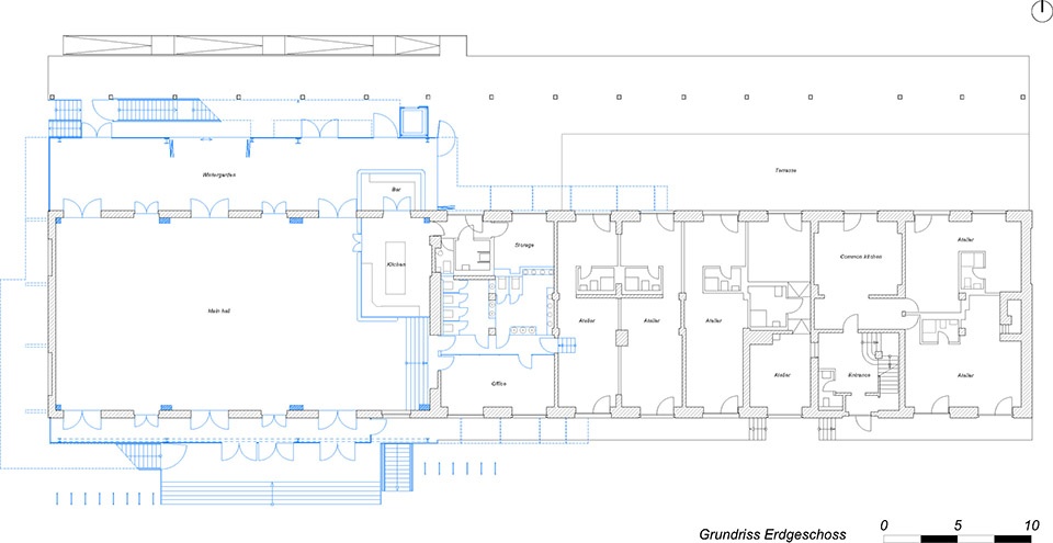
▼各层平面图,floor plan © Peter Grundmann Architekten
客服
消息
收藏
下载
最近





























