查看完整案例

收藏

下载

翻译
Villa Design
“Architectural furniture layout on the floor plans of a villa and making the necessary architectural modifications in one of Beni Suef’s neighborhoods, along with designing its façade.”
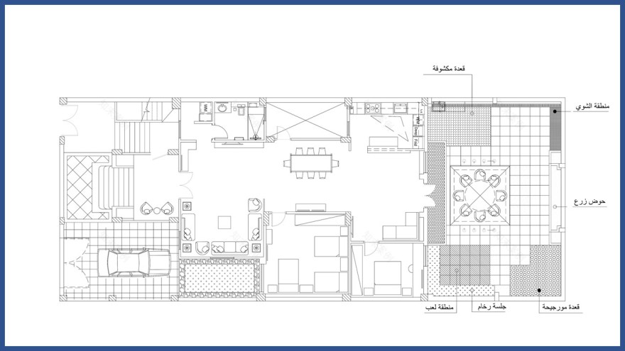
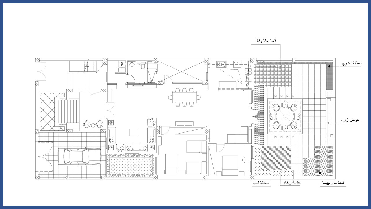
Ground floor
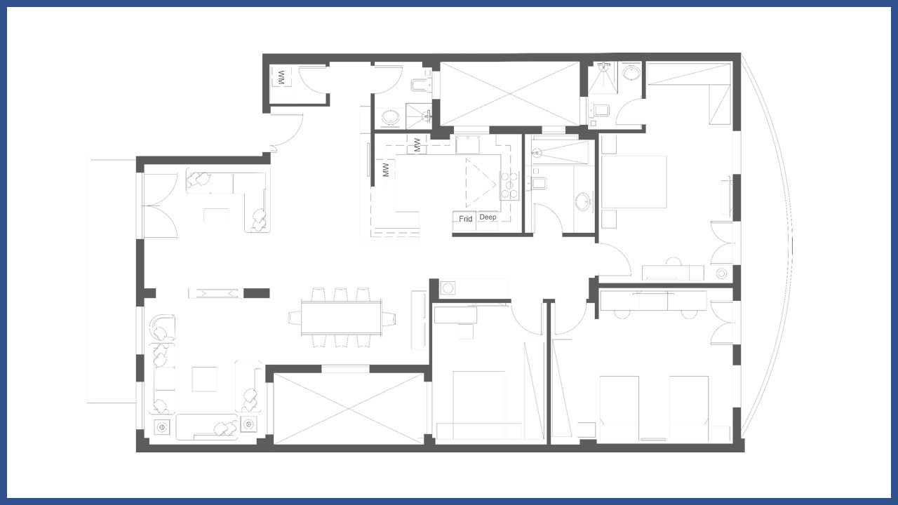
Typical floor
A picture of the site before designing the facade
The design of the new facade in day and night
Entrance
our hidden paradise
Balcony shots
Exterior shots
THANKS
客服
消息
收藏
下载
最近











