查看完整案例

收藏

下载

翻译
Architects:arba
Area:132m²
Year:2022
Photographs:Jérémie Léon
Category:Houses
City:Fontenay-sous-Bois
Country:France
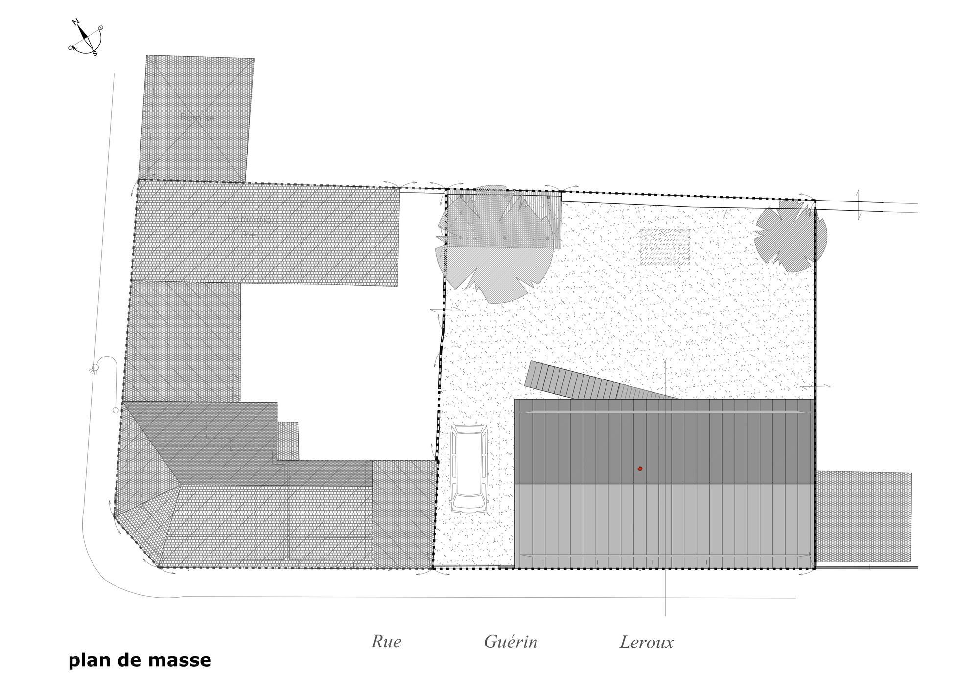
Text description provided by the architects. This dwelling is arranged along the street-facing boundary wall (preserved in its original state), which thus forms the masonry base as seen from the street.
It is sheltered by a 30° double-sloped roof made of red pigmented zinc with standing seams; between the two, vertical slats of raw wood filter and direct the view towards the public space while allowing sunlight to enter the dwelling and enabling the gables to be opened without creating a view of the adjoining buildings, as required by urban planning regulations.
Against a backdrop of wood cladding coated with black pine resin, these larch slats rotate slightly from west to east, creating a kinetic effect when viewed from the street.
Inside, this luminous, abstract belt forms the backdrop or stage background for the common area upstairs, designed as an observatory for the Vergers de l'Îlot, with a generous view to the northeast, at the rear of the building."
Project gallery
客服
消息
收藏
下载
最近






















