查看完整案例

收藏

下载
阿利坎特的耶稣圣母学校建于20世纪中期,位于塞拉格罗萨山(Serra Grossa)的山坡上。其建造需要对地形进行大规模的改造,并设计了一个雄心勃勃的水利系统,旨在为整个校园提供水源。这个系统最具特色的部分是建造了两个半埋式的蓄水池,位于场地的上部,旨在通过重力将水分配到学校的其他部分。随着公共水供应的到来,这些结构在半个多世纪的时间里逐渐被废弃。
The Inmaculada Jesuitas School in Alicante was built in the mid-20th century on the slopes of the Serra Grossa. Its construction required major interventions on the terrain, along with an ambitious hydraulic system designed to supply water to the entire complex. The most distinctive element of this system was the construction of two semi-buried cisterns at the upper part of the site, conceived to distribute water by gravity to the rest of the school. With the arrival of public water supply, these structures fell into disuse for more than half a century.
▼蓄水池外观,exterior of the cisterns © Estudio Úbeda Valero
▼蓄水池外观,exterior of the cisterns © Estudio Úbeda Valero
由于学校需要提供新的设施,重新启用这项被遗忘的基础设施的机会随之而来,不仅恢复了蓄水池的内部空间,还恢复了曾作为附加活动支撑的屋顶。
Faced with the need to provide the school with new facilities, the opportunity arose to reactivate this forgo- tten infrastructure, recovering not only the interior of the cisterns but also their roofs, which had originally served as support for complementary activities.
▼修复改造后的蓄水池外观,exterior of the cisterns after renovation © Estudio Úbeda Valero
该项目提出了对蓄水池的整固与改造,旨在将其转变为一个多功能空间,并新增服务设施。此次干预并不旨在抹去基础设施的原有特征,或使其半埋式空洞的状态消失,而是通过开设窗洞、引入自然光和加入能够容纳新功能的独立元素来提升这一潜在的体量。
▼轴测图,axonometric © Estudio Úbeda Valero
The project proposes the consolidation and transformation of the cisterns into a multipurpose space comple- mented by new services. The intervention does not seek to erase the original character of the infrastructure or dissolve its condition as a semi-buried void, but rather to enhance this latent volume through the opening of apertures that bring natural light into the interior and the insertion of autonomous elements capable of housing the new programs.
▼蓄水池内部空间,interior space © Estudio Úbeda Valero
▼被视为一个大型中性容器,understood as a large neutral container © Estudio Úbeda Valero
蓄水池被视为一个大型中性容器,其规模和材料质感赋予了其强烈的空间存在感。与这一强大背景相对的是,现代的干预被设计为轻巧、可逆的艺术品——更像家具而非建筑——它们被安置在内部,不打破空间的连贯性,也不会与现有结构竞争。
▼建筑模型,the architecture model © Estudio Úbeda Valero
The cisterns are understood as a large neutral container whose scale and materiality embody an intense spa- tial presence. In contrast to this powerful backdrop, the contemporary interventions are conceived as light, reversible artifacts—closer to furniture than to architecture—placed inside without disrupting the continuity of the space or competing with the existing structure.
▼旧与新的元素清晰可辨,allowing old and new to be clearly distinguished © Estudio Úbeda Valero
▼现代化的干预,the contemporary interventions © Estudio Úbeda Valero
这些插入的元素划分了功能区域,但不会改变蓄水池的形态,使得旧与新的元素清晰可辨。因此,蓄水池焕发的新生命并非来自于激烈的改造,而是源自于一种简约而有意的策略:精确的手法激活了已经存在的空间。
These insertions define functional areas without altering the morphology of the cisterns, allowing old and new to be clearly distinguished. The renewed life of the cistern thus emerges not from radical transformation, but from a minimal and deliberate strategy: precise gestures that activate what was already there.
▼改造前蓄水池,the cisterns before renovation © Estudio Úbeda Valero
▼场地平面,site plan © Estudio Úbeda Valero
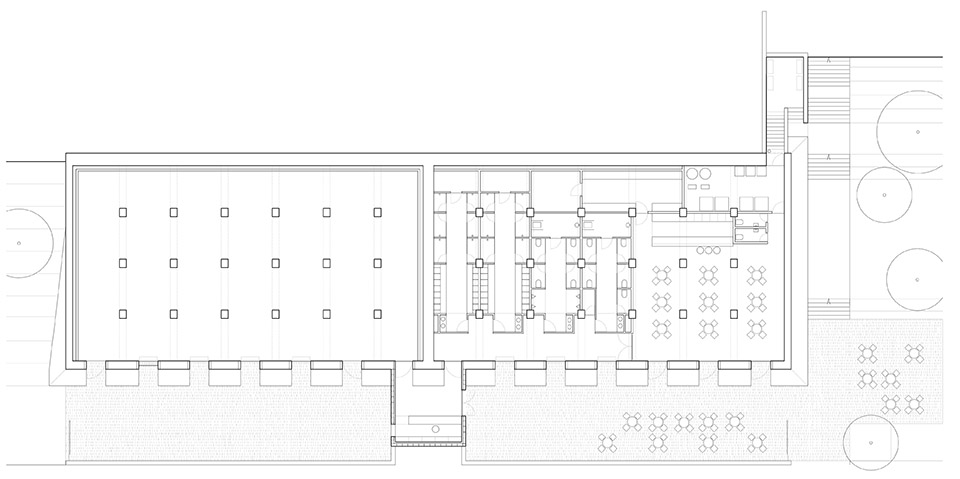
▼平面图,plan © Estudio Úbeda Valero
▼剖面图,section © Estudio Úbeda Valero
Location: Alicante (Spain)
Architect: Estudio Úbeda Valero, Roque Carlos Valero
Proyect year: 2023-2025
Website studio:
客服
消息
收藏
下载
最近

























