查看完整案例

收藏

下载
蒙彼利埃住宅隐匿于蒙特利尔南岸圣布鲁诺山脚下丰富的森林景观中。环绕项目四周的茂密树冠让这座住宅悄然融入自然,仿佛顺着山体背景而建。这是一处当代居所,被构想为避世与沉思的场所。
该项目由Vives St-Laurent设计工作室与ATA建筑事务所合作完成,共分三层,其中花园层部分深入于天然坡地下。这一轻妙的布局方式,使建筑优雅地顺应地形的起伏,有意突破了邻里间大多建于20世纪60年代的传统类型。项目的主要挑战之一,是在业主与建筑师深入讨论后已基本确定体量的前提下展开设计。室内设计由此围绕这一结构展开,重点在于流畅的动线、宽敞的开口以及高质量的自然采光。
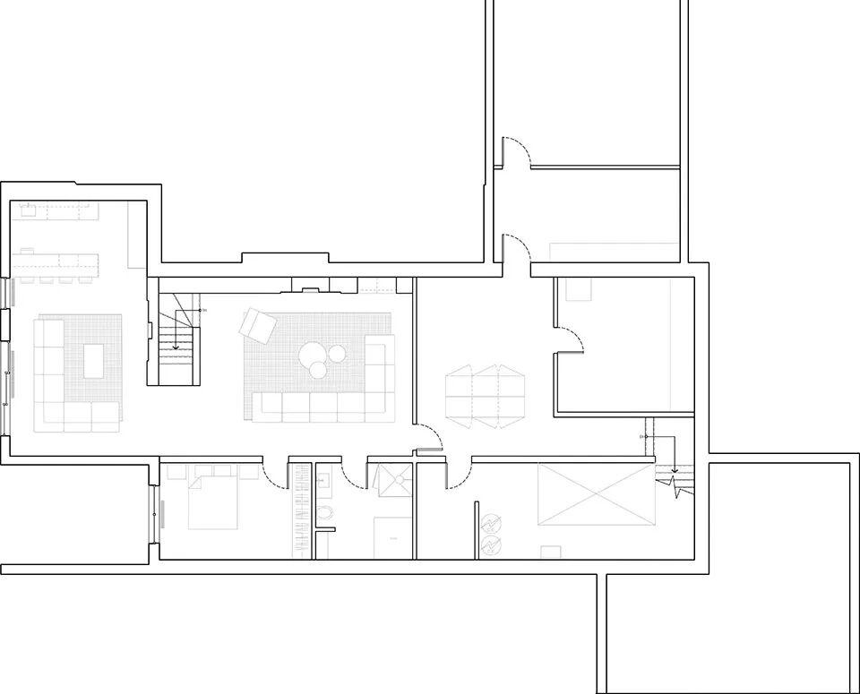
住宅平面以室内庭院为核心展开,大面积的落地玻璃窗向森林敞开。从入口进入,一条线性的门廊引向略微下沉的客厅,其空间由板面切割而出。这个温暖的空间由壁炉点缀,并以挑空双层高度增强空间的戏剧性,一道长长的垂直窗帘更突显了体量的竖向延伸。
左侧则布置了更为私密的区域:小客厅、书房、健身房及通往地下室的入口。右侧则是起居空间:厨房、餐厅以及通往楼上的楼梯。整体动线流畅直观,避免出现了突兀的隔断。
室内空间映照了居住者的生活方式:优雅、精致而温馨。玄关地面采用色调不一的陶瓷铺贴,以不规则拼接的方式呼应片岩的自然肌理。几何而简洁的建筑语言,被细微的处理所柔化,包括壁炉台的圆角、家具与墙面中的曲线元素。
客厅以一个线性体量为核心,覆以从加州进口的陶土瓷砖,突显壁炉这一业主最钟爱的元素。悬挂的Tekio灯具以和纸制成,在挑空空间中散发柔和光线。
整体色彩以自然的浅色橡木与深色染色橡木形成对比,丰富而统一。在餐厅中,深色木桌与浅色地面形成呼应,而贯穿项目的曲线元素再次出现。
厨房设计在形式上保持严谨,同时兼具低调与惊艳感。中央体量内置隐藏的储物间与一体化座椅,成为通往餐厅的过渡。以带有纹理的天然石材打造的中央岛台如同雕塑般将日常功能汇聚一体。
电器与咖啡区隐藏在推拉门之后,使整体线条更加纯净。大面积玻璃门连接至带顶棚的露台,将厨房空间自然延伸至户外。
垂直体量与静谧氛围 横向的浅色橡木覆盖在小客厅的书架与通高储物柜表面,形成连续的方向感。所有材质的选择均旨在建立一种平和、均衡的节奏,同时赋予空间温度与质感。
楼上通过简洁的双跑楼梯抵达卧室与浴室。宽敞而私密的主卧套间设有两个独立的步入式衣橱,以及一间为舒适的日常生活而设计的优雅浴室。
蒙彼利埃住宅是业主、建筑师与设计师紧密合作的成果。项目呈现出植根于场地的当代建筑,每一个细节都为营造诗意而深思的生活体验贡献力量。
客服
消息
收藏
下载
最近






















