查看完整案例

收藏

下载
芬兰新建筑与设计博物馆的建筑师选拔历时18个月,现已完成,宣布赫尔辛基的建筑事务所JKMM Architects获胜,成功赢得了该项目的国际公开匿名设计竞赛。JKMM Architects的设计方案在竞赛中被称为“Kumma”,将打造一个地标性的滨水博物馆,展示芬兰独特的建筑与设计文化,立足全球舞台。© JKMMArchitects &Younite AI
The 18 month-long process of selecting an architect to design Finland’s new Museum of Architecture and Design in Helsinki has completed, with the announcement that JKMM Architects, a Helsinki-based architecture practice, has won the international, open and anonymous design competition for the project. JKMM Architects’ design, known during the competition as Kumma, will create a landmark waterfront museum that will showcase Finland’s unique culture of architecture and design on a global stage.
▼项目渲染图,rendering©MIR
▼渲染鸟瞰,aerial view of rendering©MIR
本次国际设计竞赛共收到来自全球624个提案,所有符合世界贸易组织政府采购协议(GPA)成员国的建筑师均可参与,且大多数国家均有代表。芬兰的提案占比约五分之一,其后代表性最多的国家为意大利、美国、法国和英国。获奖结果由评审团主席Mikko Aho于9月11日在赫尔辛基市政厅的颁奖仪式上宣布。赫尔辛基市市长Daniel Sazonov、芬兰教育与文化部常务秘书Heidi Backman、芬兰建筑与设计博物馆基金会CEO Kaarina Gould、新博物馆馆长Pilvi Kalhama以及五个入围设计团队的代表均出席了仪式。
The international design competition received 624 proposals from around the world. Architects from all countries that are party to the WTO’s Government Procurement Agreement (GPA) were eligible to participate, and most of them were represented. About a fifth of the proposals came from Finland. After Finland, the most represented countries were Italy, the USA, France and the UK.
The winner was announced by Mikko Aho, Chair of the Jury, at a prizegiving ceremony held at the Helsinki City Hall on 11 September. The prizegiving was attended by Mayor of Helsinki Daniel Sazonov, Permanent Secretary of Finland’s Ministry of Education and Culture Heidi Backman, CEO of the Foundation for the Finnish Museum of Architecture and Design Kaarina Gould and the Director of the new Museum, Pilvi Kalhama, and representatives from each of the five finalist design teams.
▼渲染鸟瞰,aerial view of rendering©MIR
JKMM Architects的获奖设计获得了60,000欧元的奖金。来自葡萄牙和比利时的建筑事务所Cossement Cardoso的“City, Sea and Sky”方案获得第二名和35,000欧元奖金。第三名和25,000欧元奖金颁给了来自瑞士基亚索的Lopes Brenna建筑事务所,其作品“Moby”。评审团还为芬兰建筑师团队提交的Tyrsky设计颁发了第四名和20,000欧元奖金,法国事务所Atelier Orda提交的TAU设计获得了10,000欧元的购买选项。JKMM Architects的获奖团队由创始合伙人兼首席设计师Samuli Miettinen领导,团队成员包括Akukon(声学和AV设计)、Granlund(HVAC工程、能源计算)、MIR(可视化)、Pentagon Design(服务设计)和Ramboll Finland(结构设计、碳足迹计算、气候变化应对和适应、电气与照明、地理设计)等合作伙伴。
JKMM Architects’ winning design was awarded €60,000 in prize money. A second prize of €35,000 was awarded to the City, Sea and Sky entry by Cossement Cardoso, an architecture office founded by Charles Cossement and Gil Cardoso, based in Portugal and Belgium. Third prize and €25,000 was awarded to Lopes Brenna, an architectural practice based in Chiasso, Switzerland, for its entry, Moby. The jury awarded fourth prize and €20,000 to the Tyrsky design completed by a collective of Finnish architects. A purchase option of €10,000 was made to secure the TAU design by the French practice, Atelier Orda. JKMM Architects’ winning team was led by the practice’s founding partner and principal designer Samuli Miettinen and includes Akukon (acoustic and AV design), Granlund (HVAC Engineering, Energy Calculation), MIR (visualisation), Pentagon Design (service design), and Ramboll Finland (structural design, carbon footprint calculation, climate change mitigation and adaptation, electrical and lighting, geo design), as collabrators.
▼街景渲染,street view rendering©MIR
JKMM Architects是芬兰领先的建筑事务所之一,曾负责多个国际知名项目,包括赫尔辛基的Amos Rex艺术博物馆、坦佩雷的Tammela体育场、赫尔辛基艺术大学、赫尔辛基舞蹈之家以及芬兰在2020年迪拜世博会上的展览。事务所目前正在为芬兰国家博物馆设计附属建筑,计划于2027年开幕,并参与挪威利勒哈默艺术博物馆的附属建筑项目。JKMM Architects由Asmo Jaaksi、Teemu Kurkela、Samuli Miettinen和Juha Mäki-Jyllilä于1998年创立。事务所曾两度获得芬兰最高建筑奖——芬兰奖。
JKMM Architects is one of Finland’s leading architecture practices, responsible for internationally celebrated projects including the Amos Rex art museum in Helsinki, Tammela Stadium in Tampere, University of the Arts Helsinki, Dance House Helsinki and Finland’s contribution to Expo 2020 Dubai. The practice is currently working on an Annexe to the National Museum of Finland, also in Helsinki, due to open in 2027, and an annexe to the Lillehammer Art Museum in Norway. JKMM Architects was founded by Asmo Jaaksi, Teemu Kurkela, Samuli Miettinen and Juha Mäki-Jyllilä in 1998. The practice has twice been a recipient of the Finlandia Prize, the highest annual award for Architecture in Finland.
▼坦佩雷Tammela体育场,Tammela Stadium in Tampere©Tuomas Uusheimo
▼Amos Rex艺术博物馆,the Amos Rex art museum© Mika Huisman
▼Amos Rex艺术博物馆,the Amos Rex art museum©Tuomas Uusheimo
▼赫尔辛基舞蹈之家,Dance House Helsinki©HANNU RYTKY
▼赫尔辛基舞蹈之家,Dance House Helsinki©Tuomas Uusheimo
赫尔辛基南港的全新博物馆计划于2030年落成
A new museum in Helsinki’s South Harbor planned for 2030
芬兰新建筑与设计博物馆的选址位于赫尔辛基南港的一个空置的旧码头地块,靠近城市的市场广场、阿尔瓦尔·阿尔托著名的“糖块”、东正教和路德教堂,以及著名的滨海公园。竞赛场地及周边地区属于联合国教科文组织世界遗产——苏门林纳海上堡垒的缓冲区。
The location for Finland’s new Museum of Architecture and Design is a vacant former dockside site in the South Harbour, a historic waterfront area in central Helsinki, close to landmarks including the City’s Market Square, Alvar Aalto’s famous ‘Sugar Cube’, the Orthodox and Lutheran Cathedrals, and the popular Esplanade Park. The competition site and the area around it is a designated buffer zone of the UNESCO World Heritage Site of The Suomenlinna Sea Fortress.
▼与周围的城市结构和谐融合,sitting harmoniously within the surrounding urban fabric©MIR
JKMM Architects的获奖方案通过提出一个10,050平方米的新博物馆建筑,回应了这一重要地块的城市机遇,并实现了博物馆希望成为赫尔辛基居民和游客的灵活、包容和欢迎的空间目标。评审团称赞该设计能够与周围的城市结构和谐融合,同时作为一个原创且容易辨识的公共建筑脱颖而出。
JKMM Architects’ winning entry answers the competition brief by proposing a new 10,050 sq m museum building that will meet the urban opportunity of this prominent site and deliver on the Museum’s goal of being a flexible, inclusive, and welcoming space for Helsinki’s residents and visitors. The competition jury commended the design for its characteristic of sitting harmoniously within the surrounding urban fabric, while still standing out as an original and clearly identifiable public building.
▼与周围的城市结构和谐融合,sitting harmoniously within the surrounding urban fabric©MIR
▼极具辨识度的公共建筑,clearly identifiable public building©MIR
芬兰新建筑与设计博物馆将汲取芬兰及北欧地区设计和建筑的丰富传统和现代力量。它将提供富有吸引力的项目,展示设计在快速变化的世界中的相关性和潜力。新建筑将容纳博物馆收藏的超过90万件文物,包括物件、信件、模型和照片,记录了国际知名设计师如阿尔瓦尔·阿尔托(Aino and Alvar Aalto)、埃罗·阿尔尼奥(Eero Aarnio)、马娅·伊索拉(Maija Isola)、艾莉尔·萨阿里宁(Eliel and Eero Saarinen)、帕沃·蒂内尔(Paavo Tynell)等的作品,以及马里美克(Marimekko)、诺基亚(Nokia)、福斯卡(Fiskars)等设计品牌。
Finland’s new Museum of Architecture and Design in Helsinki will draw on the rich traditions and contemporary strength of design and architecture in Finland and the Nordic region. It will offer engaging programs that reveal the relevance and potential of design in a changing world. The new building will house exhibitions drawn from The museum’s collection of over 900,000 artefacts, including objects, correspondence, models and photographs documenting the work of internationally-famed practitioners such as Aino and Alvar Aalto, Eero Aarnio, Maija Isola, Eliel and Eero Saarinen, Paavo Tynell, and design brands such as Marimekko, Nokia and Fiskars.
▼容纳博物馆收藏的超过90万件文物,house exhibitions drawn from The museum’s collection of over 900,000 artefacts©MIR
▼汲取芬兰设计和建筑的丰富传统和现代力量,draw on the rich traditions and contemporary strength of design and architecture in Finland©MIR
新建筑还将举办高水平的巡回展览,提供富有吸引力的公共服务,从设计图书馆到开放式夏季露台。可持续性——生态、社会和文化——是新博物馆设计和建设的关键原则。赫尔辛基市承诺到2030年实现碳中和,该博物馆项目积极支持这一目标。在竞赛要求中,参赛者需提交一座作为气候韧性和可达性、包容性设计的标杆建筑。此外,每个参赛方案都经过了芬兰KONE公司的人流分析。项目计划于2027年开工,博物馆预计于2030年开放。
The new building will also host high-profile touring exhibitions and offer attractive public services, from a design library to an open-access summer terrace. Sustainability — ecological, social, and cultural — is a key principle guiding both the design and construction of the new museum. Helsinki has committed to becoming carbon neutral by 2030, and the museum project actively supports this goal across its operations. The competition brief asked participants to deliver a building that would serve as a benchmark for climate resilience and accessible, inclusive design. In addition, each competition entry was subjected to a People Flow Analysis by KONE Finland. Construction of the project is scheduled to commence in 2027, and the museum is planned to open in 2030.
▼三角中庭空间,triangle atrium space©MIR
民主化设计工具
Democratising the tools of design
新博物馆的核心使命将是“民主化设计工具”,通过芬兰和北欧建筑与设计的历史与现状,引导一系列公共活动,探讨设计思维和技能如何应对我们作为个人和社会在快速变化的世界中的挑战。除了建筑和城市景观目标外,评审团还考虑了与城市文化、设计教育相关的视角,以及如何更好地服务特殊需求群体。为了更好地提升建筑的可用性,设计团队与各用户群体代表在竞赛阶段安排了一系列研讨会。这些研讨会由公共创新专家Tommi Laitio主持。在竞赛的每个阶段,提案都会公示,市民通过赫尔辛基市的表达您的意见在线平台分享意见。公众意见的总结将作为选拔过程的一部分提交给评审团。
The central mission of the new museum will be “democratising the tools of design”, drawing on the history and present of Finnish and Nordic architecture and design to guide a programme of public activities that will look at how design thinking and skills are relevant to the challenges we face as individuals and societies in a rapidly changing world. Beyond architecture and cityscape, the jury has considered perspectives related to urban culture, design education, and how to better serve groups with special needs. To better cultivate the usability of the buildings, a series of workshops was arranged between the design teams and representatives of various user groups during the competition phase. The workshops were facilitated by Tommi Laitio, a Los Angeles based expert on public innovation. At each stage of the competition, proposals were placed on public display, with comments shared on the City of Helsinki’s Kerrokantasi (Voice your opinion) online platform. A summary of the public input was shared with the competition jury as part of the selection process.
▼雪景渲染,snow view rendering©MIR
JKMM Architects的创始合伙人兼首席设计师Samuli Miettinen表示:“我希望新建筑与设计博物馆的规划和实现能够为如何负责任且有技艺地建造新事物指引方向。建筑与设计是深具人性的——它们源于梦想和渴望,并在我们共同生活的地方获得意义。”
Samuli Miettinen, founding partner and principal designer at JKMM Architects said:”I hope that the planning and realization of the new Museum of Architecture and Design can show the way for how new things can be built responsibly and with skill. Architecture and design are deeply human – they are born from dreams and longing, and they gain their meaning in the places where we can experience and live together.”
▼场地平面及立面,site plan & elevation©JKMM Architects
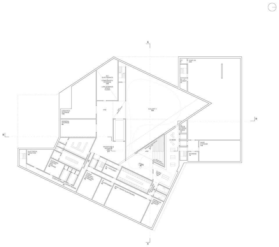
▼一层平面,ground floor plan©JKMM Architects
▼办公层平面,1 & 2 Office floor plan©JKMM Architects
▼展览层平面,gallery floor plan©JKMM Architects
▼剖面及立面,section & elevation©JKMM Architects
Architectural Design:JKMM Architects
JKMM Architects and its founding partners own the immaterial rights and hold the copyright of the design
Authors:Samuli Miettinen, architect SAFA, founding partner, (lead designer) Asmo Jaaksi, architect SAFA, founding partner Teemu Kurkela, architect SAFA, founding partner Juha Mäki-Jyllilä, architect SAFA, founding partner Samuli Summanen, architect
Other Team Members:Marko Pulli, architect Maiju Suni, architect
Collaborators:Pentagon Design
Service Design:Virva Haltsonen, M. Sc. (Econ) / IDBM Anna Hoskonen, MA / IMIAD, SIO
Ramboll Finland
Structural Design:Ilkka Mikkola, engineer (AMK), structural designer
客服
消息
收藏
下载
最近






























