查看完整案例


收藏

下载

翻译
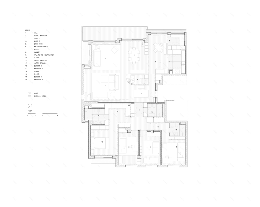
A flat renovation is a bit of an architectural exercise. It misses the stress facing the empty paper. It misses the urban dimension. It misses the expression of the big individual options. It misses the complexity, time and length of the full narrative. It is about rewriting a tale: few characters, a limited space and in a brief timeline. According to Eça, “in a tale everything needs to be exposed with a clear and simple line: about the characters (…) only the obvious trace (…) that defines a personality; about feelings only what fits in a glance (…); about the landscape only what is far away, in a unique color ”. Ultimately, a synthesis – not easy at all. I remember the first experience in the place recently acquired. The space was well structured, conservative; educated. There was some shabby English-style furniture left. Kitchen, laundry room, maid's room and utility room composed the service area. Hall, toilet, dining room and living room, the social area. Finally, four bedrooms and three bathrooms constituted the rest area. No one has a live-in maid anymore. Clients unformalized their habits and we, therefore, flexibilized the space. Nothing remained intact. Everything was changed. We cut the text, rearranged the terms, but without removing content to the sleeping area, perceived as a permanence in the narrative. Besides, we reinvented all the action of preparing, cooking, dining and living, seeking a sober line and a clear picture, from which Eça de Queiroz did not condescend. Around an organic sycamore wood body that hides a toilet, the scenario sets in 180°; in 360° when the partitions that hide the perspective of the breakfast space, the kitchen or the laundry are opened, as a scene in the Teatro Olimpico of Vicenza. A brief tale of 220m2 in Foz do Douro.
客服
消息
收藏
下载
最近




























