查看完整案例

收藏

下载

翻译
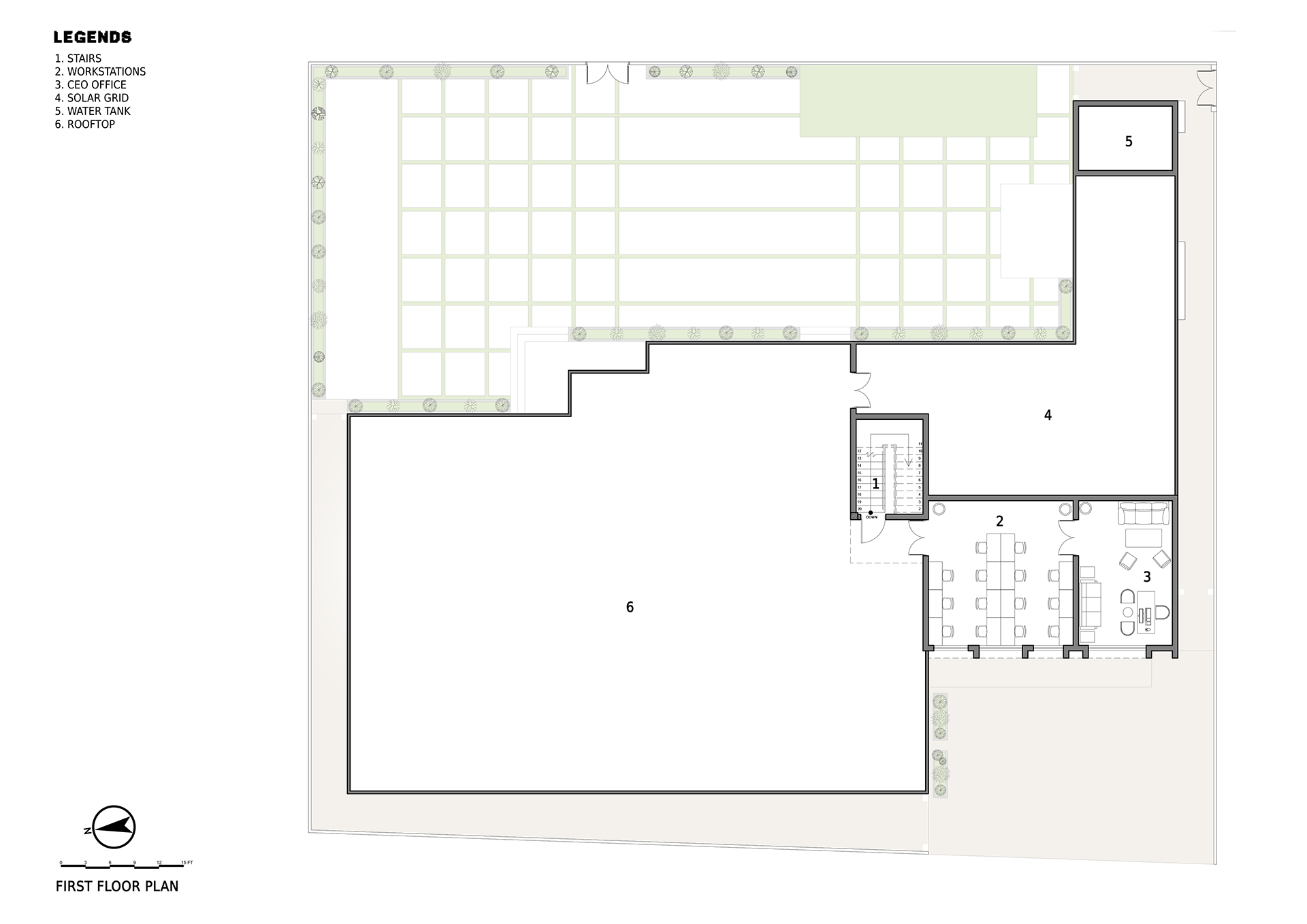
SEWA is a restaurant envisioned to define a new approach to simplicity and elegance in architecture. The design seeks to balance user requirements, spatial ambience, and the client’s financial considerations Situated in Lahore, one of Pakistan’s most vibrant metropolitan cities, SEVVA exists at the intersection of culture, people, and architecture. The design responds to the city’s diversity, contrasts, and subtle conflicts, creating a place where visitors can slow down and enjoy a carefully curated experience.
The project spans approximately 13,500 sq. ft, with a number of site-specific constraints that shaped its architecture i.e. Thermal Radiation, Site Geometry, Urban Context
Wall decor details
客服
消息
收藏
下载
最近





























