查看完整案例


收藏

下载

翻译
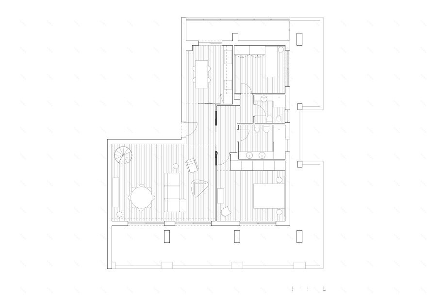
Una casa moderna progettata negli anni 80’, viene riconfigurata attraverso piccoli interventi.La lettura di alcuni elementi esistenti consente al nuovo progetto di conservare la vecchia matrice e allo stesso tempo restituire un aspetto rinnovato alla casa.Il nuovo intervento riguarda principalmente la zona living che viene in primo luogo connessa alla cucina per mezzo di un sistema scorrevole in vetro. La zona notte viene in questo modo disimpegnata.Una scala a chiocciola invece, risalta nell’ambiente conviviale e collega il living con un terrazzo indipendente.La scala viene ripensata, un nastro in ferro verniciato va a sostituire la struttura esistente, avvolge la rampa e restituisce un nuovo carattere scultoreo alla struttura, rendendola la vera protagonista di questo spazio.
客服
消息
收藏
下载
最近












