查看完整案例

收藏

下载
邓子美學線上雜誌VOL. 19專欄
《我們生活的眼光》
DENGZ 2025@ On-line
挖掘探索人與生活場景的關系,啟發生活靈感,為屋主創造代表個人生活眼光的居住空間,以及他們為之熱愛的生活狀態範式。
保亿御景雅园
Designer 硬装设计师 邓子设计
Designer 软装设计师 壹里舍外
Area 面积 101㎡
Style 风格 中古
Type 户型 四室两厅
HOUSE VISION
邓子 2025 / 理 想 生 活 驱 动 力 学
一种为屋主超前5年的生活方式规划
在这个视觉温度适宜的空间内,生活不疾不徐,一切值得期待。
In this space with proper visual temperature, life is slow and everything is worth looking forward to.
以自然为底色,让木的温润、光的柔和共筑空间。摒弃繁杂,用简洁线条与质朴材质,打造治愈系居所,让家成为心灵归处。
—邓子·编辑部
音乐|Music
阅读|Read
家居|Home Furnishing
设计|Design
美学|Esthetics
DENGZ DESIGN “我们在意的是人 人让居住的空间变成真正的家“
DENGZ ROOM TOUR
LIVING ROOM TOUR
治愈系家居,把温柔装进生活
把 “松弛感” 焊在客厅里
墙面以柔和的米白色为主,营造出干净明亮的氛围。电视背景墙简洁大方,搭配下方带有木质元素的置物台,既实用又具设计感,台上摆放着小摆件、书籍和插有枝条的花瓶,增添了生活气息与艺术感。天花板上的吊灯造型别致,为空间注入了时尚感。
The walls are mainly in a soft off-white color, creating a clean and bright atmosphere. The TV background wall is simple and elegant, paired with a wooden element-equipped shelf below, which is both practical and designed. Small ornaments, books, and a vase with branches are placed on the shelf, adding a sense of life and artistry. The chandelier on the ceiling has a unique shape, injecting a sense of fashion into the space.
深色的沙发在此客厅空间形成鲜明又和谐的色彩对比。沙发旁的单人椅,带有独特图案的抱枕,为空间增添了几分自然与艺术气息。
The dark-colored sofa creates a striking yet harmonious color contrast in this living room space. The single chair next to the sofa, along with the throw pillows featuring unique patterns, adds a touch of natural and artistic charm to the space.
DENGZ ROOM TOUR
DINING ROOM DISPLAY
治愈系家居,把温柔装进生活
餐厅的浪漫魔法,藏在烛光与花影里
餐边柜设计精巧,上方的玻璃柜门与下方的木质柜体结合,既方便展示杯具等物品,又具备良好的收纳功能,大理石台面则为空间增添了一丝精致感。圆形餐桌简约大方,桌上摆放着插有红色花束的花瓶、蜡烛以及散落的红色果实,色彩搭配和谐,为餐厅注入了生机与浪漫气息。
The sideboard is exquisitely designed. The glass cabinet doors on the upper part are combined with the wooden cabinet body on the lower part, which is not only convenient for displaying items such as tableware, but also has good storage functions. The marble countertop adds a touch of sophistication to the space. The round dining table is simple and elegant. On the table, there are vases with red bouquets, candles and scattered red fruits. The color matching is harmonious, injecting vitality and romance into the restaurant.
DENGZ ROOM TOUR
STUDY
ROOM TOUR
治愈系家居,把温柔装进生活
沉浸式体验书房,在质感空间里邂逅专注与诗意
书房以木质元素为主,一侧的大型木质书架,既具备强大的收纳功能,桌上摆放着笔记本电脑、杂志与杯子,营造出实用且充满生活气息的办公、阅读场景。黑色百叶窗可灵活调节光线,让室内光线既充足又不会刺眼,同时也为空间增添了一丝利落感。
The study is dominated by wooden elements. A large wooden bookshelf on one side not only has strong storage capacity, but also, with a laptop, magazines and a cup placed on the desk, creates a practical and lively scene for work and reading. The black shutters can flexibly adjust the light, making the indoor light sufficient without being dazzling, and at the same time adding a sense of neatness to the space.
DENGZ ROOM TOUR
MASTER BEDROOM TOUR
治愈系家居,把温柔装进生活
一半复古,一半温柔,法式卧室的晨昏。
床头采用深绿色的软包设计,纹理精致,为空间增添了一份奢华与复古感。墙面挂有造型独特的装饰画,画框设计精巧,与整体风格相得益彰,为空间注入了艺术气息。
The headboard features a dark green upholstered design with exquisite textures, adding a touch of luxury and retro feel to the space. A uniquely shaped decorative painting hangs on the wall; its frame is delicately designed, complementing the overall style and infusing the space with an artistic atmosphere.
DENGZ ROOM TOUR
CHILDREN’S BEDROOM TOUR
治愈系家居,把温柔装进生活
藏着童真与温柔的儿童房,是孩子的快乐小天地
儿童房,是童真与美学的交融场域。浅蓝墙面似澄澈晴空,白色衣柜缀着彩色萌趣把手,绘本架与暖黄储物柜有序收纳。床品带着细碎温柔图案,地毯如斑斓彩虹,小羊玩偶静卧,每一处都为孩子编织着充满想象的梦幻小世界。
The children’s room is a realm where innocence and aesthetics intersect. The light blue walls resemble the clear and sunny sky, while the white wardrobe is adorned with colorful, adorable handles. Picture book shelves and warm yellow storage cabinets are arranged in an orderly manner to keep everything in its place. The bedding features delicate, gentle patterns; the carpet is like a vibrant rainbow; and little sheep dolls lie quietly on the bed. Every detail in this room weaves a magical, imaginative world for the child.
“创造提高生活质量的空间是建筑师贡献给社会的最好礼物”——John Portman
——原始平面图
House type analysis
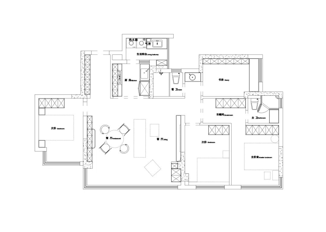
——平面布局图
House type analysis
客服
消息
收藏
下载
最近


























