查看完整案例

收藏

下载
▲“山涧飞瀑”挑空中庭 ©锐景摄影
"Waterfall" and "Mountains" at the open void
“拨云寻古道,倚石听流泉” – 李白(唐)
我们将日料餐厅“杉木 SUGIKI”打造成城外、远离人烟的山林世界,食客在“林水泉石”之间感受东方美学的独特语境。
We create the Japanese restaurant “SUGIKI” into a secluded island far from the city and crowd. The customers would immerse themselves in the eastern aesthetics environment while enjoying the cuisine.
餐厅公区融合景物意向,构筑遥隔相望的“登山之景”。餐厅包间风貌各异,精繁丰富的日式元素经过新的组合,诠释四季之美。
The public area of the restaurant adopts scenic motifs, creates “mountaineering” scenarios. Each private room has its own character, refined and abundant Japanese elements interpret the beauty of the seasons.
餐厅立面灵感来源日式建筑的坡屋顶设计,8.5米高的屋檐造型划分了一个模糊的空间界线,半通透金属网格介于内外之间,增进食客与行人的互动共感。
The façade is inspired by the sloping-roof of Japanese architecture. An 8.5-meter eave carves out a blurred boundary for diners and passers-by, while translucent metal grid mediates between internal and external.
▲餐厅立面 ©锐景摄影 Restaurant façade
▲日式坡屋顶造型 ©锐景摄影
Sloping-roof from Japanese architecture
山涧飞瀑的空间幻象
Illusion of mountain ranges and waterfall
室内通过体块穿插、连接,重构山涧飞瀑般的多维空间。进入餐厅,高8.3米弧形铝板装置如倾泻直下的瀑布悬挂于眼前,成为餐厅最瞩目的视觉焦点。
We create a multidimensional space by interlocking the interior volumes. Upon entering the restaurant, an 8.3-meter-tall, curved aluminum installation overhead like descending waterfall, becomes the visual centerpiece of the restaurant.
▲倾泻直下的“瀑布”装置 ©锐景摄影
Descending waterfall installation
瀑布后是板前区,8米长黑胡桃原木吧台可供10人同时用餐。我们将板前设置在开放的挑空区域,被“奔瀑幽泉”环绕,希望食客在品味美酒佳肴时感受与自然和谐相安的惬意与闲适。
The counter bar area is behind the waterfall, with 8 - meter - long bar table can serve ten diners at once. The counter bar is surrounded by “cascade” and “creek” at the open void. We hope the customers can feel the inner peace and the beauty of the nature while enjoying the cuisine.
▲板前被“奔瀑幽泉”所环绕 ©锐景摄影&odd
The counter bar is surrounded by "cascade" and "creek"
▲8米长板前吧台 ©锐景摄影 8-meter-long bar table
餐厅首层与夹层融合当代设计手法和东方美学,将青山、飞瀑、幽泉、溪石、深竹这些景物意向构筑在空间之中,营造登高遥望的山中之景。
We design the ground floor and mezzanine by contemporary design strategy with eastern aesthetics, merges diverse scenic motifs into the space, such as “peaks”, “cascade”, “spring”, “creek”, “bamboo”, to create the image of climbing mountains.
▲首层散座区 ©锐景摄影 Seating area on ground floor
▲空间中的景物意向 ©锐景摄影 Scenic motifs in restaurant
散座区
分布在首层与夹层,利用半高隔断增强空间私密性和远隔感。在餐厅行走就仿佛穿梭于蜿蜒绵长的山路,无论远眺或近观,都有山水风月相伴。
The seating area is located on both ground floor and mezzanine, provides privacy and separation with semi-height partitions. Walking through the restaurant feels like meandering along the mountain road, always immersed in the nature.
▲半高隔断增强私密性 ©锐景摄影
Semi-height partitions provide privacy
餐厅中穿插着精繁丰富的空间设计。结构外露的酒柜展架、走廊或楼梯间的景观装饰,这些都是散置于主调之间的片刻情境或抒情小品。
The restaurant is composed by countless delicate and intricate designs. Exposed-structural wine racks, landscape vignettes in corridors or staircases-these are scattered design highlights of the space.
▲结构外露的酒柜展架 ©锐景摄影
Wine racks with exposed structure
▲水晶砖楼梯踏步 ©锐景摄影&odd Crystal tile steps
▲餐厅走廊 ©锐景摄影 Corridor
▲公区洗手间 ©锐景摄影 Restroom
大自然的四季循环 The four seasons of nature
餐厅二层设置10个以四季为主题的独立包间,通过至精至美的极繁工艺表现大自然的四季循环。风格各异的包间经过独特的组合与诠释,将“季节”、“时间”、“轮回”等意象充分具象化表现。
Ten private rooms are on the second floor of the restaurant, with exquisite and maximalist craftsmanship and details to express the beauty of the four seasons. Each room is decorated with distinctive design concept, embody the imagery of “season”, “time” and “cycle”.
包间全部选用橡木或胡桃木桌面,表层经过漆面处理,质感光滑且易清洁。搭配不同时段的灯光模式,为白天、夜晚营造多样的环境氛围。
All tabletop of the private rooms is either oak or walnut, finished with lacquer paint that is smoothy and easy to clean. By adopting different lighting mode, it creates varied ambiences for daytime and nighttime.
▲四季主题包间 ©锐景摄影
Four seasons themed private rooms
/春为青阳/ Spring 春包间是最大的商务包间,可容纳10人就餐。顶面造型来源于日式屋脊,空间色彩最为丰富,代表生机盎然、万物复苏。
The room “Spring” is the largest one with ten seats. The ceiling form comes from the traditional Japanese architecture. The room has richest colors, presents renewal and exuberant life.
▲春 · 包间 ©锐景摄影 Private room "Spring"
▲滑动查看更多空间细节
Slide to see more design details
/夏为朱明/
Summer
夏包间 风格清雅明丽,如一缕微风般恬适清凉。伴着溪水淙淙,仿佛听到了阵阵蝉鸣。
The room “Summer” is bright and elegant, as refreshing as soft breeze. Besides the sound of “creek”, people can almost hear the sing from cicadas.
▲夏 · 包间 ©锐景摄影 Private room "Summer"
▲滑动查看更多空间细节
Slide to see more design details
/秋为白藏/
Autumn
秋包间的颜色最为浓烈,层林尽染、落叶纷飞。仿佛置身于秋日枫叶红遍的山野之中。
The room “Autumn” glows with the most intense colors. Creates image of walking in a wilderness hills with autumn maples and swirling leaves.
(不过原文本第二句缺少主语,可能存在语病,但按照任务要求未做修改)
▲秋 · 包间 ©锐景摄影 Private room "Autumn"
▲滑动查看更多空间细节
Slide to see more design details
/冬为玄英/
Winter
冬包间采用大面积白色与黑色为空间主基调,这种无暇的状态更像是大雪过后的静谧与肃穆。
The room “Winter” adopts white and black as dominant palette to presents the solemnity and flawless plane after a heavy snow.
▲冬 · 包间 ©锐景摄影 Private room "Winter"
▲滑动查看更多空间细节
Slide to see more design details --
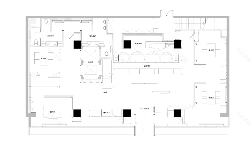
▲首层平面图 ©odd GF Floor plan
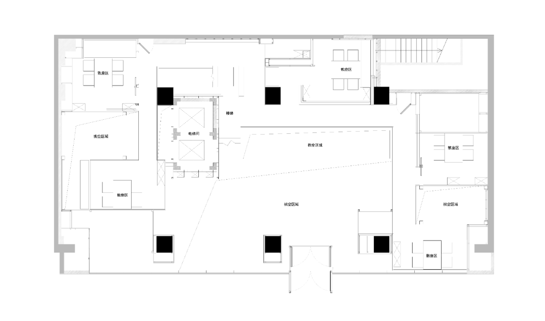
▲夹层平面图 ©odd Mezzanine Floor plan
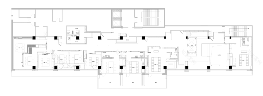
▲二层平面图 ©odd 2nd Floor plan
项目信息
项目名称:杉木日料
项目类别:餐饮空间设计
地点:大连,辽宁
面积:1600㎡
设计公司:odd设计事务所
设计团队:冈本庆三,出口勉,曹博,刘静怡,段笑颖
竣工时间:2025.05
主要材料:木饰面、花岗岩、大理石、水磨石、艺术涂料、金属网、水晶砖、长虹玻璃、和纸亚克力、布艺
摄影:锐景摄影
Credits & Data
Project: SUGIKI
Category: Restaurant & Bar
Location: Dalian, Liaoning
Floor area: 1600㎡
Design: odd (okamoto deguchi design)
Design team: OKAMOTO Keizo, DEGUCHI Tsutomu, CAO Bo, LIU Jingyi, DUAN Xiaoying
Completion: 2025.05
Materials: Wood, Granite, Marble, Terrazzo, Art paint, Metal grid, Tile, Reeded glass, Washi acrylic, Fabric
Photograph: Ruijing-Photo
客服
消息
收藏
下载
最近











































































