查看完整案例

收藏

下载

翻译
Elderly Community – Chongming Island, Shanghai
CITIC Chongming Chenjia Town Senior Living Community – Sales Office Concept Design
Chongming Island is envisioned as a world-class ecological island, a national pilot zone for sustainable development, and a model for low-carbon living. It is planned as a knowledge economy hub driven by research, education, and conference business, while also becoming a leisure destination for outdoor sports and ecological tourism. With its clean water and pure air, the island naturally nurtures health and longevity, earning the name the island of long life.
The community adopts the Continuing Care Retirement Community (CCRC) model, offering a seamless continuum of independent living, assisted care, and nursing services—allowing seniors to enjoy retirement as a new stage of life, full of vitality and dignity. Here, retirement means leaving work, not life.
The sales office is conceived as a welcoming environment that conveys these values. It is a space where nature flows indoors, combining landscape, art, and delicate details. Smooth, curving lines and soft volumes create an atmosphere that is pure, natural, and relaxing, echoing the island’s ecological spirit.
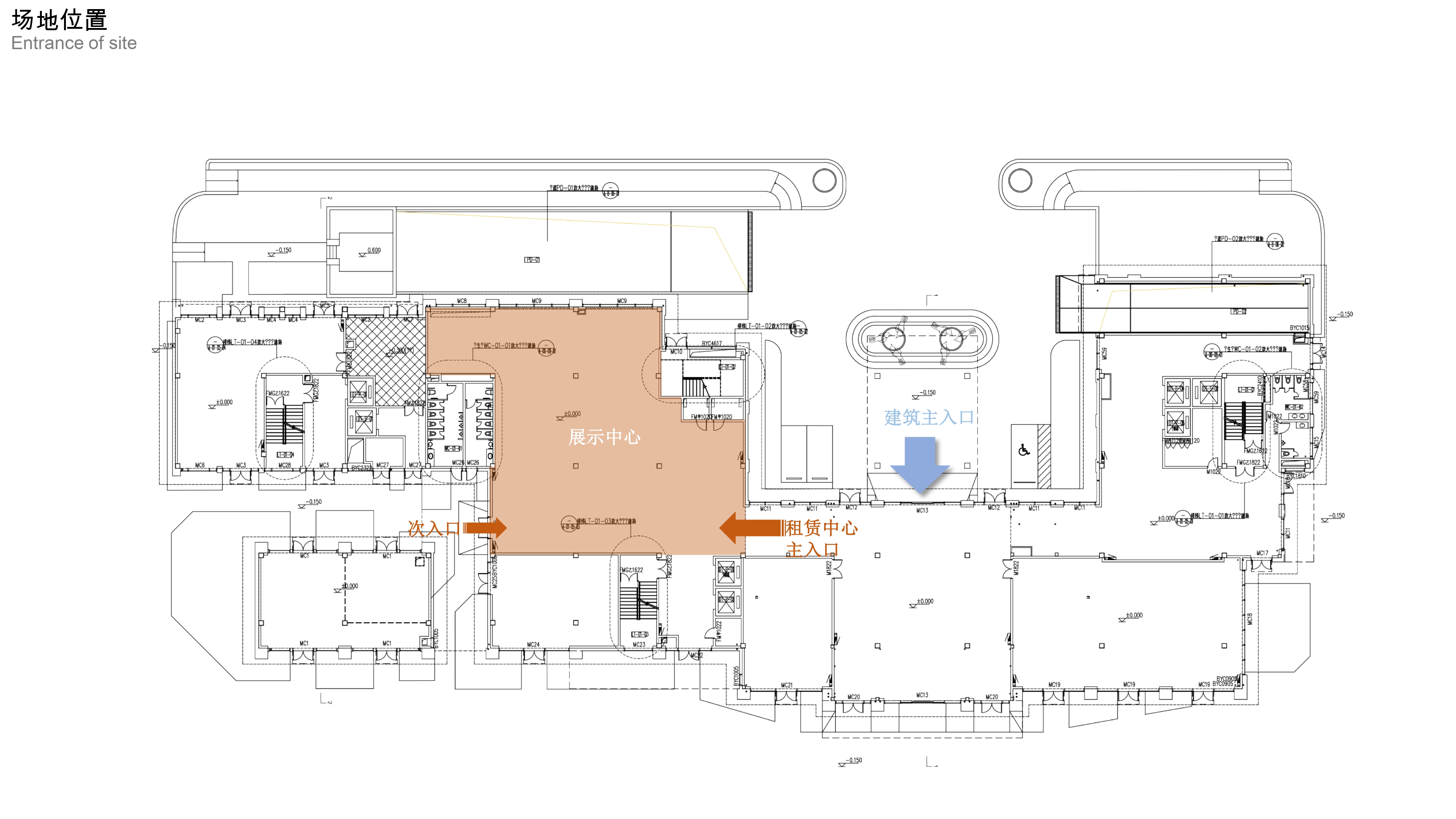
Functional layout includes:
Reception area
Office area
Brand display zone
Transparent feature vista
Relaxed lounge & negotiation spaces
Water bar
Activity and display area
Tea room
Art wall
Storage
The design language is minimal, soft, modern, and artistic, shaping a fluid, sinuous environment where visitors feel both inspired and at ease—a true reflection of a healthy, sustainable, and graceful lifestyle.
Design Team:
René Guan Huiyun
Chen Tian
Giacomo Liviabella
客服
消息
收藏
下载
最近
































