查看完整案例

收藏

下载
以身体为中心的感官居所
“我是我所处的空间。”—— 诗人诺埃尔 · 阿诺
今天我们的居所缺失的是身体、想象和环境之间的交流。至少从某种程度而言,每一个场所都会被铭记,部分是因为它的独一无二,但更重要的是因为它作用于我们的身体并产生了足够的联想,我们将它把握在我们的个人世界。
建筑的永恒任务是创造具体的、生活的存在象征,它赋予我们的存在于世以形式和结构。建筑让理想生活的构想和图像得以反映、实体化和永恒。家的体验由各不相同的活动组成 —— 烹饪、饮食、社交、阅读、储藏、睡眠,各种私密的行为 —— 而非视觉的元素。我们的居所与我们的自我认同整合在一起,它变成了我们与存在的一部分。在对居所的记忆体验中,空间、物质和时间融合成单一的维度,成为存在的基本实质,并渗入到我们的意识中。我们通过此时此地、这种空间来确认自己,这些维度就成为我们存在的因素。居所是协调自我与世界的艺术,而且这种协调通过感知而发生。
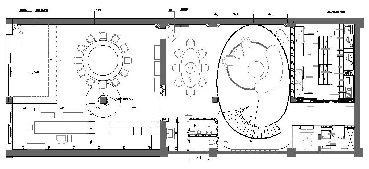
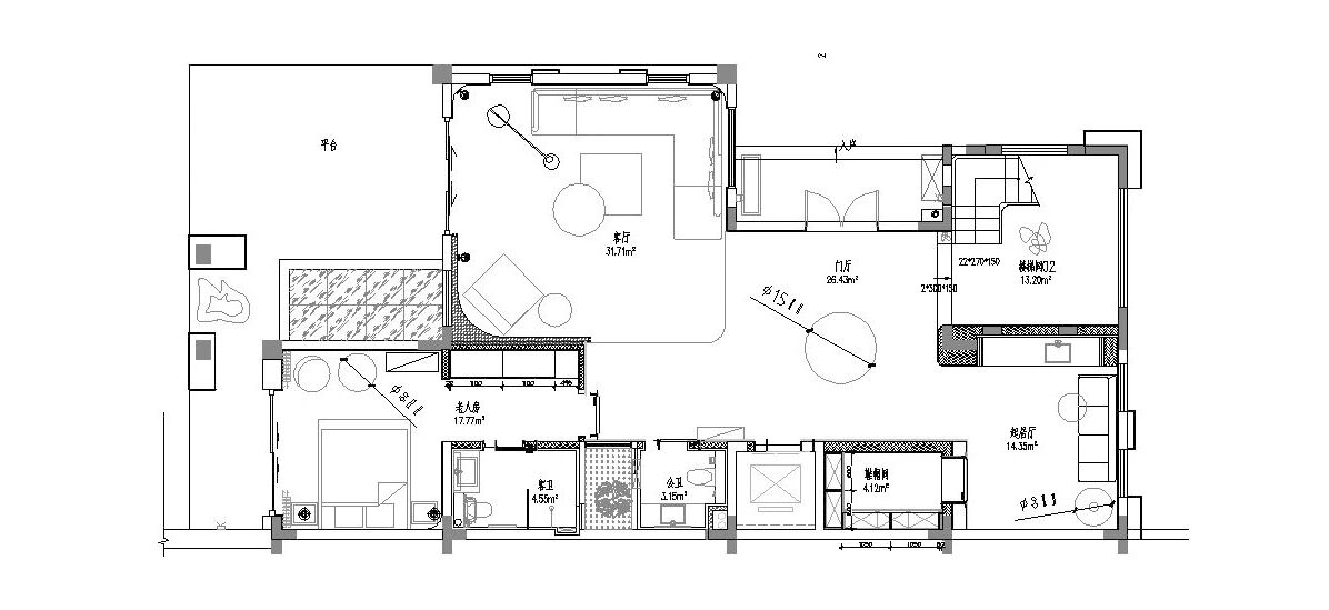
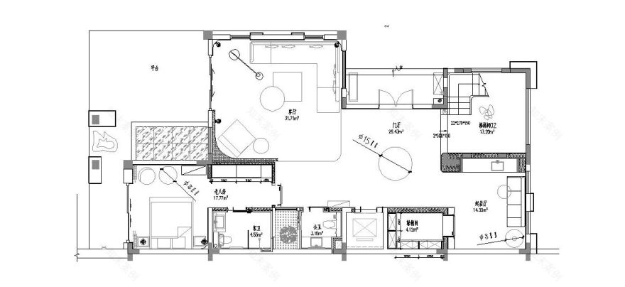
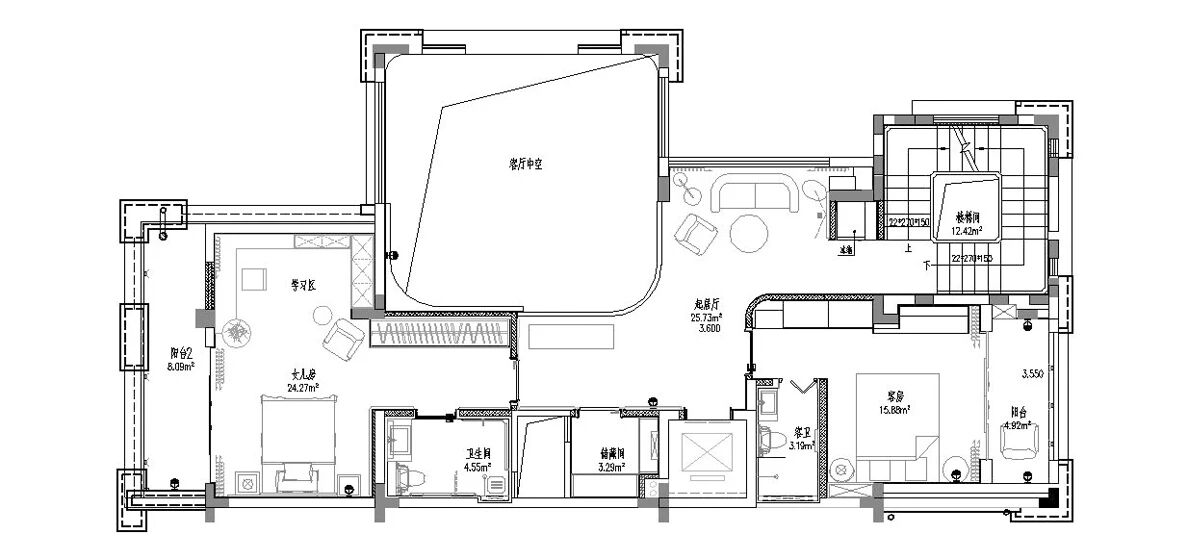
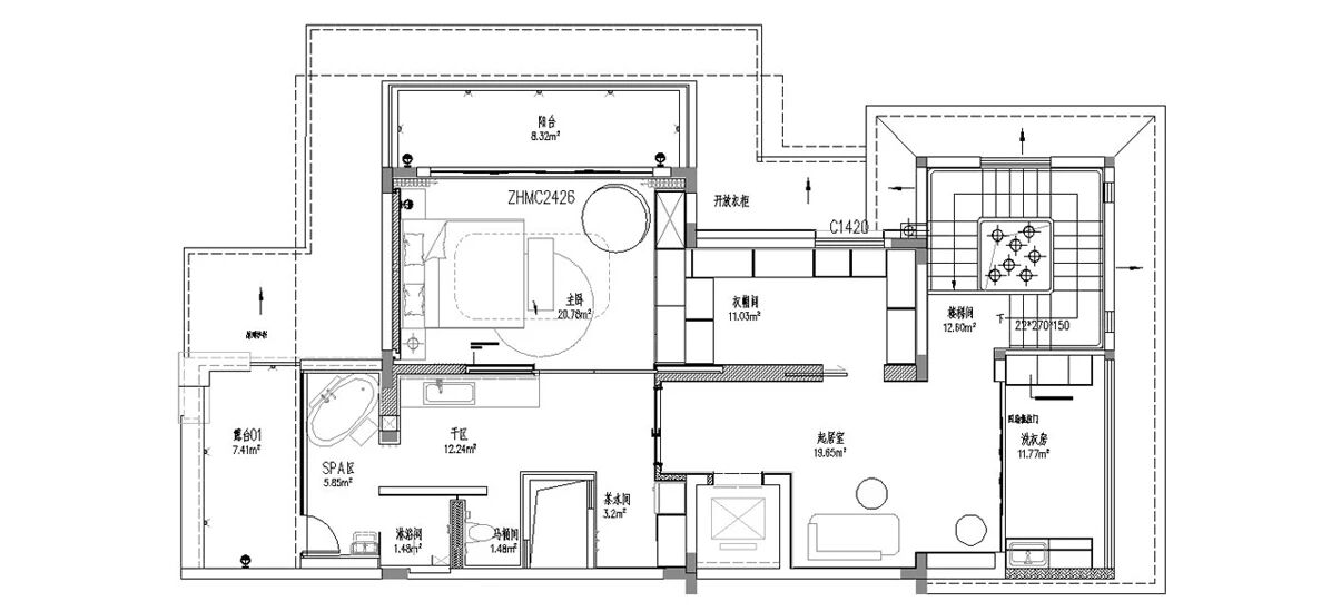
项目图纸
首层平面图
二层平面图
三层平面图
四层平面图
五层平面图
▲向右滑动查看更多
01 音响的亲密感
视觉是隔离的,而声音却能融合在一起;我们看东西有明确方向,但声音却从四面八方传来;视觉让我们关注外界,而声音则带我们进入内心的体验。当我们身处一个空间时,声音会主动向我们靠近 —— 眼睛还没看清,耳朵已经听见了。建筑无法回应我们的注视,却能把我们发出的声音反射回来,送回耳中。值得深思的是,如今人们内心越来越缺乏自我感,或许正与我们逐渐失去完整的听觉世界有关。
在充满水声的户外庭院里,听觉成了感知空间的主要方式。秋雨轻轻落下,打在树叶上,再滴入宽阔如镜的水池,发出清脆的“滴答”声,像是大自然在低声细语。另一侧的水幕墙持续流淌着溪水,声音柔和绵长,循环不断,仿佛空间在安静地呼吸。这里的各种声音交织在一起,却不杂乱,反而营造出一种特别亲近的感觉:好像声音把整个空间温柔地围住,与外面的世界隔离开来,只剩下雨水、水流、动静之间的私密交流,让人内心平静,仿佛走进了一个只属于耳朵的秘密天地。
02 多重感觉的体验
不是单纯的视觉,也不单是传统的五种感觉,居所包含诸多感官体验的领域,它们相互影响且彼此相融。眼睛只是通向世界的窗口之一,真正让我们“在世存在”(Being-in-the-world)的是全身感官与环境的不断对话。空间的意义,不在于创造令人惊叹的形式,而在于搭建一座桥梁 —— 让自然的生命节奏,通过光、风、材料、路径,重新流入人造领域,唤醒被现代生活麻木的感知力。设计师希望每一个令人感动的空间体验都是多重感觉的:眼睛、耳朵、鼻子、皮肤、舌头、骨骼和肌肉同时度量着空间、物质和尺度的特质。通过在居所中的活动和事件,让业主获得一种被强化了的自我体验。
当一栋房子能让孩童赤脚奔跑时感知地温变化,让老人坐在檐下听见雨滴敲打陶瓦的节奏,让客人在转角处突然闻到攀爬蔷薇的香气 —— 那一刻,居所不再是物体,而是一场温柔的觉醒。这才是现实感最深刻的来源:不是技术模拟的真实,而是心灵与世界重新接线的感动。原结构中的柱子被塑造成了空间中圆形伞状柱,即是视觉的焦点,也是精神的象征 —— 以自我身体为中心的感官统合。
▲茶荟的茶桌和椅子、Occhio的壁灯
一扇大窗,弱化室内外边界,营造出茶室里一切安安静静的,没有任何东西打破这寂静,只剩下壶里开水的沸腾声。茶壶欢愉地歌唱,在这音响中人们可以听到种种回声:窗外潺潺水瀑,池中簌簌橄榄树,偶尔掠过的鸟鸣,或者远远的小山上松林中风声飒飒。全是哑光的空间界面中,一把散落点点花瓣的透明椅子,让以自我为中心的自在被具象化了。▲《中国式山水No.10》应麦克
在场与不在场、靠近与远离、真实感受与想象画面,这些感觉常常交织在一起。世界的样子会刻在我们身体里,我们也会把自己的感受投射到外面的世界中。感觉不只是给大脑传递信息、帮我们理性判断,它还能激发想象力,让我们用情感来思考和表达。
门厅处一副红色的《中国式山水》画与海洋里的鲨鱼水晶艺术品,与户外庭院中的橄榄树和水景,意在建构一个广阔自然与深厚人文融合的世界。这既是空间中的点睛之笔,更是业主世界观的外化 —— 看山不是山的人生境界。每种艺术形式都有自己独特的方式,通过调动我们的感官,来细细讲述那些关于“人如何存在”的深刻想法。
▲锐驰的餐桌和椅子、立达信的吊灯
居所的主要意义,在于它能给我们的白日梦提供一个安放之处,同时保护那些沉浸在梦想中的人,让人们可以安心地在梦境里徜徉。更重要的是,居住的空间能够限定我们的思考范围,阻止一些无关的念头干扰,还能加强我们对自己想法的关注,防止思绪迷失方向。所以,设计师追求的是用克制的空间和有限的陈设去做表达,用不同的材质对比,营造戏剧性的、独到的空间氛围。让业主在一个冷静又有层次的场域里,去做热爱的事情。大量的留白,为推进生活留下很多可能性。希望能为业主在确定的趋势里,做确定的自己,沉淀一个稳定、舒适、考究且可生长的空间。
▲FENDI的茶几
▲FENDI的椅子和边几、立达信的地灯
▲锐驰的沙发、FENDI的地灯
▲Baxter的餐桌和椅子
设计师希望,空间使用者在看到一件家具时,能“看”出它的厚度,是滑溜溜、软乎乎还是硬邦邦的,甚至能“看”出它的气味。这其实是各种感觉混在一起形成的印象,会让人忍不住想去摸一摸,从而产生互动,形成关联。这种感觉推动着生活,在真正住进去的时候,那些只靠眼睛看到的表面样子反而不重要了。好的空间会用形状和表面,让眼睛像手一样“触摸”到愉悦,就像柯布西耶说的:“轮廓和外形是建筑师的试金石”。
03 阴影的重要性
现在这个时代,光线成了纯粹“数量够不够”的问题,窗户也不再是两个世界的“调解人”—— 它本该连接围合与开放、室内与室外、私密与公共、阴影与光明,现在却失去了这种存在的意义,变成了墙上少掉的一块。就拿大片玻璃来说……它们让建筑失去了亲密感,也没了阴影和氛围。
设计师不能只追求大面积玻璃和开放空间的比例,而应该关注越来越找不到私密生活的感觉,好像被迫过着“公共生活”,让居所不像个家。在这所宅子里,设计师希望通过窗户的设计,业主只要把灯光调暗点,让照明不那么均匀,就能舒服很多。因为真正好的空间里,阴影和光明就像在“呼吸”:阴影把光吸进去,亮处又把光呼出来,一深一浅,不停歇。
酒吧,是设计师用粗粝的空间界面围合起一个用天窗采光的空间。复古的皮质和古铜家具,有一种超脱地域之外的存在感觉。这是一个不常能体验到的空间,旨在刺激参与者的感官 —— 从讲究的变成原始的,从用眼看变成用耳朵听、用手摸、用鼻子闻,从亮的地方转向阴影里。有一种折磨人的办法就是用特别强的灯光一直照着,不给大脑留一点转圜和私密的空间,连心里的想法都好像被暴露出来,让人觉得被冒犯。
眼睛是让人感觉有距离、会产生隔阂的器官,而触觉却能带来亲近、亲密和爱慕的感觉。眼睛会审视、控制和探究,触觉却会主动靠近、温柔抚摸。在酒吧空间里,设计师通过刻意营造浓浓的阴影让清晰的视觉变得模糊,让远近的距离感消失,创造让人下意识用余光去看,想触摸的冲动。从天窗撒下来的光,引导空间使用者去探寻,进而和空间发生互动。
04 触摸的形状
人的手是复杂的器官,就像河口的三角洲一样,生命从遥远的源头汇集而来,涌现成伟大的行为洪流。手也有自己的历史;它们甚至有自己的文化和独到之美 —— 独立的意愿、感觉、情绪和作为。设计师希望在空间中安置不同形状的物体,从视觉的吸引转化成空间使用者双手的触摸。将手作为思考的器官,去感知出物体表面光滑与粗糙、坚硬与柔软、冰冷与温暖的差异,去记忆空间中不同的形状,或弯曲、或笔直、或连续、或间断。用这些触摸的形状,去连接情感中的片段,生成居住的记忆。
触觉将我们与时间和传统相连:通过触摸的印痕我们与数不清的前辈握手。一块经岁月沉淀的木头也是愉悦的触摸对象,不仅仅因为它有着令人抚慰的外形,还在于它传达了其形成的缓慢过程;这块木头将时间的延续物质化,将时间有形化。
▲铂晶的艺术品、立达信的吊灯
皮肤解读楼梯间木质扶手的纹理、重量、密度和温度。经过匠人的工具精心打磨以及使用者无数次的摩挲,能吸引双手去触摸。上楼下楼,已然成为一种愉悦的体验。
▲Baxter的沙发、瓦帕茵特艺术涂料
从现象学角度看,“蜷起来”这个动作其实就是“居住”的意思 —— 只有真正学会这样放松的人,才能感受到强烈的“家的感觉”。设计师想把两层通高的会客厅,营造出“家就像一个大大的摇篮”的感觉。让这里就像从居所里挖出来的一个洞穴,是个边界模糊、暖暖的地方。自然纹理的地面,石材肌理的艺术涂料,磨砂皮沙发的触感,大地色系中暗清的红色,无不让人感受到亲密和温暖。在这里,家的舒适和皮肤感受到的愉悦,变成了同一种感觉。
05 静默、时间与孤独
居所能带来的最重要的听觉体验就是宁静,房子把结构悄悄变成了实实在在的材料、空间和光线,就像一场无声的戏剧。老房子能让我们回到过去那种慢悠悠的时光和安静里;新房子的安静会回应我们,唤起回忆。真正打动人的居所会挡住外面的吵闹,让居住者专注于自己的感受。就像其他艺术一样,它会让我们意识到人本来就是孤独的。设计应描绘一种理想,也就是美的样子,帮居住者构建温暖亲密的居住空间。
梅洛 - 庞蒂认为,身体不是被动的工具,而是感知和理解世界的核心。身体赋予人们看到的外界,并把外部经历吸收进来,变成内在的感受,从而让“我”与“世界”形成一个紧密相连的整体。感官体验是流动的、多变的;居住者不是用某个器官单独感受,而是整个身体共同参与,由此构建出一个充满互动与联系的感性世界。卧室,是身体终极放松之地。设计师特意用朴素系的颜色制造柔和的空间氛围,或沉暗或鲜艳的家具,加上真丝床品,试图让居住者卸下所有防备,感知自我,安顿心灵。
我们的身体每时每刻都在和环境打交道。环境影响着身体的感受,身体也改变着对环境的理解,双方像对话一样不断调整对彼此的认识。没有身体能脱离所处的空间独立存在,而空间也因身体的感知才有了意义。光线充足,尺度开阔、相互渗透,且兼具艺术气息的卫浴空间,是身体最坦诚最松弛的地方。END.
项目信息
项目名称:【私人】定制住宅
项目地址:贵州省 · 贵阳市
项目面积:1000m²
设计时间:2022年08月
完成时间:2025年08月
设计公司:元禾旺景建筑设计事务所
设计总裁:王予舒涵
执行成员:肖开粉、周艳等
产品研发:元禾旺景建筑设计事务所
项目主材:威法全屋定制、imola瓷砖、企一照明、华为智能、高仪洁具、天工之作、瓦帕茵特艺术涂料
项目陈设:FENDI、Baxter、Poliform、锐驰、铂晶艺术、立达信灯具、宇甸画廊等
项目摄影:凯原集画
王予舒涵
贵阳元禾旺景建筑设计咨询有限责任公司 创始人兼设计总裁
教 育
硕士:英国卡迪夫大学 国际城市发展(IPD)专业
学士:北京交通大学 建筑学专业
社会职务
2025 米兰理工大学特邀讲师
2022年至今 任中国建筑学会室内设计分会 理事
2022年至今 任贵州民族大学艺术设计专业 硕士研究生产业导师
2004年至2014年 任教于贵州大学建筑系
荣 誉
2024 百名杰出青年工程师
2024-2025 中国室内设计年度封面人物
2023 北美PI设计奖
2023 世界设计奖
2023 墨尔本设计大奖-金奖
2023 第五届日本IDPA-国际先锋设计大奖
2023 美国MUSE设计奖-铂金奖
专业方向
酒店开发全过程咨询
住宅室内设计
设计方法论培训
设计理念
设计本质上是人类塑造自身环境的能力,且能对人的生活质量起着决定性的作用,我们用自己创造的方式改造着环境,在满足我们需要的同时,也赋予生活以意义。核心是明确理解和满足人的需求,让人的生活变得更加美好。好的设计一定是价值观对等的输出。设计师最重要的是把对世界认知的价值跟用户的价值进行耦合,然后传递出让用户觉得这是他需要的,但又超越了他需要的一种存在。
客服
消息
收藏
下载
最近

















































