查看完整案例


收藏

下载
CAD对户型做了调整,SU拉了模型,用知末渲染,省去了上材质打灯光的步骤,节约了很多时间
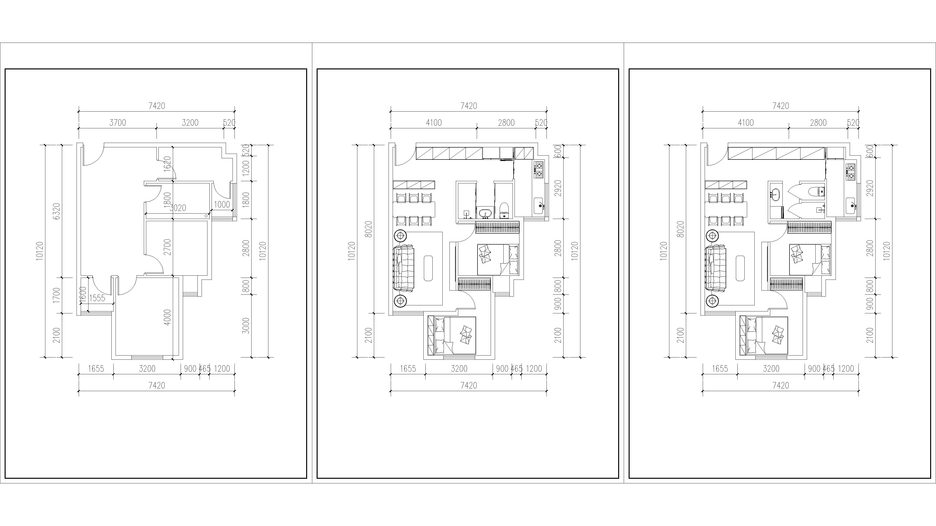
1.CAD对户型软硬装调整
2.SU拉模型
3.知末找镜头渲染
1.
2.
3
4
5
AI目前能把大框架给处理的很好了,谈单是够用的,客户敲定了以后,还是需要SU+Enscape去做精细化出图,目前AI的发展还是初期,有很多不完善的地方,再过段时间等更多的专注于建筑的底层大模型和训练迭代更久的Lora,建筑AI设计会更简便,更精准,更可控,未来可期。
客服
消息
收藏
下载
最近









