查看完整案例

收藏

下载
看惯了流行于世的优秀设计,感动于设计师在这些设计中的思考,他们或在简约、睿智中流动,充满灵性;或关注场地中对历史、文化的隐喻,厚重而谦逊;抑或用设计向生活致敬,彰显着“学习”的智慧……。但这一切仍然改变不了设计师在思考空间时角度的单调与程式化。于是,我们急待一种“新设计” 的出现,它携带一种看待生活的角度去和市场博弈与共谋,去“赢得体验、赢得大众”。用“社会学”的眼光来看。设计多元可能是一条途径。但是,如何使设计多元方法有很多,究其影响力而言,空间设计首当其冲!成都著名设计公司“润舍纳图”在“富森美家居.天府”设计的自用办公空间,就是用美为话语,探求用体感与视觉使感观清澈的一次有实验意义的尝试。
石墙、深色木门、遮阳篷,三大体块构成了入口的基础。材质的粗犷与细腻、颜色的深沉与雅致,在极简的造型中碰撞融合,于立面上形成一处深邃而有力的视觉焦点。
在世界日趋多元的今天,我们看待世界的角度变得越来越“自我”,越来越呈现“叠加”的状态,越来越有“生命化”与“生物性”的特征。在“富森美家居.天府”“润舍纳图”设计工作室,设计总监李雪设计的自用办公空间的全过程中,他就用鲜明的生活特征和温婉、细腻的特质,让空间洋溢着“女性主义”光辉,在日渐生活化的空间类型中留下一抹亮色。在我看来:美是多元的而非绝对的,否则,就不会出现“南橘北枳”的悲剧了。因此,纯粹的、形而上的美在现实中是不存在的,我们看待“美”,不是只有“任凭世间风雨,我自岿然不动”的笃定,而应该是看得见生命的辉煌与落寞后的感受,只有出自内心的、来自生活、相拥于日常的“美”,才具有恒常的生命力和持久性。
“润舍纳图”的办公空间无疑是美的,不过,这种美不算是强烈的视觉冲击下那样产生“多巴胺”的愉悦,而是身在其间,才能感受到的、来自身体和对时光、温度的感知,是一种“润物细无声”的美好。我们衡量美也不能只有一种刻度的尺子,就空间而言,我们越来越迷恋不同情态下的“微视觉”,其间既有男性思维壮丽与理性,也有“女性主义 ”的温婉、感性和包容;既有年轻生活方式和全球化视野,也有年老的、怀抱记忆与时光温润后的睿智……。因此,我们主张设计都应该有 “人”的特征,应该纳入了“生命”、“自然”与“生活的日常”的刻度。“润舍纳图”设计工作室空间的舒适感是从室外微型庭院开始的。
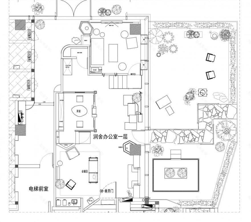
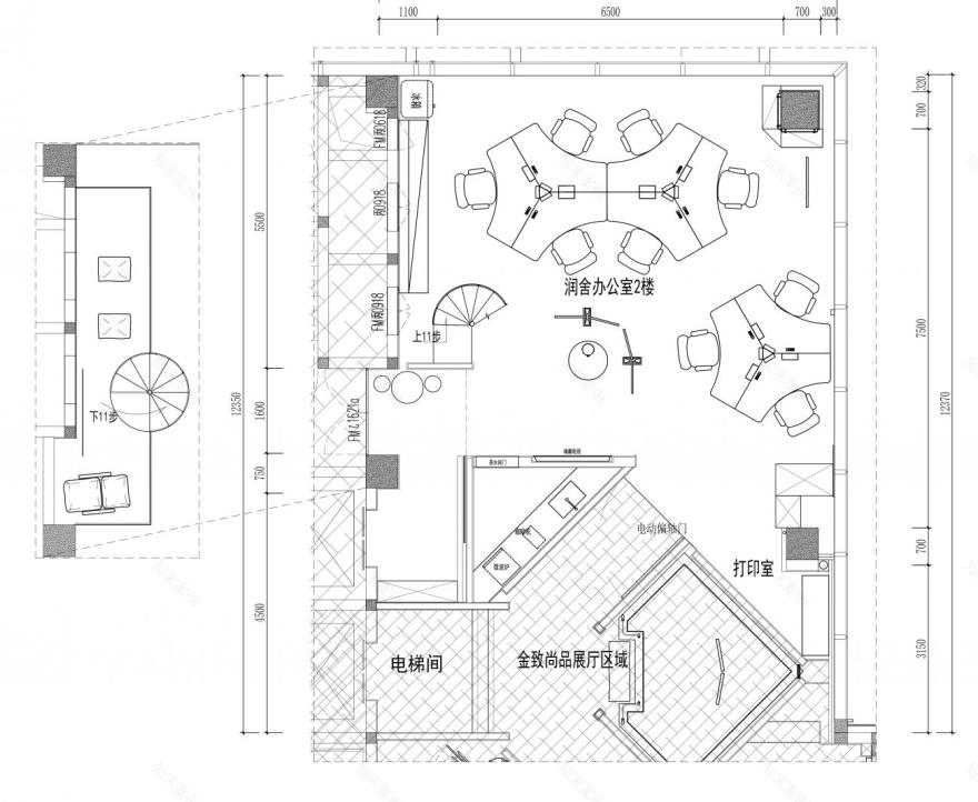
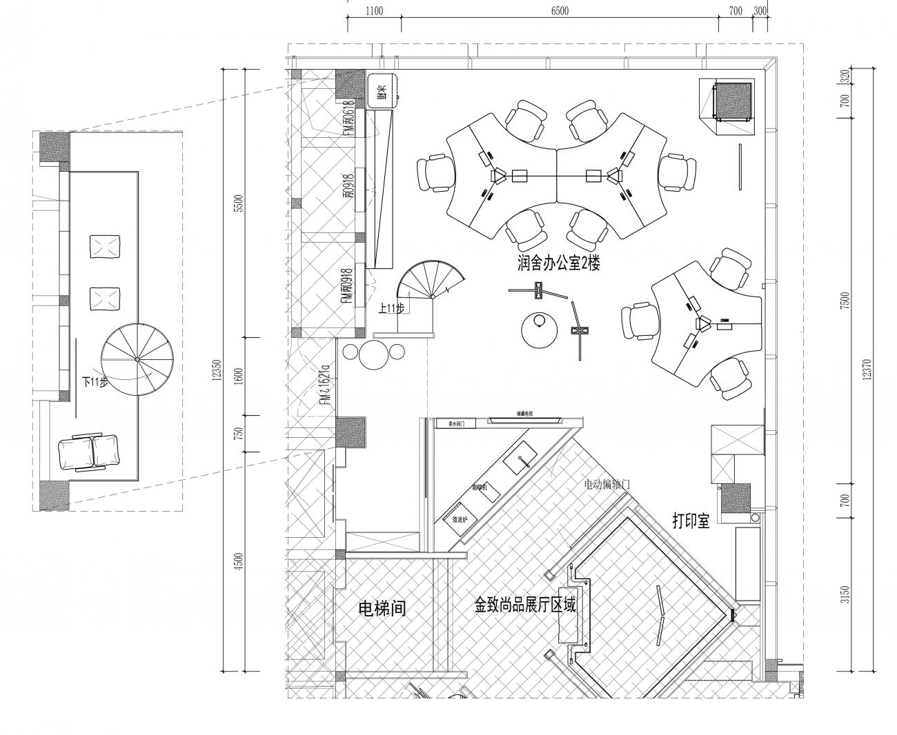
“富森美家居.天府”9号楼是一个极其内敛的小型建筑,其间包含了一个门窗展厅—金致尚品展示空间、微型庭院作为“润舍纳图”设计工作室和的入口,它还兼具了调节空间节奏的灰空间功能。在工作室空间的规划中,“润舍纳图”的设计总监李雪将建筑中作为“配角“的部分,划出两层、总计150平方米作为“润舍纳图”设计工作室的办公空间,并重新定义了设计师的工作状态和时间界限,让工作与生活完美地融为一体,使工作室的氛围成为设计师生活的一部分。
为了使原空间的逼仄感消失,设计师重新定义了空间节奏,并且,牺牲了9号楼的原秩序,让工作室与门窗展厅以两种逻辑并存于一个屋檐下,谁也不是谁的附庸。因此,设计师用室外庭院入户的方式,让室外空间与室内融为一体,光线改变了进入室内的路径工作室在阳光漫洒下,一切都有了生机勃勃的景象,中古家具的映衬着的植物,犹如从地面生长出来一样,一切显得熠熠生辉,设计师利用植物的设置、和半高楼梯的关系与墙面带有做旧痕迹形成游走路径,使工作室内的其他设计师在这里安神、安心,付出一天的时光。
润舍3.0这是一次向内的回归,不再试图用设计去征服什么,而是想温柔地接住每一个走进来的人。哪怕什么也不做,只是感受时间,和空间一起呼吸.设计不只是造一个空间,更是织一张情绪的网,能接住人的恍惚、疲惫、突然的沉默或灵感。
石料以沉稳的肌理铺陈天地与立柱,奠定宁静的基调。低位灯笼悄然漫射暖光,轻柔地托起空间,消解了挑高的冷峻。一窗绿意被巧妙纳入画中,与室内简约的器物静默对话
可开合的隔断灵活划分空间,旁边的木质书架陈列着书籍与艺术品,营造出雅致的氛围。
作为一位优秀的空间设计师,李雪具有较为超前的移情和转化感受的能力,在她的设计观中,空间属性之间从不是“主动”和“从动”之间的机械关系,她认为:设计是一个需要思想自由的行业,任何强加在设计师身上的限定,都有可能变成思想的枷锁,让设计变得匠气和不自由。李雪首先重新定义了“润舍纳图”设计办公的方式:设计,不一定需要“自闭式”地坐在办公桌前闭门造车,更需要社交和沟通,只要可以落座的地方就是设计师工作的场域,因此,他取消了传统意义上的“工位”的概念,让设计师用自己感受最舒服的体态去站著、坐着,去交流与讨论,甚至去八卦,这时,浓郁的生活氛围包围、充盈了设计师行为。
在此基础上,设计师将整个建筑中的空间视为有生命体呼吸的“生命体”,空间变成情感叙事的框架,其间充斥人地行为与社交内容,空间成为和材料、形式、氛围同等重要的“元素”而不是现实“条件”,捆绑在设计师身上的锁链被打开了。
光线自高处泻下,绿植如藤蔓般垂落,交织成一幅活的穹顶。一方茶台仿佛漂浮其中,安放着温润的手作器物。光与影透过天窗,在空间中无声流转,随时间雕刻着风景
疏朗的松枝影影绰绰,滤下一地闲适的绿意。黑色陶土桌台粗粝的肌理之上,手作陶器与古朴旧物安然静置,仿佛在进行一场无声的轻语。
“润舍纳图”设计工作室虽然仅150平方米、而且是跨二层的办公空间,但在设计师手中,却充分发挥女性设计师感性、细腻和想象力四溢的重要的领地。设计师将在生活中领悟到的节奏与美,用最个人也最日常的方式无言地彰显出来,李雪在这里没有说教,也没有高不可攀的理论,更没有提出什么“主义”,一切都坦坦荡荡,迎风生长,自然而流畅,但向我们揭示出一个道理:对我们随时都在使用的空间也好、器物也罢,都不能仪式感或设计的痕迹过于强烈,因为他会“反噬”我们的行为,让我们无法安神与专注。
木质百叶如画卷般向两侧舒展,将视野引向远方,拓展了空间的呼吸感。温润的灯光如轻柔的纱幔,掠过墙面细腻的粉质肌理。蓊郁的绿意与手作器物默契低语,悄然将室外的盎然生机与室内的宁谧安然编织为一体,形成一处令人心绪沉淀的情绪场域
左侧,安藤忠雄为CarHansen&Son设计的「梦想椅」,以简洁的弧线成为沉思的角落;右侧,JACO的茶几以沉稳之姿托起日常;上方,Wdstck的吊灯则如一件轻盈的艺术装置,点亮这方温情天地。
行笔至此,我的心里突然萌生了一个想法:我们要讨论的是设计师李雪在“富森美家居.天府”9号楼的润舍纳图设计工作室的设计创意吗?显然不是!因为这个办公场地带有太过明显的场所胎记,而且不具有“普世”价值。但是,设计师在这个设计中抱有的设计观却是值得我们思考的。
一层平面图
二层平面图
项目名称 | 润舍纳图3.0办公空间
项目位置 | 四川成都
项目面积 | 150㎡
设计单位 | 润舍RESOLUTE设计事务所
设计内容 | 硬装、软装
设计总监 | 李雪
设计团队 | 李雪、叶黎
深化施工 | 2 % P Lab
项目品牌 |金致尚品门窗、本木木作、瑞族V-ZUG、U+、昕升泰仿钢窗、BOMEI博美楼梯、BRIGHTNEST博根特、莫洛尼MOLONEY、Techsize德赛斯、集物地板、I HOUSE、壹集YIJI、haus101、予所Yusol、JUEST加里思特、麦克维尔中央空调、A.O.史密斯、鹏基艺术石材、富豪石业、尚锦-花不缺植造、AOARASI青嵐、Ballad捌楽、Kar、Onemorechair、莺Oriole、ZAMANI、顶丰科技、光度光舍照明、贰匠新型材料、不造新材料、CANOVA空间美学、石上流文化、石头牛建材、琦邦家居、陈光耀、周强、萬亨
品牌策划 | SACCREW 果术品牌、灯笼惊喜
项目摄影 | 形在建筑摄影/贺川
项目文案 | 张轶青
设计年份 | 2023.12
完工年份 | 2024.10
李雪
润舍纳图设计创始人、设计总监
润舍纳图设计事务所2013年设立于中国成都,拥有国内外专业院校数余人的设计师团队,主理人李雪毕业于四川美术学院,常年设计游学英国、法国、意大利、瑞士、德国、美国、加拿大、日本、韩国、新西兰等国家。作品被国际及国内知名专业设计主流媒体收录及发布。践行“理想生活 不止于美”的价值理念、服务业态多元的空间设计事务所。以不断挑战极具美学价值、情感价值、商业价值、无可替代的全感官体验、营造极具文化、艺术感知力、启发性的空间设计。旨在关注人在空间里的情绪精神需求,以人为本,围绕当代中国人的精神与情绪安放场域,通过空间设计去诠释人们在空间里的情绪价值,设计服务范围涵盖:商业、零售、文旅、酒店、城市更迭、及私宅等。
客服
消息
收藏
下载
最近
















































