查看完整案例

收藏

下载
该项目是位于加泰罗尼亚布拉瓦海岸(Costa Brava)萨加罗(S’Agaró)一座小山上的大型住宅开发的首个阶段,坐拥面向大海的景观。
This project marks the first phase of a larger residential development on a small hill in S’Agaró, overlooking the sea along the Costa Brava in Catalonia.
▼山坡上的住宅开发项目,a larger residential development on a small hill © Adrià Goula
▼坐拥面向大海的景观,overlooking the sea © Adrià Goula
▼地块边缘设有一座无边泳池,complemented by an infinity pool at the edge of the plot © Adrià Goula
▼地块边缘设有一座无边泳池,
complemented by an infinity pool at the edge of the plot © Adrià Goula
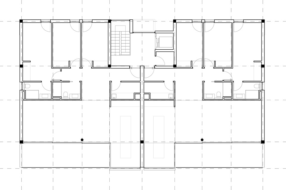
严格的地方性法规与体量规划条例对这类建筑有着严格限制,仅允许棱柱体量的形式,每个体量最多容纳四户住宅。设计顺应这些限制,将四套公寓安置在每个棱柱体内,每层布置两套。
Strict local regulations and volumetric planning laws for this type of construction allow only prismatic volumes, each accommodating a maximum of four dwellings. The design responds to these constraints by placing four apartments within each prism, organized as two per floor.
▼棱柱体量的形式,prismatic volumes © Adrià Goula
建筑内部空间分为南北两部分:北侧为夜间区域,面向山坡,包含卧室与浴室;南侧为日间区域,面向大海,被设计为一个大型露台式的开放空间,整合了客厅、餐厅与厨房。
The building is divided into a night area on the north side, overlooking the hill and including bedrooms and bathrooms, and a day area on the south side, facing the sea. The latter is conceived as a large, terrace-like open-plan space integrating the living room, dining room, and kitchen.
▼面向山坡的北侧区域,the north area overlooking the hill © Adrià Goula
▼面向大海的日间区域,the day area overlooking the sea © Adrià Goula
▼面向大海的日间区域,the day area overlooking the sea © Adrià Goula
因此,北立面采用大尺度竖向开窗,而南立面则完全由玻璃围合,外部露台进一步延伸了室内空间。建筑的不透明部分覆以沙色釉面陶瓷板,其余部分为玻璃材质。场地花园保留了自然地形与野生植被,地块边缘设有一座无边泳池,完善了整体的休闲体验。
Accordingly, the north façade features large vertical openings, while the south façade is entirely glazed. The exterior terrace extends the interior space.
The opaque parts of the building are clad in sand-colored glazed ceramic, while the rest is made of glass. The garden preserves the natural terrain and wild vegetation, complemented by an infinity pool at the edge of the plot that completes the leisure spaces.
▼夜间花园,the garden at night © Adrià Goula
▼灯光下的住宅,the house under lighting © Adrià Goula
▼夜晚的泳池,pool at night © Adrià Goula
▼建筑立面覆以沙色釉面陶瓷板,
The opaque parts of the building are clad in sand-colored glazed ceramic © Adrià Goula
▼平面图,plan © MIAS Architects
Client: Fontan Promo 2006
Country: Spain
City: Castell-Platja d’Aro
Date: 2023-2025
Photography: Adrià Goula
Floor area: 2.000 m2
客服
消息
收藏
下载
最近























