知末
知末
创作上传
VIP
收藏下载
登录 | 注册有礼

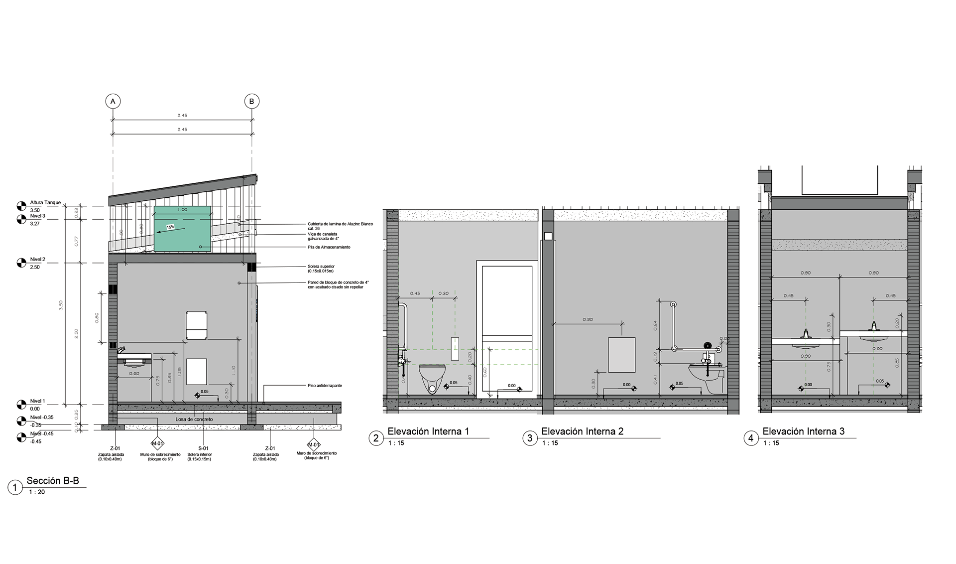
Agualí Sanitary Station

2025/09/30 03:22:34
查看完整案例
微信扫一扫
收藏
下载
翻译
Agualí Sanitary Station-0
Agualí Sanitary Station-1
Agualí Sanitary Station-2
Agualí Sanitary Station-3
Agualí Sanitary Station-4
Agualí Sanitary Station-5
Agualí Sanitary Station-6
Agualí Sanitary Station-7
Agualí Sanitary Station-8
Agualí Sanitary Station-9
Agualí Sanitary Station-10
Agualí Sanitary Station-11
Agualí Sanitary Station-12
南京喵熊网络科技有限公司 苏ICP备18050492号-4知末 © 2018—2020 . All photos and trademark graphics are copyrighted by their owners.增值电信业务经营许可证(ICP)苏B2-20201444苏公网安备 32011302321234号
客服
消息
收藏
下载
最近