查看完整案例

收藏

下载

翻译
DD77 became the first prototype of the standard houses of the third series of DublDom. In this project, we continued the work on the development of an accessible and mass modular architecture. The DublDom is produced at the factory and delivered to the site in the prefabricated state. Due to the advances in technology and increase in production volume, we were able to upgrade many characteristics, improve ergonomics, increase attention to details, and, at the same time, save the cost of production per square meter of the house. New solutions were implemented for the module frames, insulation, structural rigidity, finishing materials, and design elements.
We are implementing many of the architectural principles in a standard modular product:
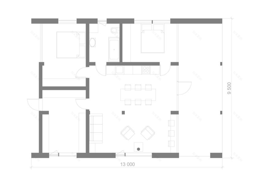
- Interior space ergonomics. The area of the whole house is used to the maximum possible extent due to the solutions developed for furniture arrangement, socket locations, and utility systems. Many furniture elements are also made in-house. There are no non-functional areas in the house,
- Open central multifunctional space, allowing each client to use it for their needs.
- The external simplicity of the double-sloped volume makes it easy to adapt the DublDom to any environment, be it forest, field, suburban community, or urban area.
- We utilize the principles of a passive house, such as a glazed facade with a veranda, oriented to the South, the simplicity of forms, absence of thermal bypasses, and the
use of sunlight.
- Interaction with the natural environment through the glass curtain walls.
- Maximum use of natural light to create a healthy microclimate and save energy.
- The possibility to extend the house in the future. So, the standard DD51 model can
be easily extended to DD77 or DD101.
The DD77 model is located at a standard suburban land plot, with a total area of 600
square meters.
The Russian phenomenon of Dacha is known in this country since the beginning of the
18th century, but it adopted the modern meaning in the 1950s, when land plots were
allocated for enterprises and distributed to the best workers. Therefore, suburban
communities with the telling names of Energetik (the Power Engineer), Kvant (the
Quantum), Dzerzhinets (the dweller of Dzerzhinsk), Podshipnik (the Bearing), Khimik
(the Chemist), Metallurg (the Metal Maker), Mechanizator (the (Farm) Machinery
Operator), Neftemash (the Oil and Gas Industry Plant), or Avtotransportnik (the Road
Transport Worker) began to appear throughout Russia. Most of land plots had an area
of six, sometimes eight, hundred square meters. For the USSR Communist Party
officials and cultural figures, the plots could be up to 1 hectare or more, but we are not
interested in this stratum of society in the context of this story.
At the time of Khrushchev (1953-1964), allotment gardeners could get a land plot only
for gardening; but during Brezhnev's time (1964-1982), the arrangements were
slightly changed. It was possible to build a house of up to 25 square meters for
habitation in summer. At the end of the 1980s, the restrictions on the size of suburban
houses were lifted and disproportionate two -, three- and four-story buildings began to
appear on small suburban land plots. Many of suburban communities still maintain an
atmosphere of collectivism, where there are no high fences, there are small houses,
and the aged ones cultivate their gardens. Many suburban houses are now used as a
place for permanent residence. In one of these suburban communities, called Orbita
(the Orbit), we have installed the DublDom77. The project shows that the DublDom
can be placed even in an ordinary suburban land plot with an area of 600 square
meters, delicately fit into any environment, and not to disturb the architectural space.
There is still space for car parking, lawns, apple orchard, and further construction on
the land plot. The DublDom with its low cost becomes an affordable alternative to a
city apartment.
Simple and eco-friendly materials are used in the house finishing. All interior finish is manufactured from solid pine. Outside, we combine glass, painted and burnt wood, and metal sections. It is interesting that in Russia such metal items are commonly used for fences, but we used it in modern architecture.
The interior is designed in collaboration with Archpole, a Russian design company, and continues the idea of brevity and simplicity of design. All furniture and accessories are manufactured by Archpole team at their in-house production facilities in Moscow.
客服
消息
收藏
下载
最近
























