查看完整案例

收藏

下载
SHINEV DESIGN
专 业 定 制 设 计 + 精 细 化 施 工 管 理 +高 品 质 家 装 服 务
寻 找 心 中 的 家
隐序
HIDDEW ORDER
项目地址 /上海.公园海德
项目面积 / 113㎡
设计 / 熹维设计
摄影 /立明
写在前面
提起Loft,人们总想到 “高挑空”“酷设计” 的浪漫想象,但落到实际居住里,不少人却陷入 “理想与现实” 的落差:想让楼梯不占地方,又怕显得廉价;想让空间够实用,又被原始户型绊住脚;想让上下层都舒服,却总在 “挤空间” 和 “保颜值” 间纠结。上海这套113㎡的 Loft,偏偏打破了这种纠结。今天,我们就来看看这个Loft,是如何做到 “好看又好住” 的。
When people talk about lofts, they always conjure up a romantic vision of "high ceilings" and "sleek designs". However, when it comes to actual living, many are confronted with a gap between "ideal and reality": they want staircases that don’t take up too much space, yet fear they will look cheap; they aim for a practical space, but are held back by the original layout; they hope both the upper and lower floors are comfortable, yet constantly struggle between "maximizing space" and "preserving aesthetics".
This 113-square-meter loft in Shanghai, however, breaks free from such dilemmas. Today, let’s take a look at how this loft manages to be both "visually appealing and highly livable".
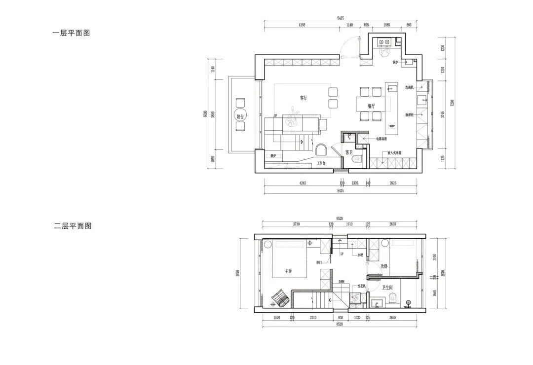
平面布局亮点
#原始户型图
原始户型问题:原始楼梯位置浪费空间且让整个公区显得零散。原始楼梯结构较为笨重压抑,遮挡了采光。动线较为混乱,需要整合格局。厨房区域较小,且藏着一个固定飘窗,台面空间被压缩。二楼卧室功能单一,常用卫生间较小。
#平面布局图
户型改造亮点:
首先对动线整合,将一楼二楼空间重新布局。
一楼原始楼梯拆除后,客厅空间更加通透,开阔性十足。
楼梯与沙发一体化设计,前沙发后书桌,空间利用MAX。
拆除一楼朝北卧室,融入开放式厨房。
二楼扩大常用卫生间,新增水吧台与洗烘家政柜。
01餐厅/
Dining room
厨房是“烟火气最重”的地方,也是最需要“整洁感”的地方。
The kitchen is the area filled with the strongest "vibe of daily life" and also the one that most demands a sense of tidiness.
原始厨房的固定飘窗,原本是“鸡肋”——既不能拆,又占了台面空间。设计团队以飘窗的台面为基础,向上延伸出一段操作台;飘窗下方的空间没有浪费,做了抽屉式收纳,餐具、锅具可以分类藏在这里,台面始终保持干净。
The fixed bay window in the original kitchen was originally a "chicken rib" – a useless item that’s a pity to discard. It couldn’t be removed, yet it took up counter space. The design team used the countertop of the bay window as a base and extended an operating counter upward; the space under the bay window wasn’t wasted either – it was turned into drawer-style storage, where tableware and cookware can be stored by category, keeping the countertop clean at all times.
整个厨房区域用易打理的“岩板”做台面和墙面,宛如一个“黑匣子”;厨房的另一端,是藏”与“连”。
The entire kitchen area uses easy-to-maintain "sintered stone" for the countertops and wall surfaces, resembling a "black box"; at the other end of the kitchen, the design focuses on "hiding" and "connecting".
岛台后方延伸出一排橱柜与嵌入式冰箱、与岛台、水池、中厨形成“环形动线”。由客厅看向餐厅,结构的交织为空间增添一份独一无二的生活叙事,记录着三餐四季的点滴。
A row of cabinets and a built-in refrigerator extend from the back of the kitchen island, forming a "circular traffic flow" together with the island, sink, and enclosed kitchen area. Looking from the living room to the dining room, the interweaving of structures adds a unique life narrative to the space, recording every bit of life through the four seasons and three meals a day.
02客厅/Living room
客厅是这次改造的“重头戏”,而其中最关键的,就是那座“悬浮楼梯”——它不仅是上下层的通道,更是整个空间的设计核心。
The living room is the "highlight" of this renovation, and the most crucial element among it all is the "floating staircase" — it is not only a passage connecting the upper and lower floors, but also the design core of the entire space.
原始楼梯洞的位置被彻底重新规划,设计团队用“金属钢板折弯工艺”,打造了一座视觉上“漂浮”的楼梯:没有厚重的底座,踏步仅靠与墙面固定的扶手、以及踏步自身的承重结构支撑,从远处看,仿佛每一级台阶都悬在半空,瞬间让客厅显得通透宽敞。
The location of the original staircase opening has been completely replanned. The design team utilized the "metal plate bending technique" to create a visually "floating" staircase: Without a heavy base, the steps are only supported by the handrail fixed to the wall and the load-bearing structure of the steps themselves. Viewed from a distance, each step seems to be suspended in mid-air, instantly making the living room appear transparent and spacious.
楼梯踏步做了“延续性设计”:最下方的一级踏步,直接与沙发底部衔接,沙发的弧度与踏步的线条完美契合,既没有浪费楼梯下方的死角,还让整个公共区域的动线更流畅——从楼梯下经过时,完全不会被磕碰,客厅的使用空间丝毫没被侵占;
A "continuous design" is applied to the staircase steps: the bottom step connects directly to the base of the sofa, and the curvature of the sofa fits perfectly with the lines of the step. This not only eliminates the wasted dead space under the staircase but also makes the traffic flow in the entire public area smoother — when passing under the staircase, there is no risk of bumping into anything at all, and the usable space of the living room is not occupied in the slightest.
酒精壁炉为氛围感神器,暖暖的火苗烘托下瞬间点燃“家”的温暖意象。
The alcohol stove exudes a strong ambient vibe. Under the glow of its warm, flickering flames, the cozy imagery of home is instantly kindled.
在不使用客厅面积的前提下,设计团队在沙发后方“偷”出了一个迷你书房:一张窄边书桌、一把轻巧的椅子,再配上一盏台,就成了业主临时办公、看书的小角落。
Without taking up any space in the living room, the design team "sneaked out" a mini study behind the sofa: a narrow desk, a lightweight chair, and a table lamp combined to form a small corner where the homeowner can work temporarily or read.
03 主卧/Master bedroom
Loft的楼上,是业主的私密休息区。设计团队没有追求“大卧室”,而是让每个空间都“物尽其用”。
The upper floor of the loft serves as the homeowner’s private resting area. Instead of pursuing a "spacious bedroom", the design team focused on ensuring "every space is put to the best use".
整面墙做了黑色衣柜,没有多余的装饰,仅靠简洁的线条和颜色提升质感,“隐藏式”移门设计不占空间。
A full-wall black wardrobe is installed, with no extra decorations. It enhances the texture solely through its clean lines and color, and the "hidden" sliding door design saves space.
客服
消息
收藏
下载
最近


























