查看完整案例

收藏

下载
该项目探索艺术与家居的交汇,重新构想纹身艺术家的工作和生活。尽管这两个世界看似自然交织,但建筑本身却划出一条清晰而静谧的界线,致敬技艺的精准与家庭生活的温情,两者在同一屋檐下交相辉映。
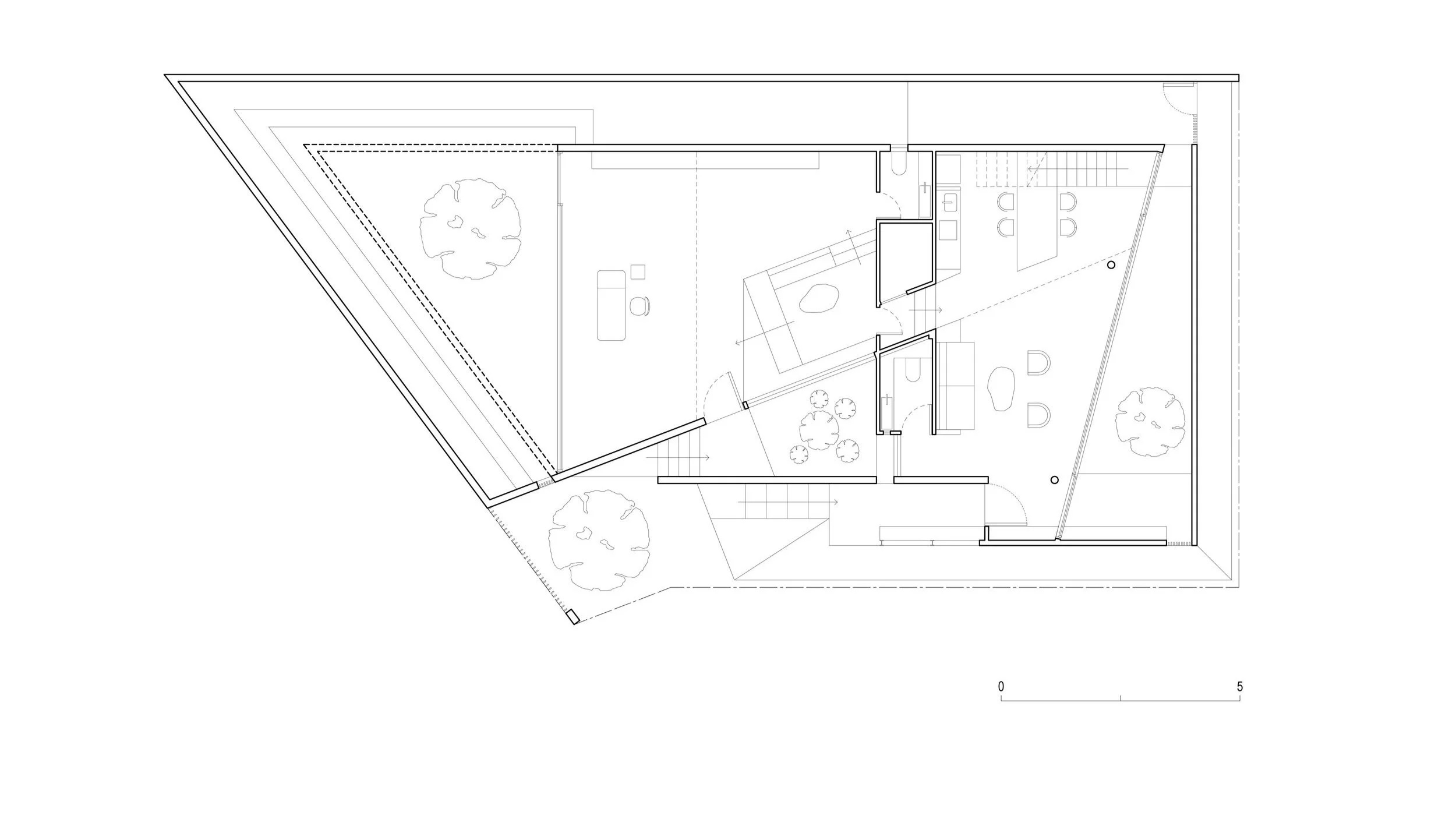
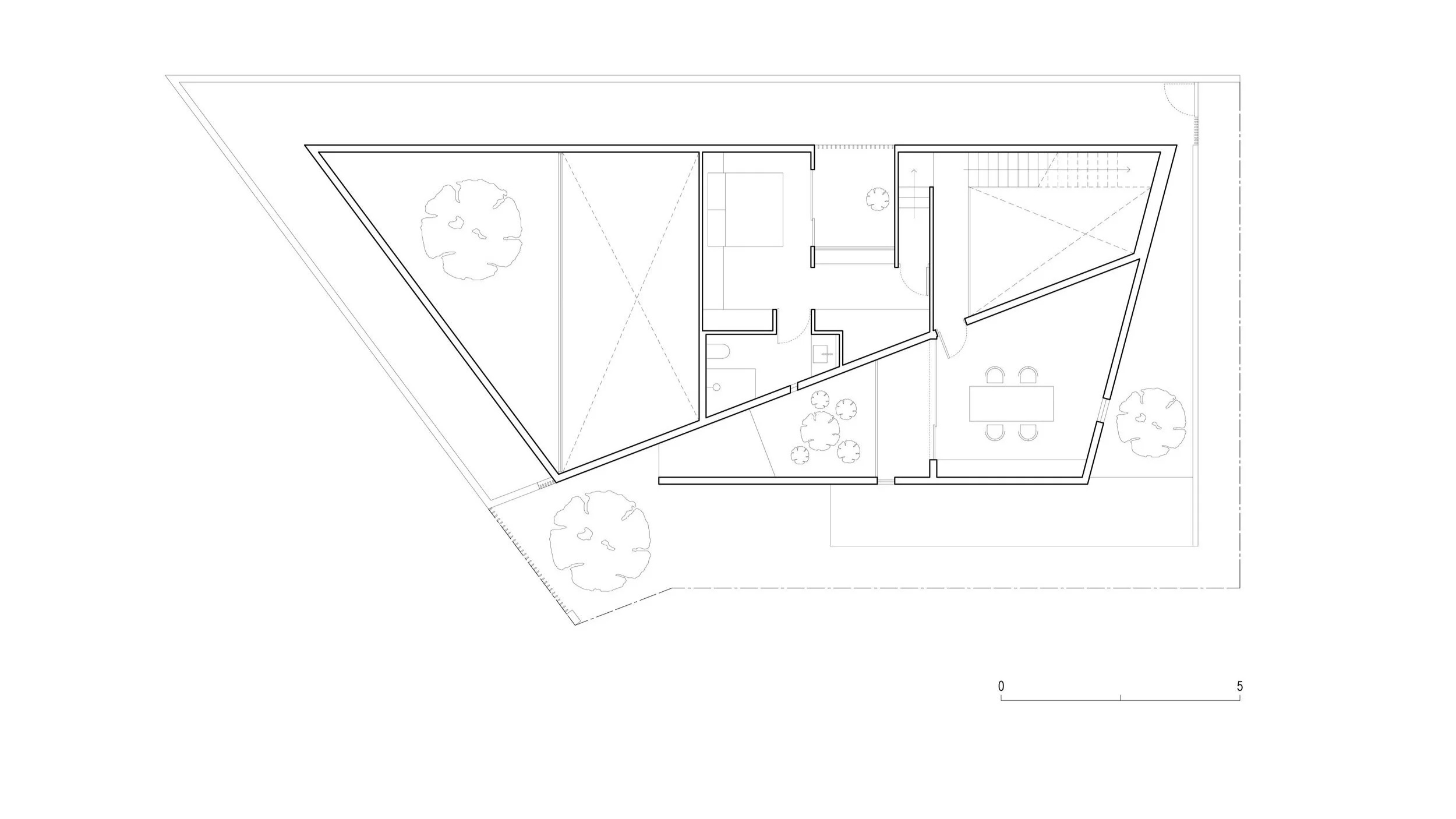
建筑坐落在曼谷西部一个中等密度郊区的梯形地块上,棱角分明的立面朝向繁忙的主干道,极简主义的表皮之下则掩藏着其内在的活力。在这个雕塑般的外壳下,Casa T 既是工作室,也是私人住宅。该项目由其业主——一位以精湛技艺闻名的纹身艺术家——共同设计,旨在不仅满足功能需求,更要提升技艺的水平,重新定义纹身体验。工作室并非仅仅是一个进行纹身操作的场所,而是一个自我表达、个人叙事和创造力的圣殿。
建筑语言直接源于纹身艺术。锐利与精准——呼应着针的律动——体现在简洁的线条和棱角分明的边缘。整体的建筑体量在街景中塑造出新的身份,营造出私密感,同时又选择性地向内部庭院开放。
Casa T 呈现两种截然不同的空间体验——一个内省的工作室和一个温馨的家庭住宅。工作室的设计旨在营造私密而又高雅的氛围,传达出一种专属、仪式感和神秘感。此外,工作室以亲生物的方式运用光影互动,打破了纹身店阴暗、枯燥乏味的典型刻板印象。穿过工作室隐蔽的入口,映入眼帘的是一座引人注目的双层挑高建筑,它作为空间的中心。这种垂直感将视线向上吸引,并与内部庭院巧妙地连接。这些设计将自然光和绿植引入建筑结构,为严肃的室内空间增添了一丝精致与生机。艺术家精心挑选了多种材质,以深邃的墨色为主色调,以此致敬艺术家的创作手法。
与之形成对比的是,通过独立入口进入的住宅,则展现出柔和宁静的氛围。暖色的材质、浅色调和透过的日光不仅减缓了节奏,也放松了空间的几何感,为人们提供了休憩和反思的空间。日常功能分布在两层楼,并朝向次级的私人庭院。这个空间专为家庭和静谧时刻而设,为艺术家提供了一个与工作相得益彰、激发创造力的场所。
这种并置是经过深思熟虑的。职业与个人之间的界限并非一堵墙,而是一个门槛——一个艺术与私人生活并存的地方。Casa T 旨在呈现一种平衡,它讲述了一个既建筑又情感丰富的故事:一幅被水墨、光线和空间镌刻的生活肖像。
Architect: SSAA
Interior Designer: SSAA
Landscape Designer: SSAA
Structural Engineer: Keystone Consultants
Main Contractor: PCM Built
Landscape Contractor: Plibai Garden
Photographer: Chakkraphob Sermphasit (AACS)
设计美学与现代功能完美结合的典范。通过定制化设计、精挑细选的家具与软装陈设,打造成一处永恒的美学空间。设计美学与现代功能完美结合的典范。通过定制化设计、精挑细选的家具与软装陈设,打造成一处永恒的美学空间。]空间氛围营造很棒,功能与美学很好的兼顾到了
客服
消息
收藏
下载
最近













































