查看完整案例

收藏

下载

翻译
CHIC1699 RESTAURANT
CHIC1699, 2015 yılında S.Gourmet ile iş birliği yapan Z&D Cuisine'den sonra ikinci restoran marka alanıdır. Fujian'daki Xiamen, Fuzhou ve Quanzhou'dan Şanghay'a ve ardından Hangzhou'ya kadar, üç eyaletin her birinde üç edisyon bulunmaktadır. Son yıllarda marka çok iyi bir gelişim gösterdi. Birbirimizi izleyip birlikte büyürken, projenin çağrışımı ve mekan konsepti hakkında giderek yeni bir bakış açısı edindik. İlk başta modaya uygun, modern ve zarif CHIC stilinden yola çıkarak markanın özünü düşünmeye başladık.
Bana göre mekân estetiği, sanal ve güzel manzaraların sanatsal bir tasavvurundan çok daha fazlasıdır; rasyonel ve romantik bir felsefi yorumdur. CHIC1699 estetiğinin, bugünün ve geleceğin eş zamanlı bir gelişimi olmasını bekliyoruz. Bu trend geçicidir ve tarzı sonsuza dek sürecektir. Yaklaşık beş yıl içinde yenilenmesi gereken bir restoran gibi halka açık bir alanda bile, sakin bir güzelliği vardır. Bu nedenle, her şeyi son derece basit ve sembolik hale getirdik.
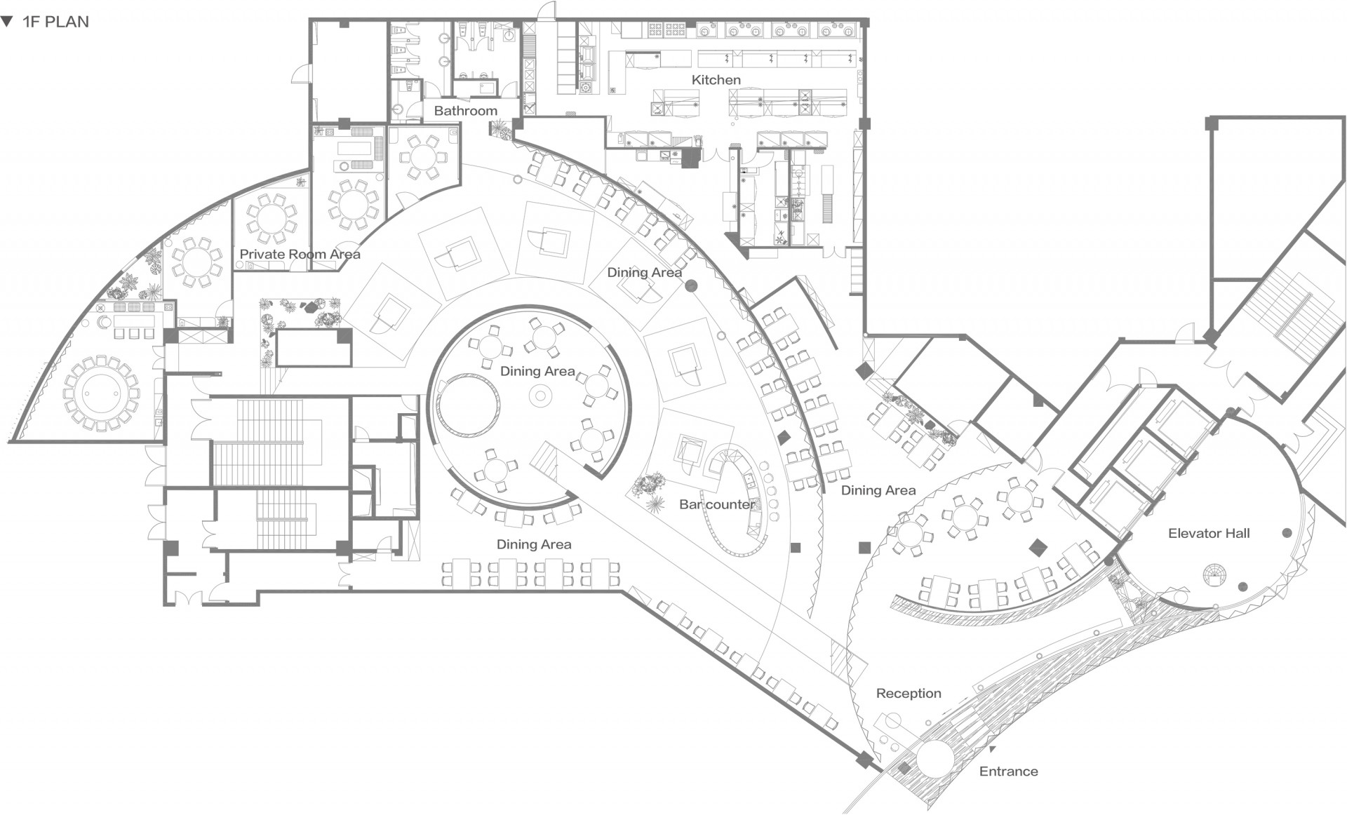
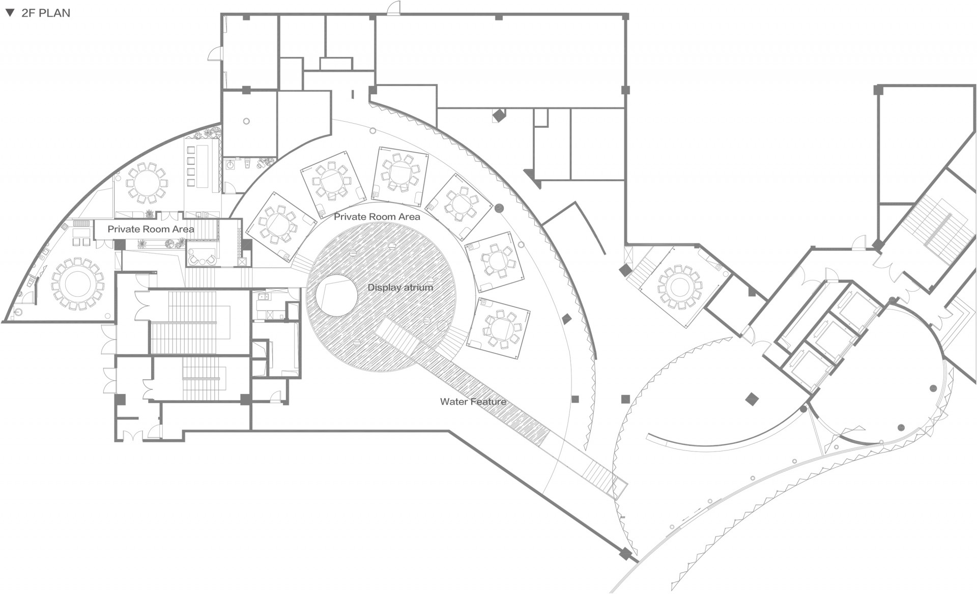
İlk nesilde oldukça gösterişli olan cam koridorun altındaki süs akvaryumu, kalbindeki sınırsız mavi dalgaları yansıtırken; şeffaf camlı zarif ev, her köşedeki konukların mekân seviyelerinin ilerici değişimlerini en üst düzeyde hissetmeleri için değil, aynı zamanda insanların giderek daha açık ve paylaşmaya istekli olduğu zamanların zihniyeti için de bir zorunluluktur.
Hangzhou Vientiane şehrinde, büyük ölçekli ve düzensiz bir alanda, devralmaya başladığımız ilk günlerde, orijinal fikir ve rotaları aşmayı hedefledik. S.Gourmet marka matrisinde, geleneksel Z&D su mutfağı ve resmi restoranı temsil eden Xizuo Fuzhou Guild Hall yer alıyor. CHIC1699, beş yıl üst üste Black Pearl listesinde yer aldı ve Fujian mutfağının temsilcilerinden biri haline geldi. Kendine özgü öncü ve sanatsal özelliklerinin yanı sıra, kendine özgü marka restoranına da sahip olmasını umuyoruz.
Burada, orijinal tasarımda bir ayrıntı olarak ızgarayı geliştirdik; bu da "AĞ" konseptinin Hangzhou Vientiane Şehri'nden geçen bu alanın tasarım kökeni olduğu anlamına geliyor. Fujian dağları, suları ve tarlalarıyla ünlüdür. Dağlara yakınsanız, onların üzerinde yaşarsınız. Denize yakınsanız, denizin üzerinde yaşarsınız. Ağ hem işlevsel hem de estetik, esnek ve dayanıklıdır ve hem özgürlük hem de hapisliktir. Balıklarımız var ve balık tutmak için bambu kapları unutuyoruz, ancak hayatın kuşatması, balık tutmak için bambu kaplar gibi değildir. Metal ağ inceliğindeki ekran ve aydınlatma teknolojisinin birleşimi, insanlara deniz kıyısındaki gırgır ağlarını hatırlatıyor ve ışıklar insanları gelgitler gibi denize çekiyor. Nefis yemekler için bir mekan deneyimi odası olarak, yemek yiyenler için hayal gücünün ötesinde bir olasılık daha inşa etmeyi umuyoruz.
客服
消息
收藏
下载
最近














