查看完整案例

收藏

下载
听山餐厅 X 绽放设计
【听山】
是餐厅自然料理的风味,是倾听内心,回归本真的生活态度,是国人独有的浪漫,东方语境下特有的意境
BloomDesign绽放设计从品牌命名、品牌视觉,到建筑改造、空间设计,打造完整意义上的自然美学餐厅。“听山”通过味蕾连接自然,让人们感受四时变化赋予食物的生命力。餐厅主理人根据《山家清供》古书还原制作四季时令,用应季食材打造宋式美学下午茶,款待每一位前来“听山”的客人。
滑动查看
听 | 环境如何打造?
听山位于石家庄ICC环球智汇中心B座一二层,ICC是石家庄综合性高端写字楼。设计之初考虑的核心是:如何把商务写字楼环境打造成轻松、开放、适合休闲消费,且能吸引和留住顾客的商业空间。
首先打开玻璃幕墙,让空间内外贯通。其次在一楼户外增加一个拱形屋檐的建筑结构,形成半围合半开放的向外延伸的空间;在空间内部加建一个旋转楼梯,贯通一二楼。然后打开二楼外立面,增加户外体验空间。
这几个建筑改造的关键动作让空间形成开放式结构,改变写字楼场域带来的束缚感,使其成为一个休闲消费体验空间。
大屋檐连接广场,广场景观以“听山”的意境为营造线索,将树、水、石、径贯穿其中,曲径通幽,屋檐似亭置于“山水”之中;区别于室内环境,半开放式的檐下空间,为顾客避雨遮阳,可以感受四时节气变化,在微风轻拂中感受自然。
推门进店,金箔材质书写的篆体“听山”书法格外醒目,这是绽放设计邀请艺术家为空间定制的艺术品,跟品牌logo一样,都选用书法家书写字体来衍生相关的品牌内容,这也让听山品牌基因多了一丝人文气息和情感温度。
滑动查看
滑动查看 | “听山”品牌VI设计
山 | 自然入风
一楼空间布局围绕开放式吧台展开,让服务变得可视化,透明且平等,让品牌更有人情味,拉近与顾客的距离。周围分别设有不同风格的餐区,满足不同场景的用餐需求。或多人围坐的长桌,或三三两两用餐的圆桌,精心设置的折叠窗弱化了室内外边界,在靠窗卡座用餐时也可以享受到窗外的一丝惬意凉风,身心放松。
滑动查看
餐厅在家具和材质上的选择,也是对“真实感”和“时间感”的一种诠释:天然木、手工砖、自然石,宣纸肌理和陶土质感,触感温润的皮革与松软棉麻沙发。
深色空间基调在暖色灯光的映衬下显得十分柔和与静谧,为空间赋予一丝内敛的诗意,置身其中仿佛时间也慢了下来,可以用心感受山野食单的自然真味。
滑动查看。通过旋转楼梯来到二楼,相对独立的“茶亭”空间为私密交流及喝茶用餐提供了必要条件。建筑结构增加了一个挑空阳台,让空间向外延伸,即使在二楼也可以走到户外,坐在“屋顶”亲近自然。
和听山的名字一样,在喧嚣的城市中,一个松弛有温度的体验空间隐匿在城市角落,连接城市与自然,像老朋友一样欢迎大家前来“听山”,为忙碌紧张的生活增添一份仪式感。
滑动查看
“听山”艺术品创作及局部肌理
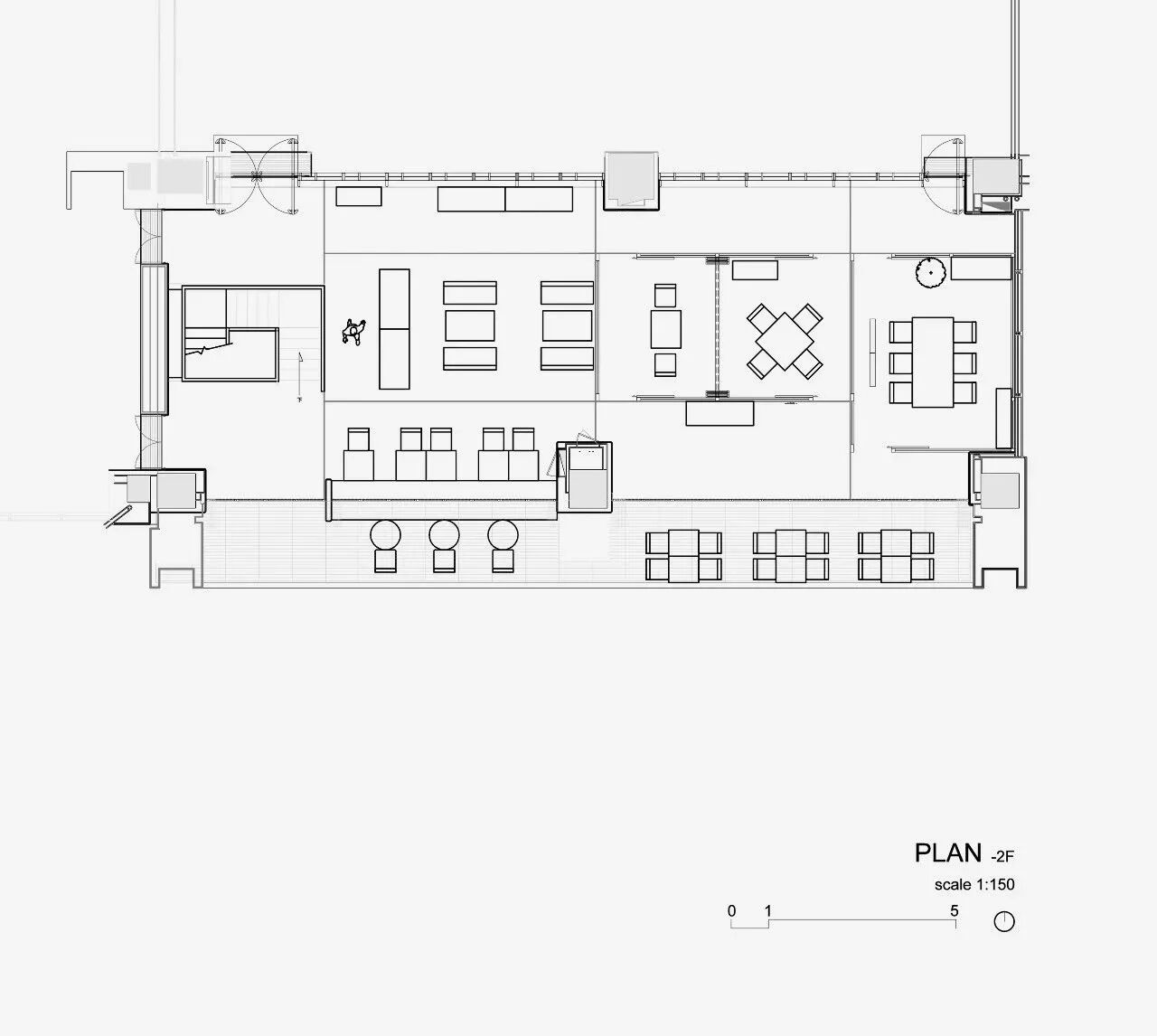
一层平面图
二层平面图
项目信息
项目名称:听山
项目业态:餐、酒、茶
项目地点:石家庄ICC环球智汇中心B座
项目面积:一楼480㎡/二楼195㎡(室内);178㎡(户外)
设计范围:建筑改造、室内设计、软装设计、品牌VI、灯光设计
完工时间:2025.07
设计单位:BloomDesign绽放设计
创意总监:李宝龙
主案设计:南鸿天
品牌VI设计:陈小虎
设计团队:汪润、周人杰、畅子宇
项目管理及后期:王凯、陈为苇
特别鸣谢
项目客户:中宏置业
软装设计:璞樾设计
书法定制:湖西草堂-曾琪
项目摄影:鲁哈哈
陈小虎(品牌总监) 南鸿天(设计师) 李宝龙(创意总监)
BloomDesign绽放设计
BloomDesign绽放设计立足于设计之都深圳,合伙人李宝龙和陈小虎分别担任团队的创意总监和品牌总监。绽放设计团队专注于新零售空间的品牌体验塑造,范围涵盖商业空间,品牌零售空间和品牌视觉形象设计,为客户提供从品牌视觉策略到品牌终端空间打造等整体性设计服务,是一家整合多元化创意服务的机构。曾服务于多家连锁商业品牌、时尚品牌等等,为诸多商业品牌创造了极具竞争力与启发性的多维品牌体验。近年来,更专注茶饮类新零售空间的研发及设计,为喜茶、有茶、大益茶、熹茗茶业、百分茶等知名品牌打造刷屏级作品。
绽放设计团队积极探索艺术与商业的创造性结合,为客户提供创造性的解决方案。设计作品多次被德国IF设计大奖、美国室内设计杂志中文版、荷兰FRAME杂志中文版、美国VMSD杂志、香港BCI Asia、中国室内设计年鉴、id c室内设计与装修、时代空间、现代装饰、设计家等专业设计奖项及杂志收录。
客服
消息
收藏
下载
最近




















































