查看完整案例

收藏

下载
项目名称:扬州广陵有熊酒店
项目所在地:江苏,扬州
项目类型:酒店
总建筑面积:约4250平方米
设计周期:12.2023-04.2024
施工周期:07.2024-04.2025
城市更新整体规划:东南大学建筑设计研究院有限公司
建筑设计:新建建筑:汤屋,客房栋6号楼(B.L.U.E.建筑设计事务所)
建筑改造:客房栋2号楼,客房栋7号楼(B.L.U.E.建筑设计事务所)苏北电影院及其他建筑(东南大学建筑设计研究院有限公司-UAL城市建筑工作室)
室内设计:B.L.U.E.建筑设计事务所
景观设计:广州山水比德设计股份有限公司-有象工作室电影院
展陈设计:筑道如闻
业主:扬州广陵文化旅游开发集团有限公司
品牌运营:万科酒店管理有限公司
施工单位:江苏扬建集团有限公司;扬州意匠轩园林古建筑营造股份有限公司(文保建筑修缮部分)B.L.U.E.建筑设计事务所
团队:青山周平、藤井洋子、刘凌子、李稣芸、周紫薇、历静远、赵馨蕊、王嘉慧、严景玉
摄影:夏至
主要建筑结构形式:木结构(文保建筑),砖混结构(客房栋2#&客房栋7#),钢筋混凝土框架结构(新建建筑)
主要建筑外立面材料:竹模混凝土,木模混凝土,水洗石,回收老青砖,石板瓦,灰泥涂料,手凿拉槽面石材
主要室内材料:手工肌理实木板,锯齿橡木板,老榆木板,火烧面花岗岩,手工石材砖,莱姆石,木纹石材,水磨石,肌理涂料,夹绢玻璃,做旧金属板
1.项目背景
项目位于扬州市广陵路老城区,其中包含不同年代感的建筑组团:木结构老建筑和砖混结构的上世纪现代建筑组团错落有致,形成了一个不同时代建筑风格的组团现状。设计内容包括文保建筑室内改造、新建建筑设计、客房楼栋改造及室内设计,将老城区的老房子变身为现代园林式酒店。
广陵路原苏北电影院地块更新项目是广陵古城城市更新项目中首批启动的重要项目之一。该项目在整体规划和方案阶段,业主委托了东南大学建筑设计院有限公司总负责。广陵有熊酒店是地块更新后的主要功能之一。酒店利用苏北电影院放映厅作为大堂,将大堂以北的建筑利用为客房,并改建了部分建筑。在酒店运营落地与施工阶段,运营方委托了B.L.U.E.团队,与东大院团队、江苏扬建集团有限公司、扬州意匠轩园林古建筑营造股份有限公司组成了紧密合作的多方共建平台。B.L.U.E.团队负责电影院放映厅的室内空间改造、酒店整体室内设计、两栋新建建筑设计及两栋酒店客房楼栋的外立面改造设计。
作为扬州的古城保护与更新的一部分,设计希望打造具有地方特色的现代酒店,通过有记忆传承、有温度的设计,让酒店成为地域文化传承和传播的载体。
2.苏北电影院改造概念
酒店大堂由原苏北电影院放映厅改建而来,设计理念重在尊重和保留原有的文脉历史和建筑语言符号,苏北电影院原有的屋顶木结构被保留,并充分利用和发挥放映厅通高空间的特色,大厅中设置的幕布保留了原来电影院的放映功能。
园林庭院布局,将自然元素引入到室内,模糊室内室外的边界,运用现代手法重现古城记忆。宜人的屋顶尺度让客人在进入大堂的时候,首先感受到回家的放松和亲切,并延续在园林中游走穿梭的体验。室内材料的选择方面,采用老榆木,天然石材地面,锯齿木饰面等具有古城记忆特色的材料,唤起古城记忆,同时在细节设计上选取了一些传统电影院元素的装饰摆件,水磨石和复古金属配件,突出电影院的历史记忆点,并且和扬州本地艺术家合作,以苏北电影院放映过的电影为素材,将其中的场景和人物二次创作,以板画的形式呈现。▲电影院概念分析图© B.L.U.E.建筑设计事务所
3.新建建筑设计概念
场地中的两处新建建筑保留了原有的第五立面样式,功能分别是餐厅包厢、客房和汤屋。▲建筑立面© 夏至
新建建筑的设计理念重点在对古城历史文化的记忆与传承,尊重场地的历史背景和现状布局。扬州是历史悠久的文化名城,以古典园林闻名。亭台楼阁又作为园林最常见建筑形式,承载着深厚的传统文化。新建建筑设计提取亭台楼阁、曲园长廊的意向,将几个各具特色的重点建筑串联起来,希望延续扬州园林的精神和体验感,空间随着人的行走变化流动,给客人动态的感官体验。
正对小巷入口的新建建筑,一层为餐厅包厢,二层为酒店客房。灵感取自“楼台”的意向,将二层的客房抬升,悬挑在造型简洁的平台上,巧妙的适应了场地的限制,同时自然的为客房创造了一个开阔的观景平台。客房采用坡屋顶的形式,并借鉴了以竹造景的扬州园林概念,用竹模混凝土打造现代的新式园林意向,一层利用现场回收的老墙砖搭建围墙,用通缝的拼砖方式,与周边的老院墙形成了历史和现代的对话。
毗邻盦园的汤屋,建筑入口通道由半通透的砖墙与公共庭院分隔开,保证了私密性。建筑双坡屋顶呼应场地整体建筑风貌,高低错落,移位悬挑,为建筑内部提供采光的同时也营造了一系列丰富的空间体验,呼应了内外空间相互渗透的园林式布局。水疗和足疗两个主要功能区域围合成一个私密的内院,外立面可以通过折叠门和推拉窗整体打开,打造与自然融合的水疗庭院。材料方面呼应了扬州传统建筑的小青瓦和以石造景的园林特色,使用了手凿石板瓦和手凿肌理石材,运用现代手法重现古城记忆。
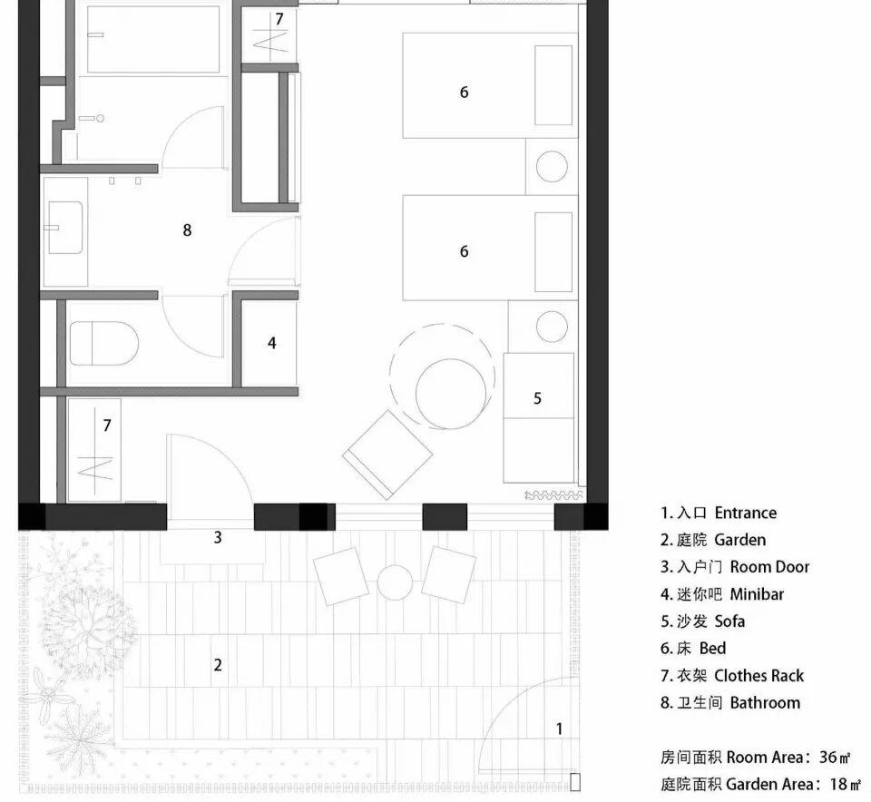
4.客房设计理念
酒店共40间客房。整体设计保留并沿用了原有的庭院布局。对于文保建筑的客房改造,设计保留了全部的木结构和外立面,并在内部增加了空调和供暖系统,以及卫生间淋浴间等现代生活所必需的功能。相对开放的布局和简洁的手法也让客房更具有轻松舒适的现代气息。
室内材质的选择方面,采用木材,天然石材,手工砖,肌理涂料,夹绢玻璃等自然材质,忠实于材料本身真实的质感,延续文物古建筑的色调和氛围,并借鉴了扬州传统手工艺木版画雕刻和铜器制作技法,进行了本土文化符号提取,使用手凿肌理木板、做旧铜板和木版画作为装饰,向扬州传统文化致敬。
对于客房栋2号楼及7号楼的外立面改造,设计保留了原有的门窗洞位置和外立面样式,并在走廊一侧增加了金属格栅装饰立面和种植盆栽,垂直绿化丰富走廊空间的同时又能遮风挡雨,为客人提供舒适的居住体验。客房同样也是现代风格,在材料选择上和古典客房基本一致,使用了木材,天然石材,手工砖,肌理涂料,夹绢玻璃等浅色调的自然材质,保持了整体空间色调的协调统一,并在细节装饰上采用了手凿肌理木板和手凿锤纹铜板,增加室内空间的在地性。
5.总结
作为扬州的古城保护与更新的一部分,设计希望打造具有地方特色的现代酒店,通过有记忆传承、有温度的设计,让酒店成为地域文化传承和传播的载体。
客服
消息
收藏
下载
最近





























































