查看完整案例

收藏

下载
物理的透明性 — 内与外
加减智库设计事务所新办公室的选址位于广州古老河道东濠涌的西侧,地处广州老城区越秀和东山的交界。东边远眺广州CBD珠江新城,北侧毗邻旧城,旧楼簇拥环抱着越秀山。城市的脉络被一栋栋高楼半遮半掩的隐藏其后,露出一个个的片段让人试图去窥探和脑补这个城市的全部。历史并非由不同时期、不同形态的文化按照时间顺序和空间区域有序分布、不断演替更新的历时性过程,而是文化的共时性积累、融合、膨胀,不可逆地走向多样性混生的进程。曾喆事务所希望在这样混合的共时性场景下去进行创作并挖掘城市空间的多样可能。物理上的透明性使窗外景致和窗内办公室的距离无限拉近,提供了一种机会使工作场景与城市背景形成内外模糊的拼贴式关系。
现象的透明性 — 共与私
根据格式塔心理学的逻辑——当我们看到事物的多个片段时,会自动想象和补全他的整体;看到多组信息时,会自动识别并分别设想每组信息的完整形象。如立体主义绘画将一个事物多个侧面、甚至不同时间的各个影像同时拍平了呈现在画布之上,使具有深度的物件的各个方向被压缩,形成浅空间。在新办公室的设计中,事务所尝试通过多个片段化的浅空间来创造模糊化,或者说创造相互渗透可以被多重解读的空间关系。这种透明性的空间节奏是可变的,不确定的,暧昧的。入口作为整个空间的前序,设计营造了一种神秘的气氛,使人产生窥探究竟的欲望。幽暗的空间里,标识装置通过倒映的方式形成了一个完整的“+ -”符号,利用虚幻和现实的结合来暗示事务所的名称。
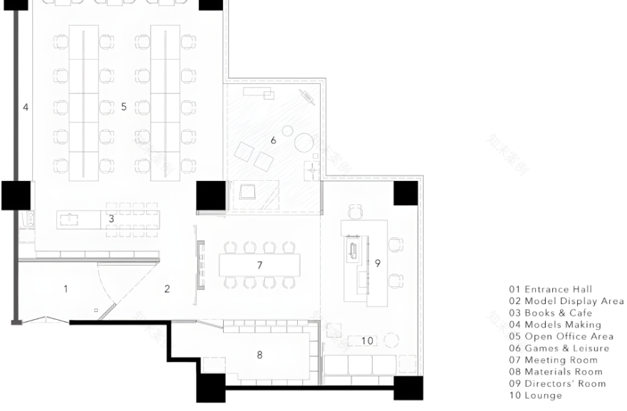
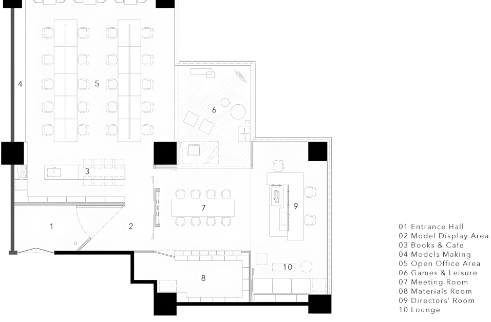
“加减”的名称符号镜面反射中空间的虚与实 砖,木,钢,玻璃这些作为建筑最为基础的材料,则通过装置化的建构方式来隐喻背后的故事。工字钢柱体里嵌入的一块块玻璃砖犹如墙上的珍品:砖的底部书写着特殊的日期与名字,代表着事务所的搭建和成长离不开的每一个人。入口空间开门后的不同空间的秩序与对比入口空间玻璃砖材料细节 入口墙体通过扭转的角度形成方向性的指引 入口墙体扭转的角度除了形成强烈的指引暗示外,同时也增强了空间的透视关系,结合黑暗的氛围,造就更为深远而引人探索的气氛。也正是因为这个幽秘的空间,与进门后的多重透明空间形成强烈的对比。入口空间开门后的不同空间的秩序与对比入门后的小型模型展示区域 入门后的小型模型展示区域 办公室平面里呈现的多个折面,使空间沿着东北两个方向转折展开,纵向切成三个部分,形成三股较为平均的力量。西边是开放办公,东面是总监办公室;两个区域中间夹着一个共享区域。
共享区域作为一个中间的层次,来实现空间关系的多义性。办公室各空间的组成每一个浅空间都能切换成一个独立的功能,形成会议、娱乐、聚会 等多样的独立空间。而这些本可以独立使用的空间,又可分别相互组合。形成更自由的布局平面,且通过隔断的开合,使每一新形成的空间拥有完全不同的城市视野。会议室与其他空间之间的灵活空间组合 会议室空间中的局部细节共享区域既承担着会议和会客的功能,同时也是娱乐和聚会的场所。设计通过不同区域可开合隔断来转换空间的不同层次,并根据需要来调和着两边办公与会议会客空间面积上的不同比例。共享空间与其他空间之间的灵活空间组合完全关闭滑动隔断后的共享空间可作为独立的会客空间使用完全打开滑动隔断后的共享空间成为两边空间与城市空间相互交错的暧昧空间从共享空间看过去打开门的总监办公室可相互独立的每一个浅空间又是彼此相通的整体,与窗外的城市空间结合,形成多重深远的空间视觉关系。而通过活动隔断的分隔,每一个浅空间事实上在这时又只能看到空间其中某一个片段,暗示着人们对不同位置的同时感知。总监办公室一角与窗外远处的广州CBD珠江新城总监办公室办公桌细节加减智库设计事务所新办公室空间的设计希望达到现象和物理透明性的统一,使得空间从明确的限定中解放出来,获得真正意义上的自由与开放。在多重、多变的空间之中,与城市、与人展开多样的对话;这也正是加减智库中“+-”一贯秉持着的理念之一:这是一个非恒定、非单一的世界,加与减之间,才可形成丰富的多样性。开放办公区通过不同的空间组合与窗外的城市发生对话开放办公区局部
项目信息
项目名称:加减智库设计事务所新办公室
设计公司:加减智库设计事务所
主持建筑师:胡彦,赵炜昊,曾喆
设计团队:林冕仕、林泳君、杜绍贤
项目摄影:曾喆
建筑面积:280m²
客服
消息
收藏
下载
最近



































