查看完整案例

收藏

下载
“宠物友好”这一概念的兴起,是社会对伴侣动物态度的深刻转变。它并非由某个单一时间点触发,而是一个伴随社会发展而逐渐演进的过程。“宠物友好”的核心是“双向友好”。它不单只是允许宠物进入,更是在接纳宠物进入的同时,通过合理的空间设计、服务与规则,保障宠物、主人、其他顾客乃至商家等多方的舒适与安全。
The rise of the “pet-friendly” concept reflects a profound shift in society’s attitude toward companion animals. It was not triggered by a single point in time, but has evolved gradually alongside social development. At the heart of “pet-friendly” lies the principle of “two-way consideration.” It goes beyond merely allowing pets to enter a space, emphasizing that while pets are welcomed, reasonable spatial design, services, and guidelines are implemented to ensure the comfort and safety of pets, their owners, other customers, and businesses alike.
▼项目概览,Project overview © 阿盛
TWO TAILMATES小狗客厅将宠物产品零售、宠物鲜食及宠物洗护三种业态组合。这种组合天然地创造了一个爱犬与爱犬间,主人与主人间的社交生活平台。YOUNG团队需要在170㎡的空间内合理的梳理三种业态之间的关系,同时丰富室内的层次。
The TWO TAILMATES “Puppy Living Room” integrates three services under one roof: pet product retail, fresh pet food, and pet grooming. This combination organically fosters a social platform for dogs to interact with other dogs and for owners to connect with fellow owners. The YOUNG team faced the challenge of logically arranging the relationship between these three services within a 170㎡ space while also enriching the interior’s sense of depth and layered experience.
▼丰富的室内层次,Rich interior layers © 阿盛
项目场地270°视觉开敞。YOUNG团队希望可以保持室内的通透性,将后厨及咖啡吧台放置在室内西南拐角处,同时弱化该区域原始立柱的存在感。
▼围绕原始立柱整合多项功能,Integrate multiple functions around the original column © YOUNG本样设计
The project site benefits from a 270-degree unobstructed view. The YOUNG team aimed to preserve the interior’s openness by positioning the back-of-house area and coffee bar in the southwest corner of the space, while simultaneously minimizing the visual presence of the original structural columns in that area.
▼入口区,Entrance area © 阿盛
▼室内的通透性,The transparency of the interior © 阿盛
由西南角进入室内主动线,吧台与斜躺卡座之间的滑门将室内外分隔开,保证主人可放心让爱犬在室内自由活动。动线靠墙一侧满挂货架。由于业主会对零售产品进行换季调整,货架并未采用传统固定式层板或挂杆,所有的层板及挂杆均可随换季而轻松地调整高度及挂杆密度,保证了零售经营策略的灵活性。
▼滑门,The sliding door © YOUNG本样设计
The primary circulation path enters the interior from the southwest corner. A sliding door between the bar and the reclining booth separates the indoor and outdoor areas, ensuring owners can feel at ease allowing their dogs to move freely inside. Along the wall adjacent to the circulation path, full-height shelving is installed. Since the owner plans to adjust the retail merchandise seasonally, the shelving does not use traditional fixed shelves or rods. All shelves and rods can be easily adjusted in height and rod density according to seasonal changes, ensuring flexibility in the retail operational strategy.
▼满挂货架,The full-height shelving © 阿盛
▼灵活的零售经营,Flexible retail operation © 阿盛
西北向商场通道人流量较少,宠物洗护及仓库区域被放置于此,一方面使宠物洗护透明化,另一方面新建的洗护间与室内的共墙可解决因原始户型实墙少而产生的靠墙货架数量不饱和的问题。共墙处的货架上,部分层板被显示屏替代,当爱犬在美容洗护时,主人可通过显示屏观看。
The northwest-facing mall passage has relatively low foot traffic, so the pet grooming area and storage room are positioned here. This placement serves two purposes: it makes the grooming process visually transparent, and the newly constructed grooming room’s shared wall with the interior helps address the issue of insufficient wall space for shelving caused by the original layout’s limited solid walls. On the shelving along this shared wall, some sections of shelves are replaced with display screens, allowing owners to observe their pets during the grooming process.
▼天花板设计细部,The transparency of the interior © 阿盛
项目室内层高呈现阶梯状,局部可达7.2m,在洗护空间上方YOUNG团队规划了二层景观,构建起室内高低及景观层次。无论从哪个方向看向室内,都是一个完整且丰富的背景墙面。
The interior ceiling height of the project is stepped, with sections reaching up to 7.2 meters. Above the grooming area, the YOUNG team planned a second-level landscape feature, establishing vertical variation and enhancing the spatial layers within the interior. From any viewing angle, this creates a cohesive and visually rich backdrop wall.
▼室内的阶梯高差,The height difference of the steps indoors © 阿盛
围绕室内中心立柱,YOUNG团队建立起核心筒。筒内区域可供主人为爱犬举办派对,或是为门店部分经营活动提供私密场地。室内的动线围绕核心筒展开,非零售区域整体抬高。这个高差使爱犬在抬高区而主人在非抬高区域时,视线高度会比以往更接近。高低区域组成的洄游动线为爱犬们提供了更具趣味的自由奔跑空间。
Centered around the central column in the interior, the YOUNG team established a core cylinder. The space within this cylinder provides an area where owners can host parties for their pets or offers a semi-private venue for certain store activities. The circulation path within the interior unfolds around this core cylinder, with the non-retail areas raised overall. This elevation difference brings the eye levels of pets on the raised area and their owners on the lower area closer than usual. The looped circulation formed by the different levels creates a more engaging and free-running space for the pets.
▼核心筒,The central column © 阿盛
▼核心筒细部,The central column details © 阿盛
核心筒墙面开放了若干洞口,一定程度上保证了筒内的通透性。洞口高度基本规避了筒内外人员之间的直视,但当宠物在抬高区域活动时,可通过部分洞口与筒内宠物进行有趣的互动。
▼核心筒墙面,The core cylinder wall © 阿盛
▼核心筒内部,Inside the core tube © 阿盛
爱犬在抬高区域活动时,可通过原始立柱旁的饮水设备进行补给,主人也可以在此处为爱犬更换纸尿裤。YOUNG团队充分利用原始立柱与原始玻璃隔断之间的异形空间,又对共享充电宝、门店的水晶卷帘及消防栓进行整合。
When pets are active on the raised platform, they can hydrate using the drinking facility installed beside the original structural column, while owners can utilize this area to change their pets’ diapers. The YOUNG team maximized the use of the irregular space between the original column and the existing glass partition, effectively integrating a shared charging station, the store’s crystal roll-up gate, and a fire hydrant into the design.
▼核心筒的视觉通透性,The visual transparency of the core tube © 阿盛
门店东北向正对商业体的下沉式广场,该区域人流量较大。该朝向的抬高区内,YOUNG团队选择活动式家具,且采用不锈钢与玻璃结合的栏杆,保证室内外视野的互通。不仅只是对外展示丰富的经营业态,也是显示对⼈宠⽣活⽅式一体化的探索。
The store faces a sunken plaza to the northeast of the commercial complex, an area with high foot traffic. Within the raised platform on this side, the YOUNG team opted for movable furniture and railings combining stainless steel with glass to maintain visual connectivity between the interior and exterior. This approach not only showcases the diverse range of services offered but also demonstrates an exploration into the integration of human and pet lifestyles.
▼内外视野的互通,Visual connectivity between the interior and exterior © 阿盛
▼玻璃扶手细部,Details of the glass handrail © 阿盛
▼宠物纸尿裤架,Pet diaper holder © 阿盛
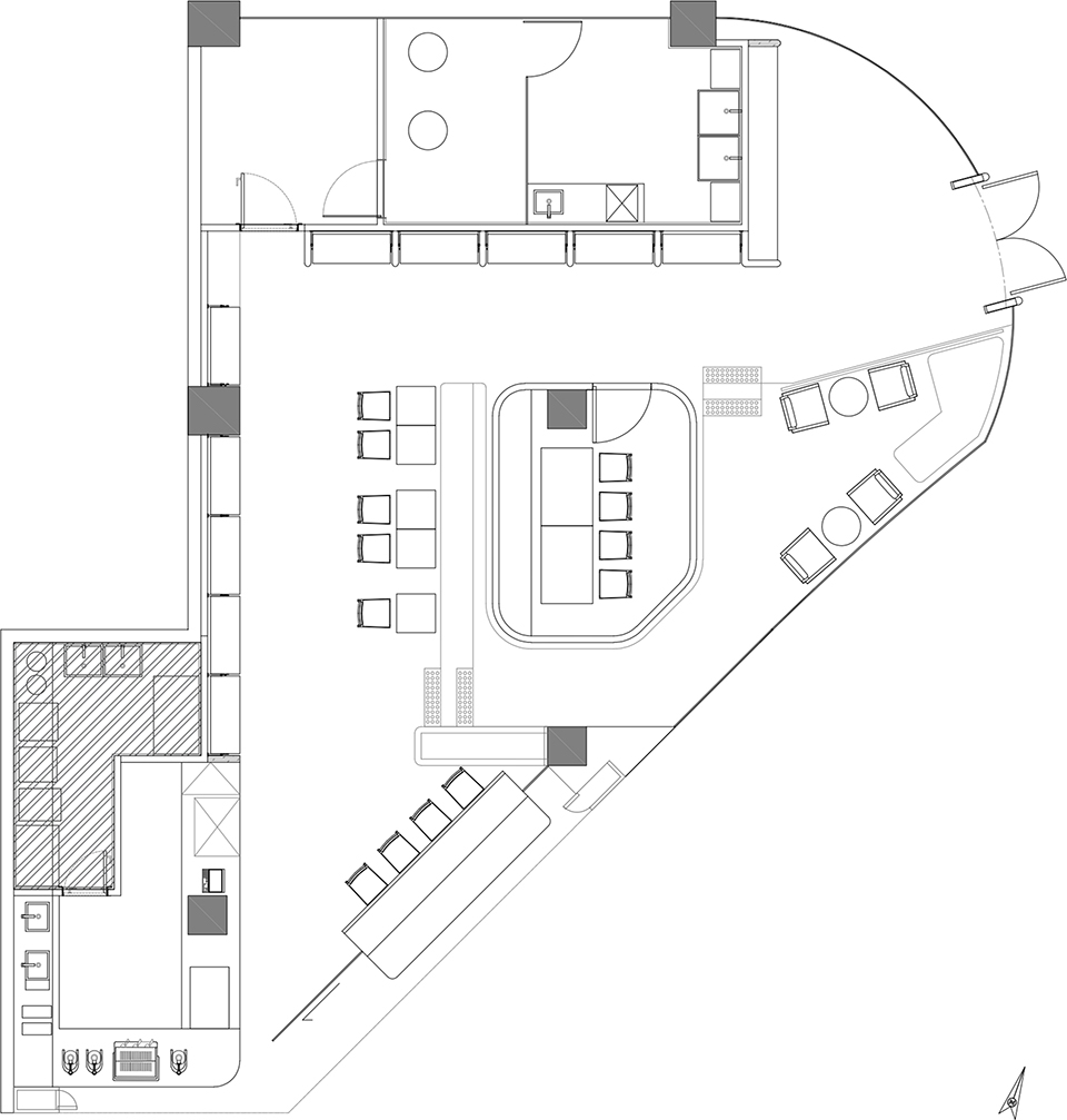
▼平面图,Floor plan © YOUNG本样设计
▼剖面图,Section © YOUNG本样设计
项目名称:TWO TAILMATES小狗客厅
项目类型:商业空间
完成年份:2025.8
设计机构:本样设计
主持设计:王旌宇
设计团队:刘明成 杨鹏
项目地址:湖北·武汉
建筑面积:170㎡
空间摄影:阿盛
合作方:策点装饰 莳光域境
客户:TWO TAILMATES小狗客厅
材料:不锈钢 艺术涂料 水磨石
客服
消息
收藏
下载
最近


























