查看完整案例

收藏

下载

翻译
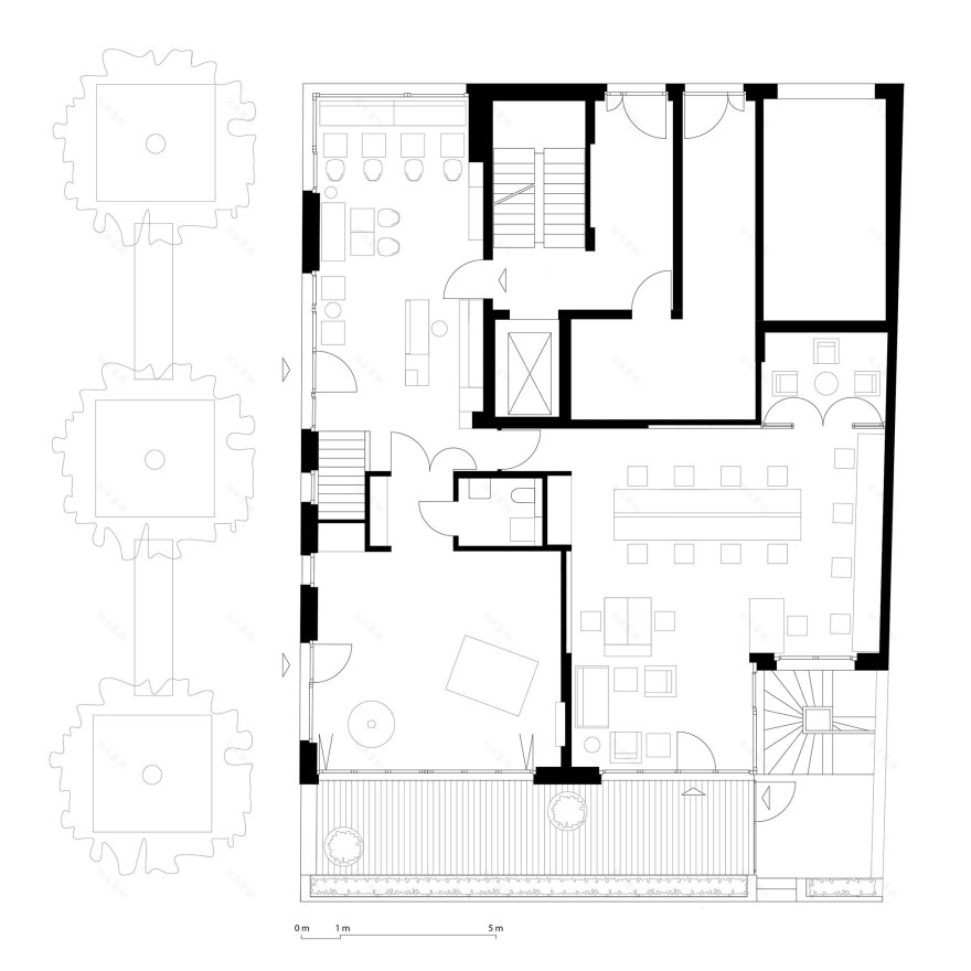
The ground floor of a residential building in the center of Berlin has been transformed into a creative co-working space, that offers not only workplaces, but rooms for children and families.We have realized a functional solution for this diverse audience who wants to work, play and have fun under one roof. The 215 m² space was spatially and acoustically divided into three main functional areas – working, a children’s room and a public area with a café.This layout was chosen to enable working in a space that is not only as comfyas your home but also as effective as an office.
The public area with a café invites to networking and chatting. Visitorscan get information and drinks at the reception-desk.For more flexibility the deskcan be moved on rolls. An additional self-service kitchenette and sanitary facilities are placed in the basement, which can be reached through a connecting staircase placed inside the public area. The spacious children’s room can also be transformed into a space for events and courses. It can be unified or separated from the public area with a large soundproof doublewing door.The children’s cloakroom can also be used as a retreat for nursing mothers. The working space is divided into several well-equipped areas with different types of seats, lighting and furniture for different working styles (single or team). A meeting room is placed next to the working space using a glass partition. The build in furniture from white varnished wood was designed as flexible as possible to serve the many usage scenarios. The color spectrum of the company logo and the logo itself are repeated in the walls and the furniture. Though being situated near to a children’s room, the acoustic concept for this space enables a quiet working atmosphere. To improve acoustics, the rooms were acoustically decoupled and finished with wooden absorbers mounted on the ceiling or on the walls. The main working space hasa direct access to the woodenterrace. The coworkers can enter the patio and work outside.
The planning was done in a cooperation with architect Nataliya Sukhova from Transstruktura and Studio Singer, supported by landscape architects Christina Kauz and Anna Adasinskaya for the outdoor terrace.
客服
消息
收藏
下载
最近

















