查看完整案例

收藏

下载
北布鲁克林(North of Brooklyn)的第八家分店落址于多伦多的伊托比科(Etobicoke)社区,占据了一处两层空间,将充满活力的外卖氛围与精致的酒吧体验完美融合。
The 8th location of North of Brooklyn finds its home in Toronto’s Etobicoke neighborhood, occupying a two-story space that seamlessly marries vibrant takeout energy with a refined bar experience. The ground floor houses the North of Brooklyn kitchen and takeout counter, while the upper level transforms into the Low Rise bar and dining room.
▼项目概览,Overall view © David Dworkind
▼入口处,Entrance © David Dworkind
▼入口点单处,Order space © David Dworkind
▼店铺周边,In-store merchandise © David Dworkind
▼点单处近景,Close view of order space © David Dworkind
底层设有北布鲁克林厨房及外卖柜台,而上层则是Low Rise酒吧与餐厅。踏入大灯箱雨篷下,雨篷印有North of Brooklyn的标志,访客仿佛置身于类似《星球大战》片头字幕的电影场景。这组灯箱延伸至室内,形成外卖区的天花板,整个区域被DTILE模压瓷砖包裹。这些定制瓷砖从墙面延伸至天花板形成连续包覆,甚至向外折叠,创造出用于陈列周边商品的实用挂钩,模糊了表面与装置之间的界限。
Entering beneath a large lightbox awning emblazoned with the North of Brooklyn logo, visitors are immersed in a cinematic moment reminiscent of the Star Wars title crawl. This lightbox continues inside, forming the ceiling of the takeout area, which is fully enveloped in DTILE molded tiles. These custom tiles extend from wall to ceiling in a continuous wrap, even folding outward to create functional hooks for merch display, blurring the line between surface and fixture.
▼吧台全景,Bar area © David Dworkind
▼吧台近景,Bar area close view © David Dworkind
▼吧台座椅细部,Bar seats details © David Dworkind
上层的Low Rise酒吧与餐厅借鉴了怀旧意大利设计,并在现代感上重新演绎。这个40座空间以一座大型吧台为中心,吧台覆以翻新大理石马赛克,并铺设锌制台面,随着时间推移将呈现丰富的自然包浆。上方悬挂由In Common With设计的槽纹吊灯,投射出温暖光线,为亲密的用餐体验定下基调。
Upstairs, the Low Rise bar and dining room draw on nostalgic Italian design, reimagined with a contemporary edge. The 40-seat space is anchored by a monumental bar, clad in a mosaic of tumbled marble and topped with a zinc countertop that will become richly patinated with time. Above, a fluted pendant light by In Common With casts a warm glow, setting the tone for an intimate dining experience.
▼客座区近景,Guest seating area close view © David Dworkind
▼怀旧的风格,Nostalgic style © David Dworkind
▼客座区座椅近景,Close view of guest seating area © David Dworkind
为了最大化自然采光,侧立面开设了新窗,与从墙体悬挑出的胡桃木餐桌对应,完美嵌入窗台凹槽中。这些餐桌配以受Joe Colombo标志性Tube Chair启发的绿色皮质长椅,支撑于折叠钢制桌脚上,在色彩、材质与造型之间形成微妙互动。
To maximize natural light, new windows were cut into the side façade, aligning with walnut dining tables that cantilever from the walls, nestled perfectly within the window niches. These tables, paired with green leather banquettes inspired by Joe Colombo’s iconic Tube Chair, rest on folded steel feet, creating a subtle interplay of color, material, and form.
▼酒柜与灯具,Bar cabinet and lighting fixtures © David Dworkind
▼卫生间,Toilet © David Dworkind
针对低层高问题,机电系统集中布置于周边,中央形成抬高的天花板。该圆角矩形天花板搭配灯槽照明,凸显爆米花纹理天花板的质感,与高光漆面下方吊顶形成鲜明对比,进一步增强了空间的层次与动态感。
To address the low ceiling heights, the mechanical systems are concentrated around the perimeter, allowing for a raised ceiling in the center. This rounded rectangle is accented by a cove light that highlights the texture of the popcorn ceiling, creating a striking contrast against the high-gloss painted lower bulkhead, further enhancing the room’s spatial dynamics.
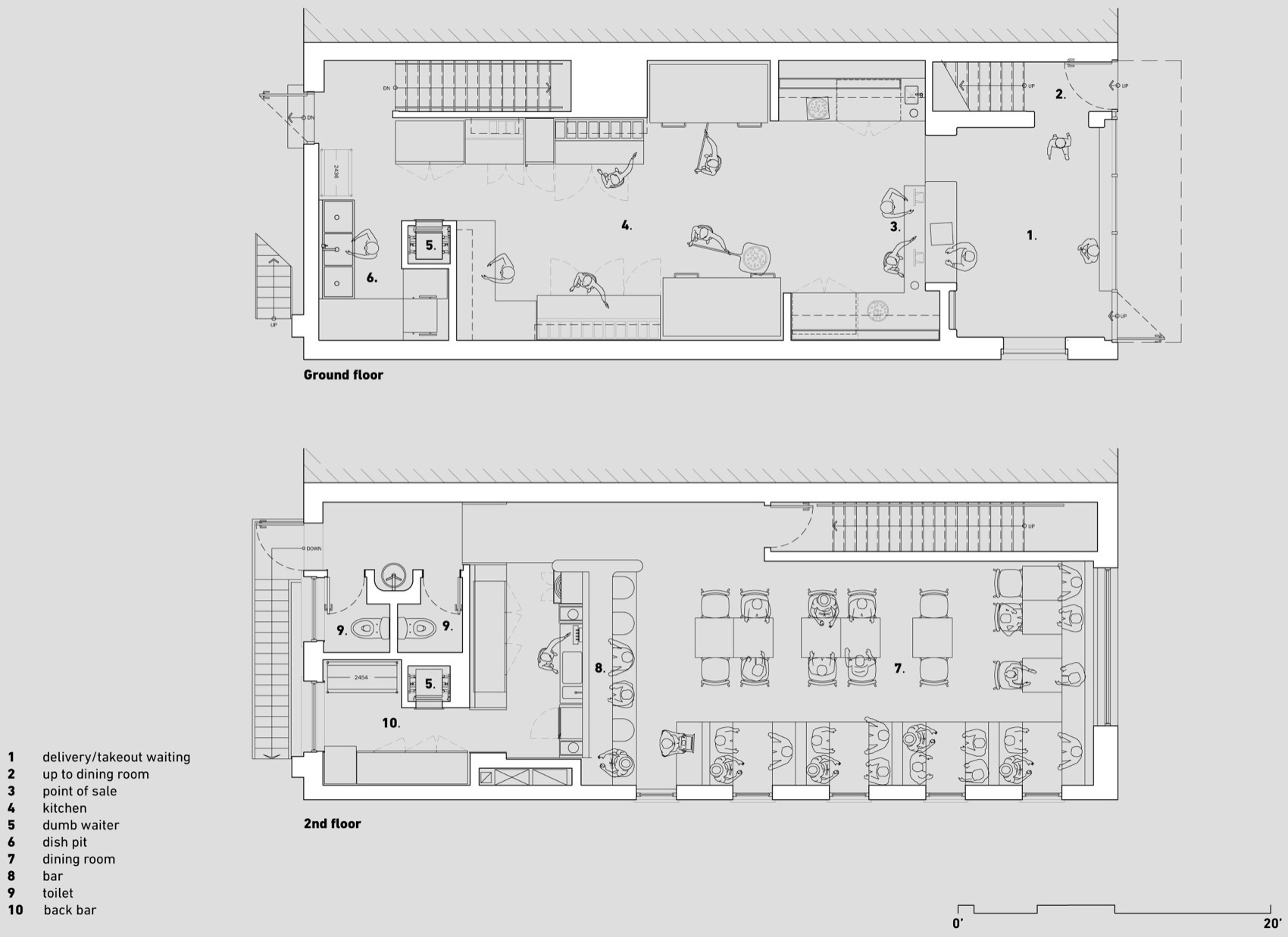
▼平面图,floor plan © MRDK
ARCHITECT: MRDK
WEBSITE :
INSTAGRAM :
PROJECT ADRESS: 1180 The Queensway, Etobicoke, ON M8Z 1R5
AREA: 2550 square feet
DATE: April 2025
ARCHITECT OF RECORD: Barry Goldman Architect
PHOTOGRAPHY CREDIT: David Dworkind
CONSTRUCTION CREDIT: Atlas Worx
MATERIALS:
DTILE, Wausau tile, Arta Ceramics, CTL leather, 3M film, Lighting: In Common With, Marset Arancia,
Custom stools – Jussaume, Chairs – Suite 22: Thon, Sink: Agape, Faucet: Dyson, Blinds: Hunter
Douglas.
客服
消息
收藏
下载
最近



























