查看完整案例

收藏

下载

翻译
Architects:CSWADI,WATG
Area:36217m²
Year:2018
Photographs:404NF STUDIO
Category:Hotels
Cswadi Chief Designers:Zheng Yong, Li Feng
Cswadi Design Team:Zhang Jihai, Yang Ming, Zhang Yujia
Cswadi Structural Design:Wei Zhong, Liao Xiaoxiong, Lei Yun, Wang Fei
Cswadi Plumbing Design:Wang Jianjun, Jiang Long, Li Jia, Wang Tiezhu
Cswadi Hvac Design:Ni Xianmao, Lin Jiajia, Wen Ling
Cswadi Building Electrical Design:Wang Sujun, Liao Honggen, Hou He, Ge Yuandong
Landscape Architecture:AECOM CHINA
Interior Design:JAYA & ASSOCIATES
City:Ngawa Tibetan and Qiang Autonomous Prefecture
Country:China
Text description provided by the architects. Rissai Valley, a Ritz-Carlton Reserve, sits in Zhongcha Valley, Zhangzha Town, Jiuzhaigou—Marriott International's first "Reserve" resort in China and the sixth globally. "Rissai" means "stockade village" in Tibetan, representing a valley with millennia of culture.
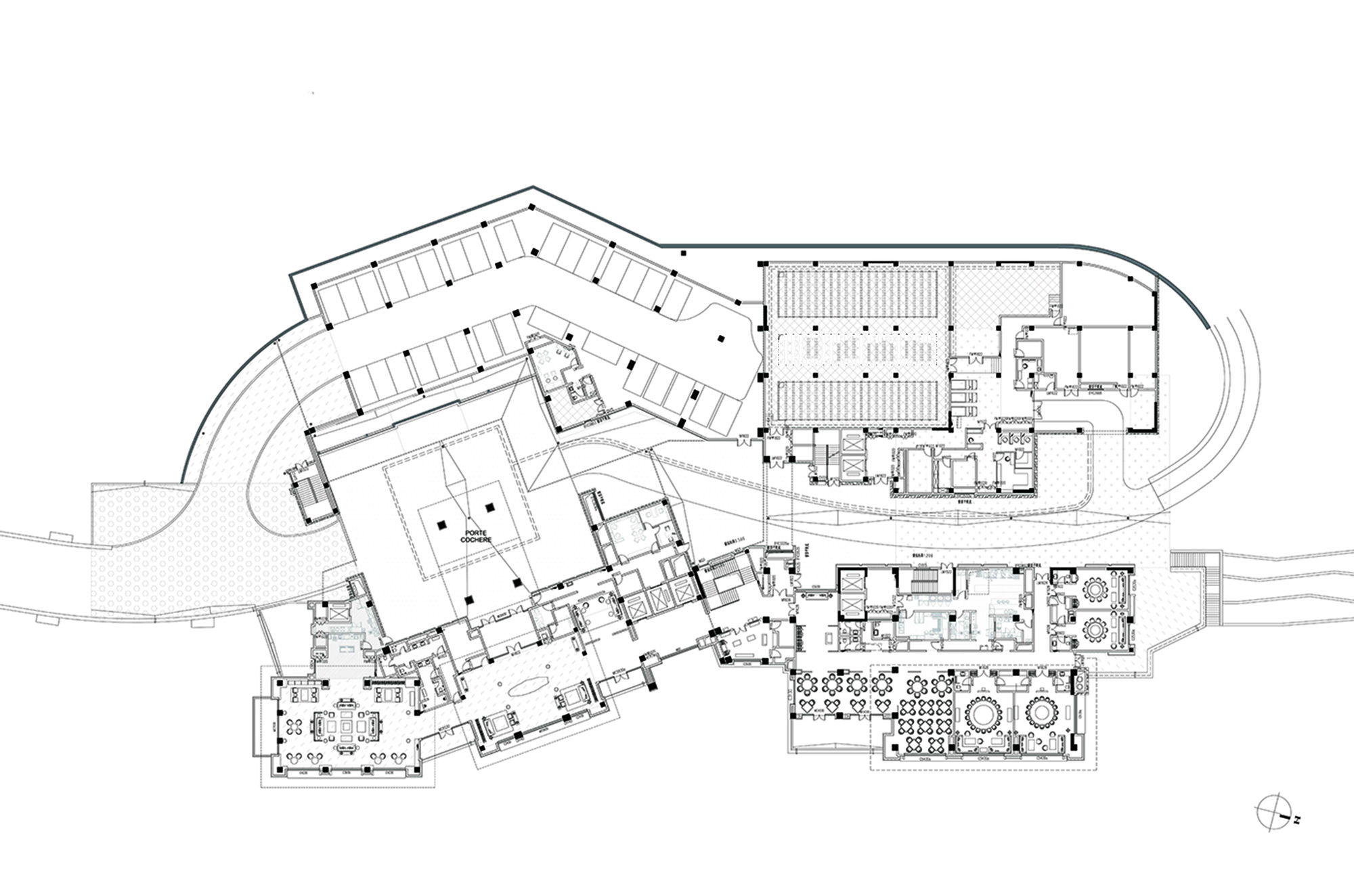
Guests access the hotel via a winding mountain road: after passing a village gate to reach public areas, they take a sightseeing vehicle with a butler to their rooms. Rooted in Tibetan-Qiang culture and Sichuan-style architecture, the hotel lies on a west-high-east-low hillside (2,400m max elevation, 89m vertical difference) across from the authentic "Bori'e Village". Its 166,088㎡ site (36,217㎡ gross floor area) holds 87 luxury villas, public areas, and a SPA. Inspired by scattered Tibetan villages, its layout follows contour lines, with central public zones at the core, blending into the landscape for a "luxury seclusion" feel.
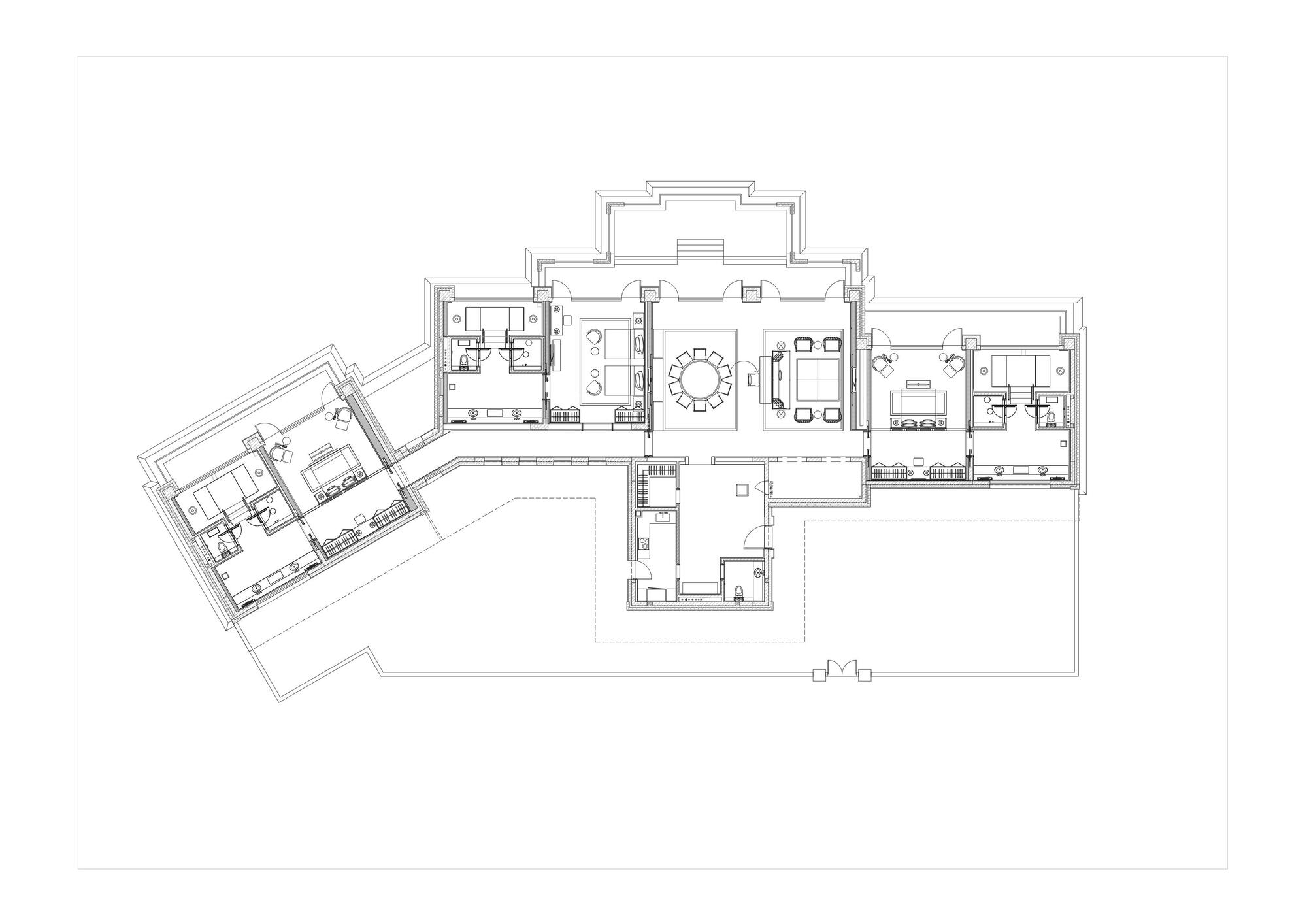
Buildings adopt Tibetan stilted-house forms: guest rooms have 1 above-ground living floor (for views) and 1 stilted service floor; public areas have 2 above-ground floors and 3 stilted floors. Entrances match terrain, ensuring separate guest/service circulation. Each guest building has an east-facing terrace, with 7m between rows for unobstructed views of snow-capped mountains and ancient villages. Courtyards (drop-off "front courtyards", guestroom "small courtyards") transition from open to private.
Facades draw on Tibetan-Qiang watchtowers and plank houses, with three-section structures, gable-hip roofs, and rammed earth-style walls; details like "Bianma Wall" are reinterpreted. Interiors highlight wooden structures, replicate Tibetan fire pits, use auspicious patterns for space division, and display local old items, creating a "sense of homecoming".
Eco-friendly designs include terrain-based wind/sun protection, optimized window-to-wall ratios, and local materials (rock slab tiles, anti-corrosive wood) paired with modern tech. Frame-shear structures and dual power supplies address high-altitude challenges. Following "harmony between humanity and nature", the hotel merges with the landscape, offering guests authentic Tibetan-Qiang culture.
Project gallery
客服
消息
收藏
下载
最近


































