查看完整案例

收藏

下载
布局与柔美,该原始结构负一楼空间为5.1米的单层空间,空间上层单一,采光局限性很大,在对业主职业爱好、家庭结构及生活习惯的充分了解下,空间上做了梳理,在一楼庭院下挖一个空间,作为女业主日常工作室,通过进退关系,空间上的取舍,增加采光和通风,也解决了女业主在工作时能分别通过负二楼,负一楼,一楼与二个女儿及家人的日常互动关系。
通风与循环,特别设计了高效隐蔽的排风系统,可以使烘焙时产生的热气与气味能迅速被排出,同时通过对流交错空间的布局,引导自然风在室内自由穿行,始终保持室内空气的流动和清新。
空间呼吸感,采用横向与纵向的开放式布局,让负二负一和一楼连贯互通,形成通透的整体,这不仅方便了烘焙时与家人朋友的互动,更让空气与光线得以自由流动,使家成为一个能自由“呼吸”的有机体。
家是当代住所的原始“精神洞穴”,所以它有着保持安全和维持神秘的义务。
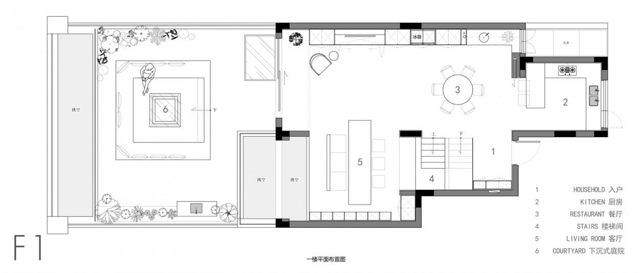
回忆起创作的起点,与这对夫妻最初认识的时候。这栋四层的下叠墅,分为地下两层地上两层。由于他们的父母时而会来,想把一楼的主要空间作为客卧,方便老人居住。但原始布局中的客卧,占据在整个空间中段的主体,作为居住处会有诸多不便。所有的生活噪音都会汇聚在这里,卧室在这,其实并不适合。
它像是这个主线故事下一条隐藏的支线任务。巨大的仿佛月亮的灯球,悬挂在头顶,穿越过狭窄的走廊。抬头是略微突起的异型空间,多么奇异的交互。
负一层空间有着细腻的层次划分,下沉式的烘焙工作室和客卧相对。中间是光线洒落的天井和蓬勃生长的植物,下沉式的设计往往像是一种宣言。宣告进入后就要开启另一种状态,宣告一个新故事的开启。
去风格化的客餐厅设计,多元单品之间的微妙联系。进门就能感受到木作所框的生活场景,有序的功能和无序的舒适在此间缓慢诞生。
空间设计的最终命题,人和空间,自然之间的互动,会回归到关于人类情感的安放,希望它不仅是追寻原始依赖的安心居所,更是通往自由,生机勃勃的精神世界。
项目地址 | 安徽合肥
设计面积 | 400平
设计机构 | 安徽观正建筑设计有限公司
设计总监 | 方日新
图纸深化 | 曾海燕、朱威
文案撰写 | 青山邈
施工单位 | 博拓精工
落地配套 | 视界之眼、拾光灯光设计、感物地板、问止木作、浩克机电、DANILO 艺术涂料、韦东地材、埃瑞德风口、antoniolupi卫浴
客服
消息
收藏
下载
最近





















































