查看完整案例

收藏

下载
项目名称: 流河十笥-河流容器仪式纪念的协奏
位置:安徽
设计单位:厸建筑
图片数量:22张
河畔林间、浅流之中,散置素木小龛十座,高低错落,或高及人平视处,或矮至近水畔:或高与银杏低枝齐,立林间青石侧;或矮在及膝浅处,半浸河心滩头。木取旧枝,经霜雨浸、烈日晒,色成深黑,纹间多细碎裂纹 ——木断茬露淡金,木断茬带暗褐,底形制亦各有别:树下者,或作正方,高及平视,黑木留雨斑;或镂十字纹,抬手可及,纹隙积银杏瓣。河中者,或削三角为基,近水半高,木身裹薄泥;或裁菱形,及膝矮立,纹隙积细沙。余下数座,或方或斜,树下在及肩至平视间,河中在及膝至腰际间,皆带风露水痕。
▼装置概览 © 林立峰
每龛正面浅刻符记,皆取林间叶脉,因木种、形制各有不同:正方龛符,银杏脉中宽,刻痕浅白,高及平视;十字龛符,侧脉微曲,刻纹积雨痕、沾碎瓣,抬手可及;三角龛符,末点稍圆,点痕水浸略暗,青檀制更沉郁,符记隐水苔,近水半高;菱形龛符,侧脉分岔,刻痕嵌细沙,银杏制沙映淡金,符记近水,及膝矮立。此等符记无深意,唯记各龛生于斯,伴林风、逐河波耳。
▼水中倒影 © 林立峰
▼引人驻足玩耍© 林立峰
若有来人,多依龛行小礼:遇树下平视正方银杏龛,捡河滩圆石置内 —— 石承河潮,白与黑木、淡金断茬相映;遇树下可及十字青檀龛,取青檀新叶夹竹缝 —— 叶带春阳,衬黑木金瓣;遇河中半高三角龛,掬河心水滴苔痕 —— 水漫苔衣,轻触木边;遇河中及膝菱形银杏龛,采短河草插泥缝 —— 草带晨露,晃于裹泥木旁。
▼模型 © 厸建筑设计事务所
▼木纹印水势 © 林立峰
▼引人驻足 © 林立峰
这十座小龛,原非记大事。或记与故人听银杏簌簌,雨斑似旧痕,或记稚子踮脚拾瓣,瓣屑藏笑语, 或记无端心绪,俯见木纹印水势,指尖触苔润;或记蹲看鱼群过,沙裹涟漪,余下各龛,亦藏寻常念想,黑木上雨晒水痕,高低间皆来人驻足痕。
▼轴测图 © 厸建筑设计事务所
▼水漫苔衣,轻触木边 © 林立峰
▼草带晨露,晃于木旁© 林立峰
物无定形,意自绵长。木是旧木,色成深黑,纹间带风露与流水之痕,断茬各显其质;符是浅符,刻于黑木,或在目光所及处、或近指尖轻触间、或隐水苔旁,各随其高度。形制虽分正方、十字、三角、菱形之属,位置有树下河中之别,高低亦在平视至及膝间错落,仪式与纪念皆淡。正如河水流而不驻,银杏叶黄而复绿,青檀枝枯而复荣,十座黑木小龛或立或浸于林畔河畔,不浓不烈,却与风露、流水、银杏青檀,共成一段。
▼分析图纸© 厸建筑设计事务所
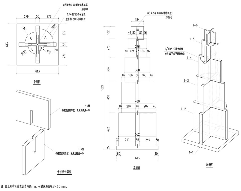
▼细部图纸 © 厸建筑设计事务所
地点:安徽类型:景观建筑装置设计方:厸建筑设计事务所设计与绘图: 林立峰 柴宗瑞 戴嘉业现场建造:付振(管理) 徐凡渝 祁艺 高孟欣 吴悠然 叶思彤 黎强蕊 赖迅 徐艺嘉 宫婉盈 王天祺 岑象羿 孙祥贵 戈煜辰 周子崴 黄炜滔 王子骏 徐桢苏 蓝翎 但佳芮 罗宇杰 沈国强 包时进 陈楷 侯宇彤等现场运营:海杰,小烨合作方:山里没有海, RAC国际艺术教育 ,厸建筑,泾县叠影方舟文旅,境道原竹面积:0.5平方每个数量:10个高度:0.5m-3m完成时间:2025/08/01材料: 原木, 调制油漆
客服
消息
收藏
下载
最近




















