查看完整案例

收藏

下载
A FEW GOOD KIDS 扎根街头精神,将年轻一代的生活方式与态度提炼为独具辨识度的设计语言。游走于音乐与潮流的边界,释放“好孩子”的个性回声。
“其实我们都是好孩子,玩音乐,穿夸张的潮牌,也不代表是坏孩子。”
——这也是AFGK创始人马思唯对品牌的表达
AFGK (A FEW GOOD KIDS) is rooted in street culture, distilling the lifestyle and attitude of a new generation into a design language with unmistakable identity. It moves fluidly between music and fashion, releasing the resonant echo of the “good kid.” “We are all good kids at heart.Playing music or wearing bold streetwear doesn’t make you a bad one.” — Ma Siwei, Co-founder of AFGK
Echo
回声
// 以水洗石与金属板展开材质对位,颗粒肌理与金属光泽在光影中回响,弧形发光灯箱切割立面,细长金属拉杆贯穿其间,在结构逻辑中保持精致比例,兼具连接与装饰功能。
Washed stone and metal panels, establish a dialogue of materials, A curved illuminated lightbox slices through the facade, interlaced with slender metal rods that traverse its span. Within the structural logic, refined proportions are preserved—serving both as connective elements and as ornamental details.
黑色艺术涂料统一整体基调,让粗粝与锋利在此叠合。“A FEW GOOD KIDS”标识融入立面,街头自由态度与未来先锋主义在此回响。
A black artistic coating defines the overarching tone, where rawness converges with sharp precision. A FEW GOOD KIDS emblem is embedded into the facade, echoing street freedom and futuristic avant-garde spirit.
把零售空间拆解、打散,再以街头的方式重新拼接——像嘻哈节奏嵌入细腻质感的肌理,让每一处都暗藏爆裂的拍点。
The retail space is deconstructed and fragmented, then reassembled with a street-inspired approach delicate textures interlaced with the rhythm of hip-hop, where every corner conceals an explosive beat.
大面积白光从吊顶均匀铺展,透明人体装置悬浮于蓝色地毯之上,水泥漆质感与钢架结构的边界更为清晰。
A vast expanse of white light spreads evenly from the ceiling, while a transparent human-shaped installation floats above the blue carpet, defining the boundaries between the cement-paint finish and the steel frame structure with greater clarity.
白色柜体内嵌黑色音响元素,无意间强化了“A FEW GOOD KIDS”的文化标识,成为未来感的精神坐标。
Black audio elements are embedded within the white cabinets, reinforcing the cultural identity of A FEW GOOD KIDS, becoming a spiritual marker of futurism.
金属展示柜与板材的光滑质感,叠加一层锋利与秩序。它既是商品承载体,又如漂浮于科幻空间的节点,嘻哈文化的自由态度转化为空间张力,在每个角落生成节奏化的视觉回声。
Metal display cabinets and smooth panels, add an extra layer of sharpness and order. It serves both as a platform for merchandise, and as a node floating within a sci-fi space. The free-spirited attitude of hip-hop culture is translated into spatial tension, creating rhythmic visual echoes in every corner.
Floating point 浮点
// 材质在光影间折射微妙变化,让阶梯空间呈现虚实交错的沉浸感。钢架延伸至栏杆与吊顶,将阶梯区域转化为引导视觉的通道。
Materials refract subtle changes between light and shadow, giving the staircase area immersive solid-void interplay. Steel frames extend into the railings and ceiling, transforming the staircase into a visually guided pathway.
二楼的圆形眼球装置内嵌LED屏,犹如注视未来的感知之眼。
An LED screen is embedded within the circular eyeball installation on the second floor, resembling a perceptive eye gazing into the future.
两侧墙面嵌入的圆点元素精准而对称,既是科技的符号,也是秩序的暗语,未来叙事悄然延展。
Circular elements in side walls are precise and symmetrical, symbolizing technology and subtle order cues, quietly extending the narrative of the future.
Frequency domain
频域
//
遵循感知之眼的视角,二楼空间展现对称式秩序,陈列架沿通道排布,形成明确的视觉节奏,引导人流自然向深处的核心节点汇聚。
The second-floor space follows the perceptive eye, with display racks arranged symmetrically along the walkway, guiding people naturally toward the central core.
牛仔蓝地毯铺展全域,与顶部深色调形成冷暖、明暗的微妙对比,赋予空间沉稳的底色,又不失生动与活力。
A denim-blue carpet covers the floor, contrasting subtly with the dark ceiling, giving the space a stable yet lively base.
矩阵式顶灯构成光的网格,均匀而精准地投射照明,强化空间的科技感与未来主义氛围,让展示成为空间语言的一部分。
Matrix-style ceiling lights form a grid of illumination, casting light evenly and precisely, enhancing the space’s tech and futuristic atmosphere, making the displays an integral part of the spatial language.
牛仔蓝与大理石纹理在空间中形成材质对位,蓝色调注入空间节奏与街头肌理感,构建复古的街头气质的同时,塑造出富有掌控感与探索性的场域。
Denim blue contrasts with marble textures in the space, with the blue tone adding rhythm and a street-textured feel, Create a vintage street atmosphere, while shaping a controlled yet exploratory space.
通道作为空间主轴,两侧陈列区维持对称布局,纵深与秩序在材质肌理与体量构成中自然呈现,如同频率波动般延展视觉感知。
The corridor is the main axis, with symmetrical displays on both sides where depth and order emerge through materials and volumes, extending visual perception like waves.
未来与现实的界面在此被重新切割,嘻哈文化与先锋潮流漂浮其间,每一次步入,都像在频率之间游走,捕捉不可捉摸的瞬间律动。
The boundary between future and reality is redefined here. Hip-hop culture and avant-garde trends float within, so that each step feels like moving between frequencies, capturing fleeting, elusive rhythms.
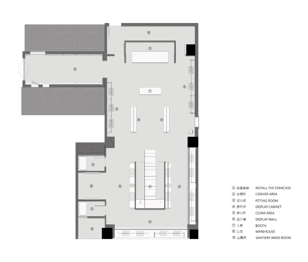
平面图▼
项目名称 | A Few Good Kids
设计方 | E27 Studio
主理人 | E.ko 梁屹
设计团队 | TAOTAO 朱峻甫
项目地址 | 成都COSMO
建筑面积 | 320㎡
摄影版权 | Eason·十聿空间摄影 | e27studio@yeah.net
完成年份 | 2025.08
由主理人梁屹E.Ko于2017年创立,聚集一群充满研发创新精神的新锐设计师。专注于全球空间设计、视觉输出和装置艺术的研发与落地。我们的核心使命是追求空间审美的卓越呈现,不断探索新锐设计,以独特方式表达对艺术的多层次理解,发掘视觉传达的无限可能性。如今,E27 STUDIO在成都和纽约设有两处事务所,为我们提供更广阔的舞台和全球化视野。我们将继续秉持创新精神,致力于更多创意呈现。
客服
消息
收藏
下载
最近










































