查看完整案例

收藏

下载
在海拔三千多米的藏地之上,时间仿佛也放缓了脚步,一座由众人之愿心共同建立的静修之所伫立于静谧的山谷云雾之间,它既守护着过往的沧海桑田,也迎向洗练一新的晨光。
建筑在一处废弃多年的老油坊原址上重建而成,且保留了一堵夯土老墙,以此作为纪念。因地处环境清幽、且靠近寺院,故而在多方捐助下,营造了一处供人静修的精神栖所。建筑依山而建,面朝河谷,除藏族村民之外,鲜有游客。每年七八月是当地气候景色最好的时节,山花烂漫,绿意葱茏,山谷中云雾缭绕,雨后又是晴空万里,天若琉璃……
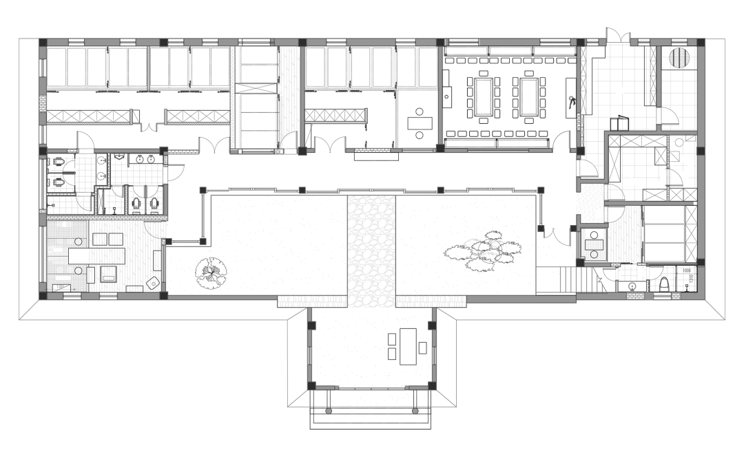
建筑呈三面围合式,分为上下二层,计四百余平方,中间设有一方院落。夯土老墙作为影壁玄关,原有破损的洞口以耐候钢板重塑为小拱门,经锈色处理后与土墙质感相融,并无违和。
入口门厅既是空间过渡,也寓意在此处放下俗务,步入静心修行之境。内院不大,以老墙为界,春冬时节亦可阻挡风沙。院内仅有一棵从当地移栽的野生沙棘树,地面铺以河滩沙石,象征着致心一处,专心静修之意。
穿过老墙边的锈板拱门,空间于石板小路的尽头徐徐展开。为应对高原的风沙与温差,贯通一层的长廊以幕墙封闭,白天蓄热、夜晚保温,起到温室的效果。
一层起居区设有宿舍、餐厅、厨房、卫浴及茶室等功能空间,陈设简朴自然,不做多余装饰,所用材料多为当地收集老旧木料改造而成。其中最具亮点的是位于建筑东北角的茶室,三面开窗的立面制式融入藏式民居元素,围坐其间,窗外山河如画,青藏高原的壮丽之美直抵人心。
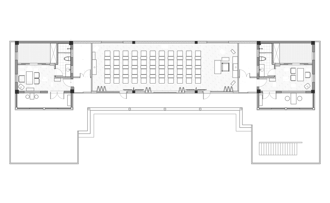
建筑的二层以混凝土框架为基础,屋檐外挑形成走廊,面向山谷视野极佳。除两间客房外,还设有一个多功能的大空间,可以共修研习之用。
整体建筑结合汉地唐式及藏地的传统建筑元素,尽可能就地取材,旨在将当地文化及风貌与现代生活空间的功能性加以结合,在促进本土生活方式更新的同时,为远道而来的静修者提供一方洗涤心灵的净土。正如当地的僧人秋加师傅所说,在这里不需要洗澡,而应该洗涤你的内心与灵魂……
△方案图
项目名称丨洗心院
项目地址丨甘南藏族自治州
项目面积丨400m²
设计时间丨2021年
完工时间丨2025年
设计公司丨陕西自在空间设计咨询有限公司
设计负责丨逯杰、程茹
设计助理丨史瑞静
施工主管丨来俊鹏
项目摄影丨杨磊
自在空间由设计师逯杰、程茹设计师夫妇于2011年创办,团队坚持以生态设计理念为基础,结合传统美学的精髓与人居需求,将“居有屋,处有院,居可满足功用,无院则不展精神”的思想同当代设计相结合,营造集工作、创作、生活、分享为一体的集合性文创空间。
客服
消息
收藏
下载
最近













































