查看完整案例

收藏

下载
克莱蒙特·麦肯纳学院(CMC)的新罗伯特·戴科学中心,完美诠释了多学科融合与互动的设计理念。这座占地1.25万平方米的建筑设计独特,每一层的朝向各不相同,巧妙地引导师生在实验室、教室及校园各处自由流动,激发思想的碰撞。
The new Robert Day Sciences Center at Claremont McKenna College maximizes multidisciplinary integration and interaction: each level of the 135,000-sq-ft building is oriented in a different direction, channeling the flow of people and ideas between the labs, classrooms, and the surrounding campus.
▼鸟瞰,Bird’s eye view© laurianghinitoiu
▼周边环境,Surrounding context© laurianghinitoiu
罗伯特·戴科学中心于2020年启动,服务于1400名学生。该中心是BIG建筑事务所在洛杉矶的首个建成项目,也是CMC罗伯茨校区总体规划中率先竣工的建筑。设计通过一系列建筑延伸中央长廊,并与毗邻的在建体育场相连,旨在打造更加一体化的校园空间。科学中心的合作方包括结构工程公司Saiful Bouquet、总承包商KPRS以及施工管理方IDS房地产集团。▼轴测图,ago© BIG
Commissioned in 2020, the Robert Day Sciences Center serves a community of 1,400 students. The center is BIG’s first built project in Los Angeles, and the first completed building in the BIG-designed masterplan for CMC’s Roberts Campus, which envisions a more unified campus shaped by a series of buildings that extend the central mall and adjacent sports bowl currently under construction. Collaborators on the Sciences Center include Saiful Bouquet as Structural Engineer, KPRS Construction as General Contractor, and IDS Real Estate Group as Construction Manager.
▼外观概览,Exterior view© laurianghinitoiu
在当今这个关乎人类福祉、智慧与地球未来的关键时刻,这座壮丽的建筑彰显并升华了高等教育的革命性愿景。面对机遇与挑战,我们不能仅仅局限于科学领域的单一学科,也不能忽视科学、社会科学与人文科学之间的紧密联系。
罗伯特·戴科学中心与克拉维斯综合科学系紧密融合,将设施与课程有机结合,汇聚多学科的专长,推动以问题为导向的学习、应用伦理学以及在AI时代提升人类智能。BIG设计的旋转书架创造了独特的学习空间,木材元素为社交区域增添了温暖的色调与亲和力。大面积的玻璃打破了空间的隔阂,精致的饰面和壮观的公共艺术作品传递了人文情怀。这座经过精心设计的建筑不仅是克莱蒙特·麦肯纳学院的瑰宝,更是永恒的珍藏。”– Hiram E. Chodosh,克莱蒙特·麦肯纳学院院长
This gorgeous architecture amplifies and elevates a revolutionary vision for higher learning at a critical moment in the well - being of our species, our brains, our planet. We can no longer rely on siloed disciplines within the sciences or between the sciences, social sciences, and the humanities to meet the challenges and opportunities of our time.
The Robert Day Sciences Center and Kravis Department of Integrated Sciences fuse facility and program, with multidisciplinary expertise, problem - based learning, applied ethics, and higher human intelligence in an era of AI. Bjarke’s rotating stacks create opportunities to learn at the intersections. The wood fuels our social warmth. The glass cuts through the barriers. The beautiful finishes and spectacular public art inspire our humanism. This is a carved jewel for Claremont McKenna College. A gem for the ages.” – Hiram E. Chodosh, President, Claremont McKenna College
▼顶视图,Top view© laurianghinitoiu
▼局部顶视图,Partial top view© laurianghinitoiu
罗伯特·戴科学中心位于校园东端,俯瞰着鲍尔迪山的美丽景致,地处第九街与克莱蒙特大道的交汇处。它不仅成为校园的新门户,还巧妙地加强了与其他学术部门的紧密联系。高达4.5米的悬浮天篷气势磅礴,迎接着学生、教授、教职员工和访客的到来,引导人们进入一个充满生机与自然采光的多层中庭。
▼分析图,analysis© BIG
With views of Mount Baldy, the Robert Day Sciences Center is positioned on the eastern edge of campus at the corner of Ninth Street and Claremont Boulevard – creating a new gateway to the school and strategically facilitating strong connections to other academic departments. A dramatic 15-ft hovering canopy welcomes students, professors, staff, and visitors, drawing them into a sky-lit multilevel atrium buzzing with life and movement.
▼街道测视角,Street view© laurianghinitoiu
▼建筑立面,Facade© laurianghinitoiu
▼立面近景,Facade close view© laurianghinitoiu
“罗伯特·戴科学中心将计算机科学、数据科学和生命科学整合在同一环境中。作为克莱蒙特·麦肯纳学院总体规划中首座完工的建筑,它延续了北区长廊的布局,形成了一条锯齿形长廊,成为校园动线的核心枢纽。
我们设想的科学中心由一系列互相平行的建筑体量构成,中央通过公共空间相互连接,沿着长廊的走向展开。每个建筑体量都兼具理性与灵活性,既能容纳计算机实验室,也适用于湿实验室。而它们之间的开放中庭则构成类似“皮拉内西式”的公共空间。在这里,来自不同学科的学生、教职员工和教授汇聚一堂。因此,即使大部分时间待在湿实验室,计算机实验室或教室里,依然会有不少机会与他人互动,打破学科之间的隔阂,激发思想的碰撞与交流。从这个角度来看,罗伯特·戴科学中心更像是一个思想的熔炉,将不同的知识、人物和思想汇聚在一个复杂且多维的学习环境中。”– Bjarke Ingels,BIG创始人兼创意总监
The Robert Day Sciences Center brings together computer science, data science, and life sciences in one integrated environment. As the first completed building of our master plan for Claremont McKenna, it extends the north mall into a zigzag of malls, becoming a distributor of flows for the entire campus.
We imagined the Sciences Center as a series of parallel building volumes side by side – with a public space in between – that are rotated in all the same directions as the mall. Even though each of the individual building volumes are rational, flexible, and capable of being computer labs or wet labs, the open atrium in between becomes a Piranesian social space where you can see fellow students, faculty, colleagues, and professors from every level. So even if you spend most of your time in a wet lab, computer lab, or classroom, there will still be many opportunities for sparks to fly between you and your fellow students, stimulating the exchange of ideas across the traditional silos of knowledge. In that sense, the Robert Day Sciences Center becomes a crucible where all of the different kinds of knowledge and all of the different kinds of students and teachers come together in one complex, three-dimensional learning environment.” – Bjarke Ingels, Founder & Creative Director, BIG
▼从操场看向建筑,Looking towards the building from playground© laurianghinitoiu
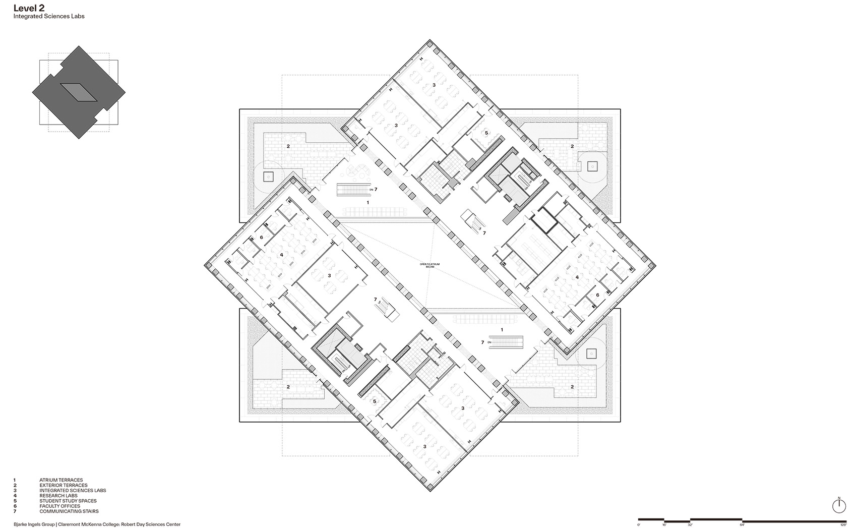
这座建筑的结构设计由两组叠加的体块构成,每对体块相对于下层楼面旋转45度。旋转体块之间的空隙形成了建筑中心的全高中庭,可直接俯瞰各楼层教室和研究空间。中庭的开放空间不仅鼓励协作与交流,也体现了建筑概念与教育理念的高度融合。外立面采用玻璃纤维增强混凝土板,呈现木材般的纹理,同时具备现代实验室所需的耐用性与防火性能。屋顶上覆盖的1021平方米太阳能电池板每年可提供约342兆瓦时的能源。
The building’s structure is designed as a stack of two volumes, with each pair rotated 45 degrees from the floor below. The voids of the rotated blocks create the full-height atrium at the heart of the building, which provides direct views into classrooms and research spaces from all levels. The open spaces within the atrium invite collaboration, embodying the center’s architectural and educational approach. The facade incorporates board-formed panels of glass fiber reinforced concrete, which create a wood-like texture while providing the durability and fire resistancerequired for a modern laboratory. The roof’s 11,000 sq ft of solar panels provide about 342 megawatt hours of energy production per year.
▼入口处,Entrance© laurianghinitoiu
▼室外露台,Terrace© laurianghinitoiu
建筑内部的每一层都悬挑于下层之上,三角形钢桁架构成支撑结构,外覆道格拉斯冷杉木。将桁架的纹理、节奏与几何形态延续至建筑外部,巧妙地实现了室内与室外的自然过渡。中庭内设有一座大型楼梯,既是社交与休闲的场所,又连接着首层、二层和咖啡馆,成为建筑中心充满活力的交流与聚集空间。
Inside, each level bridges the level below, supported by triangular steel trusses clad in Douglas fir. The texture, rhythm, and geometry of the trusses carry through to the exterior, creating a seamless transition from inside to outside. The atrium features a large staircase meant for socializing and relaxing that connects the first two floors and a café, creating a lively hub in the center of the building.
▼入口大厅,Entrance hall© laurianghinitoiu
▼中庭空间,Atrium© laurianghinitoiu
▼中庭的大型楼梯,The huge stairs© laurianghinitoiu
由艺术家达米安·奥尔特加创作的雕塑《磁场》悬挂在9米高空,作品由18个金属环和1,476颗色彩鲜艳的玻璃球组成,漂浮在轨道上,细节丰富,仿佛再现了地球的磁层。
Suspended 30 ft in the air, Magnetic Field by Damien Ortega – an intricate sculpture of Earth’s magnetosphere -floats in orbit, composed of 18 metal rings and 1,476 vibrant glass spheres.
▼雕塑《磁场》,Magnetic Field © laurianghinitoiu
▼悬挂在9米高空,Suspended 9 meters above the ground © laurianghinitoiu
首层设有麦克尔威论坛(McElwee Forum)、大型研讨空间和影像室,教室、研究空间、干湿实验室、量子图书馆和创客空间则分布在上层。教室环绕建筑外围布局,既能欣赏美景,又与下层中庭和社交空间形成有效的隔离。
The ground floor includes the McElwee Forum, a large seminar space, and imaging suites, while classrooms, research spaces, dry and wet labs, the Quantum Library, and a maker’s space are located on the upper floors. Classrooms are organized around the perimeter of the building, offering picturesque views while keeping them separate from the atrium and social spaces below.
▼教室,Classroom© laurianghinitoiu
▼研讨空间,Seminar space © laurianghinitoiu
▼实验室,Laboratory © laurianghinitoiu
▼自习空间,Study space © laurianghinitoiu
▼公共学习空间,Public learning space © laurianghinitoiu
贯穿整座建筑的暖色调木质外墙和混凝土地板,与学校标志性的红色与金色相得益彰。由BIG设计的室内空间充分考虑了未来科学创新的需求,巧妙融入了可按需配置的教室和模块化座椅等灵活元素。
Throughout the building, warm wood cladding and concrete floors are accented with the school’s signature colors of red and gold. The BIG-designed interiors are designed to accommodate future scientific innovation, incorporating elements such as reconfigurable classrooms and modular seating.
▼暖色调材质,Warm-toned materials © laurianghinitoiu
▼材质细部,Material details© laurianghinitoiu
八个户外屋顶平台沿“条形”建筑的轮廓边缘布局,平台可俯瞰北侧山脉、西侧校园以及东侧体育场的全景。这些多功能空间可灵活用作户外教室、自习区或社交场所,并种植了本地植物。罗伯特·戴科学中心目前正在申请LEED金级认证。
Eight outdoor rooftop terraces located on the corner perimeters of each ‘bar’ offer sweeping 360-degree views of the mountains to the north, the campus to the west, and the sports bowl to the east. These multifunctional spaces, landscaped with native flora, are designed to be used as outdoor classrooms, study areas, or places to meet. The Robert Day Sciences Center is aiming for LEED Gold.
“就像国际象棋中占据决定性位置的皇后,罗伯特·戴科学大楼为校园注入了全新的战略格局。它不仅扩展了北广场,开辟了对角线廊道,还连通了东侧体育场的步道。这个项目与我们洛杉矶办公室携手并进,见证了BIG加利福尼亚设计团队的成长,不仅成为校园建筑的基石,也是我们共襄盛举的里程碑。”– Leon Rost, BIG合伙人
“Like a well-placed queen on the chessboard, the Robert Day Sciences Building unlocks new moves for the campus -extending the north mall, initiating a diagonal mall, and opening access to the east sports campus. Growing in parallel with our Los Angeles office, it has become a shared milestone – an architectural cornerstone for the campus and a testament to our team’s evolution as California architects.” – Leon Rost, Partner, BIG
▼夜览,Night view© laurianghinitoiu
当天色渐晚,罗伯特·戴科学中心如灯塔般屹立在科学思想、研究和创新的交汇处,在圣盖博山脉的映衬下熠熠生辉。它不仅是CMC东大门的标志性建筑,更将校园打造成一个充满活力、激发灵感的探索之地。
As day turns to night, the Robert Day Sciences Center continues to serve as a beacon for the confluence of scientific ideas, research, and innovation. Standing illuminated against the backdrop of the San Gabriel Mountains, the center not only anchors CMC’s eastern gateway, but transforms the surrounding campus into a vibrant, inspiring place of discovery.
▼首层平面图,ground floor plan© BIG
▼二层平面图,first floor plan© BIG
▼三层平面图,second floor plan© BIG
▼四层平面图,third floor plan© BIG
▼立面图,elevation© BIG
▼剖面图,section© BIG
▼结构细部,details© BIG
项目详情
项目名称:克莱蒙特·麦肯纳学院罗伯特·戴科学中心
规模:12,542平方米
地点:美国,加州,克莱蒙特
业主:克莱蒙特·麦肯纳学院
设计建筑师及备案建筑师:BIG
合作方:Saiful Bouquet, Acco Engineered Systems, Atlas Civil Design, MRY, Rosendin Electric, WSP USA, Jacobs, ARUP, KGM Architectural Lighting, Heintges, KOA, EWCG, KPRS, Herrick, Hortus Environmental Design, IDS Real Estate Group, Kleinfelder, Salamander, Code Consultants Inc
BIG团队
创意总监:Bjarke Ingels
主创合伙人:Leon Rost
项目经理:Aran Coakley
技术负责人:Amir Mikhaeil
项目副主创:Lorenz Krisai
团队:Abigail Meyer, Ahmad Tabbakh, Alan Maedo, Ana Luisa Pedreira, Beat Schenk, Bernardo Schuhmacher, Bianca Blanari, Casey Tucker, David Holbrook, David Iseri, Dylan Hames, Gus Steyer, Hector Romero, Jan Leenknegt, Janie Louise Green, Joe Veliz, Kam Chi Cheng, Minjung Ku, Neha Sadruddin, Pooya AleDavood, Richard Cagasca, Ryan Duval, Seung Ho Shin, Sue Biolsi, Terrence Chew, Thomas Guerra, Thomas McMurtrie, Tracy Sodder, Vi Madrazo, Won Ryu, Yanan Ding, Yasamin Mayyas, Yen-Jung Alex Wu, Yiling Emily Chen
PROJECT FACTS
Name: Claremont McKenna College Robert Day Sciences Center
Size: 135,000 sq ft
Location: Claremont, California, United States
Client: Claremont McKenna College
Design Architect and Architect of Record: BIG
Collaborators: Saiful Bouquet, Acco Engineered Systems, Atlas Civil Design, MRY, Rosendin Electric, WSP USA, Jacobs, ARUP, KGM Architectural Lighting, Heintges, KOA, EWCG, KPRS, Herrick, Hortus Environmental Design, IDS Real Estate Group, Kleinfelder, Salamander, Code Consultants Inc
BIG TEAM
Creative Director: Bjarke Ingels
Partner-in-Charge: Leon Rost
Project Manager: Aran Coakley
Technical Lead: Amir Mikhaeil
Project Leader: Lorenz Krisai
团队:Abigail Meyer, Ahmad Tabbakh, Alan Maedo, Ana Luisa Pedreira, Beat Schenk, Bernardo Schuhmacher, Bianca Blanari, Casey Tucker, David Holbrook, David Iseri, Dylan Hames, Gus Steyer, Hector Romero, Jan Leenknegt, Janie Louise Green, Joe Veliz, Kam Chi Cheng, Minjung Ku, Neha Sadruddin, Pooya AleDavood, Richard Cagasca, Ryan Duval, Seung Ho Shin, Sue Biolsi, Terrence Chew, Thomas Guerra, Thomas McMurtrie, Tracy Sodder, Vi Madrazo, Won Ryu, Yanan Ding, Yasamin Mayyas, Yen-Jung Alex Wu, Yiling Emily Chen
客服
消息
收藏
下载
最近



























































