查看完整案例

收藏

下载
“社交空间是城市发展的理想模型” 。“凡是人们相遇的场所——无论是偶然的擦肩而过,还是刻意的相约相聚——都能成为充满生命力的社交空间” -赫尔曼·赫茨伯格在著作《空间的表达》
“Social Space is a Model for the City.” “Wherever people happen to meet – by chance or as passers-by – or converge in the act of meeting – whether accidentally or deliberately for gatherings or appointments – we can use the term Social Space”. – Herman Hertzberg《Articulations2002》 ©whyseeimage
项目背景
Introduction
位于内蒙古鄂尔多斯市郊外的羊绒技术中心,建于千禧之交。这座坐落于广袤荒漠中的建筑群,最初被规划成一个自给自足的产业社区。园区内,技术中心原本承担着羊绒研发与生产的专业职能。建筑内设有实验室、样品检测室和专业工作室,服务于高度专业化的研发流程。我们的设计任务是将这座略显老旧的设施,改造成为一个符合当代工作方式的研发社区——一个体现开放、协作与创新精神的现代化工作场所。
The Cashmere Tech Centre, part of a much larger factory complex, was first developed at the turn of the millennium. Located away from the city of Ordos in the arid desert landscape of Inner Mongolia Autonomous Region, the complex was conceived almost as a self-sufficient town. It included residences for factory staff and extensive facilities for the production of fabrics destined for both domestic and international brands. Within this compound, the Tech Centre was established as a dedicated building for advancing cashmere research and production. Equipped with laboratories, sample testing rooms, and studios, the centre was originally designed to support highly specialized processes. Our commission was to regenerate this aging facility into a contemporary R&D community — one that reflects today’s collaborative and open office practices.
▼建筑外观,building exterior©陈旸
空间重构:从封闭到开放
Space Design
我们将传统办公环境重新构想成一系列相互连接的社交空间。在这里,人与人通过活动接触和视觉交流而实现自然融合。为了打造更具社区感的工作环境,我们首先从改善空间连通性入手:在建筑二层增设独立的主入口,通过在新立面与原有外墙之间嵌入一道斜坡通道,创造了直达核心区域的流线。这一设计不仅避开了地面层的干扰,更赋予使用者和访客独特的空间体验。
▼轴测图,axonometric©waa未觉建筑
The sensibility of ‘Work place’ can ultimately be broken into a series of social spaces, where people’s activities converge either physically or visually. To support more community driven working environment the first component was to improve connectivity- The cashmere centre was given its own entrance on Level 2. To achieve this we designed a new ramp sandwiched within the new cladding and existing façade wall, this enabled a circulation bypassing the ground level and in doing so gifting an autonomy to users and visitors.
▼中庭空间,atrium space©陈旸
原建筑采用封闭的”回字形”布局。在改造中,我们部分保留了这个特征,同时围绕中央庭院旋转并打开了多个区域。研发工作室、技术研究室、研发区域和样品库等关键功能空间被重新组织。我们用种植绿植的玻璃盒子在网格系统中旋转45度,这一设计打破了传统的正交环路,创造出丰富的次级路径,让三层空间的流动更加自由。由此,各工作区之间的界限变得模糊,人们在流动的空间中获得了更多相遇和交流的机会。
The original plan organized rooms in a closed perimeter “donut.” We maintained this structure in parts, but rotated and opened up sections around the central atrium. Key spaces including management offices / Tech Centre / R&D offices and the sample library. Glass boxes with plantations were rotated 45 degree on the grid, a tool to diversify into sub-routes so that level 3 circulation is no longer a traditional orthogonal loop. This results in boundaries between each work zone are looser so people enabling more chances to be physically engaged with one and another and by the burring bounds.
▼围绕中央庭院旋转并打开了多个区域,rotated and opened up sections around the central atrium©陈旸
▼围绕中央庭院旋转并打开了多个区域,rotated and opened up sections around the central atrium©陈旸
▼人们在流动的空间中获得相遇和交流的机会,physically engaged with one and another and by the burring bounds©陈旸
Our Intention for the internal space re-arrangement is to create an open workspace environment where people can maintain group and individual interaction by choice, they can pick either private room for small discussion even for singular usage online-meetings additionally they can choose large open spaces for open discussion.
▼开放而多元的工作环境,an open workspace environment©陈旸
舍弃原始建筑中的中庭用作展示区的传统做法,我们更注重激发研发团队的创新活力。墙面和架上的样品不再是静态的展览品,而是可供随时取用、观摩的互动元素。通过将样品库重新定义为研讨空间,我们让产品研发过程变得更加开放透明。考虑到本地员工的工作习惯,我们将各工作室的样品间设置在面向公共中庭和走道的显眼位置,而将实际办公区安置在样品间后方,既保证了私密性,又让每个工位都能享受自然采光和室外景观。我们将演讲厅设计为与原有建筑网格呈45度角,这一布局强化了与材料库、样品区的空间对话。新建的空中连桥轻盈地跨越中庭,既在物理上分隔了演讲沙龙与主厅功能,又保持了视觉上的连通。新建的连桥上的观景平台更成为促进人们不期而遇的绝佳场所,同时也在物理空间中将演讲厅与中庭做了区域的分割同时又保持了视觉的交互和联系。
Rather than maintain the conventional office layout with private offices and where the public atrium was used only to Display. We conclude it’s more important to promote research and development aspects of the team where multiple conversations and discussions are encouraged in various spaces. Items on the wall and shelf are not exhibition displays but for interactively browsing. Through reframing the sample libraries as a place for discussion while products are researched. To emphases with the local employees that they might somehow prefer to have their closed offices, we put the samples rooms for each of the studio on the layer which facing the public atrium and passageway, where the actual staff office are hidden behind with windows views to the outside. An Auditorium planned to a 45 degree angle from the existing grid. This arrangement improves interactions between the between Material Library, materials sample and theatre. A new foot bridges crosses the void to physically semi-divided between the lecture salon and main hall. Aiding movement as well a vantage point balcony further enhancing places people’s paths cross.
▼空中连桥轻盈地跨越中庭,The sky bridge glides lightly across the atrium©陈旸
建筑新生:新旧交融的立面革新
Building Envelope
我们的改造在保留建筑本体的同时,赋予其全新的建筑表皮。模块构件化的立面系统犹如一件充满精密工业质感二的外衣,将原有建筑温柔包裹。在这层新立面之后,我们嵌入了一道通往二层主入口的斜坡通道,重新定义了建筑的抵达体验。
The regeneration strategy was guided by a desire to retain the existing building while giving it a renewed architectural identity. The Component Driven Façade, conceived as an industrial jeweled cloak now encases the original building. Behind the cloak a new access ramp supported by this facade allowing direct access to the entrance located on the Second level Entrance foyer.
▼模块构件化的立面系统,Modular component-based facade system©陈旸
立面的三大元素设计:
Key design moves included:
1. 采用1.5米×5.8米的标准化模块重新划分建筑尺度,通过修长的面板线条在视觉上减轻了建筑的体量感
2. 精心布置的穿孔铝板在保持立面完整性的同时,确保了室内外的视觉连通
3. 弧形铝板根据内部空间视野需求和主要流线走向进行精准定位,引导着人们在空间中的移动
1. Rescaling the building with a module size of 1.5m x 5.8m has advantages in reorganizing of the massing proportions. With longer panels the scale adds a clean barrier to the street with giving the illusion of reducing the size proportion.
2. Perforated Panel increase visibility from existing openings.
3. Arced Panels respond to internal view requirements and are positioned in relation to Entrances and Circulation routes.
▼立面系统细部,Modular component-based facade system detail©陈旸
细节营造:家具插件式的场景营造
Design Focus: Furniture to enable architecture
我们通过家具和道具的设计重新塑造新工作文化的场景。传统封闭办公室的陈旧模式被深受年轻团队青睐的开放式讨论环境而取代。
The design of furniture was integral to shaping the new workplace culture, reinforcing openness and collaboration. The new interior avoids the older model of enclosed offices in favour of open discussion environments that younger staff in particular value.
▼开放式讨论环境,open discussion environments©陈旸
多功能中庭
Open Display
宽敞的中央接待空间承载着双重功能。这个通高的空间虽非专门的展厅,但其均匀的照明条件和开阔的场地完全适合举办大型项目展示,目的是营造一个开放的工作和讨论的场景。在这里展示不是目的,而是讨论的工具和信息交流的载体。周边设置的座椅既可供人休憩,也可兼作临时展台。八间不同组别的研发工作室以及其附属的材料库环绕在中庭的一侧,通过开敞讨论区与中庭实现软连接。
The large central reception space hosts two large Front of House functions. Although not a designated exhibition space the evenly lit high volume can be utilized for large scale project display with perimeter seating also used as temporary storage and display.
▼均匀的照明条件和开阔的场地适合举办大型项目展示,Uniform lighting conditions and spacious venues are suitable for holding large-scale project exhibitions©陈旸
开敞演讲厅
Open Auditorium
通过新建的连桥与主楼相连的演讲空间配备可升降的布帘隔断,能够适应从私密沙龙到大型讲座的不同需求。阶梯式座位提供灵活的座位安排,而上层廊道的观景平台让这里发生的活动成为整个空间的视觉焦点。当屏幕降下时,这里立即变身为专业研讨和集体学习的知识场域。
▼轴测图,axonometric©waa未觉建筑
Connected by the newly added bridge, the auditorium features retractable curtains that enable either intimate or large-scale gatherings. Stepped seating accommodates additional chairs, and vantage points from balconies above ensure activity here becomes visible to all. When screens are active, the space becomes a focal point for seminars and discussions.
▼可升降的布帘隔断,retractable curtains©陈旸
互动样品区
Open Samples
研发样品区采用工作台与垂直墙挂系统相结合的方式。在这里,材料样品不再是静态存储,而是被主动展示和使用的研发工具。这种布置方式促发了持续的原型讨论和设计评审,形成了一种以公共讨论为核心的新型工作方法。
▼轴测图,axonometric©waa未觉建筑
The R&D sample review area is organised around bench-style displays and vertical hanging walls. Here, materials are not just stored but actively displayed, creating a working methodology where prototypes are constantly in dialogue, sparking critique and guiding a working methodology focused on public discussion.
▼样品库,the sample library©陈旸
创新办公区
Open Offices
软膜照明如星辰般点缀在办公区域上空,其不规则的排布方式与工作台布局形成有趣的重叠。而布置了绿植的玻璃盒子,正好成为开放办公区域与区域之间的视觉节点。这种设计鼓励着自发的交流、跨领域的碰撞和多层次的对话,让创新在空间中自由流动。
▼轴测图,axonometric©waa未觉建筑
Membrane Lighting pockets dot the office space, in a series of irregular locations overlapping the workspace desk arrangement. This encourages spontaneity, cross disciplinary encounters and overlapping conversations.
▼布置了绿植的玻璃盒子,A glass box decorated with green plants©陈旸
结语
Conclusion
面对存量工业建筑的改造和更新这一当下的命题,我们尝试通过精准的模数控制和细腻的空间处理,让原本厚重的建筑体量展现出轻盈的新貌。新建的外立面如同一个精致的外壳,既遮掩了岁月的痕迹,又暗示着品牌的核心价值——将天然羊毛转化为无毛羊绒的匠心历程。历经蜕变的建筑,不仅见证了材料从原始到精制的升华,更将成为培育创新、促进交流的活力场所。
The composition of the existing industrial infrastructure imposes robust requirements on any industrial renewal project, and the architecture responds directly to these conditions. Our decision to employ a rigid grid creates the illusion of rescaling the volume, lightening what was once a heavy mass. The new cloak acts as a reliquary (a protective and precious container) masking the former building while still alluding to the brand’s core identity. The transformation of a raw natural material into a refined luxury product.
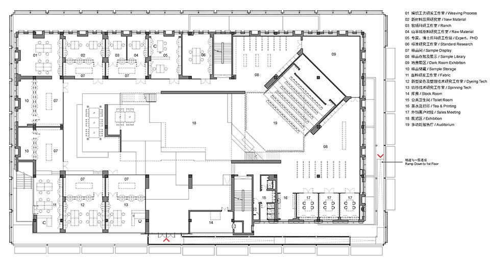
▼二层平面,first floor plan©waa未觉建筑
▼三层平面,third floor plan©waa未觉建筑
项目名称:羊绒技术中心
业主:鄂尔多斯集团
方案设计:waa未觉建筑
施工图设计:waa未觉建筑
设计团队:张迪,杨杰克,冯雨晴, 伍艺文,李坤荣
幕墙顾问:北京博亚工程咨询有限公司 张燕新,汤理达(MaP3)
灯光顾问:悦森照明科技(上海)有限公司
总包施工:西安名冠展示道具有限公司
幕墙施工:北京盈海创建科技发展有限公司 东南九牧(河北)铝业有限公司
摄影/摄像:陈旸/whyseeimage
设计面积:4578平方米
设计周期:2024.10-2025.03
建设时间:2025.03–2025.08
项目地址:内蒙古自治区鄂尔多斯市东胜区罕台镇
Project Name:Cashmere Tech Centre
Client:ERDOS
Concept Design:waa未觉建筑
Construction Design:waa未觉建筑
Design Team:Zhang Di, Jack Young, Feng Yuqing, Wu Yiwen, Li Sean
Façade Consultant: Beijing Boya Engineering Consulting Co., Ltd Zhang Yanxin, Tang Lida (MaP3)
Lighting Consultant: RESENSE Lighting
Main Contractor:XI’AN Mingguan Contractor
Cladding Contractor: Beijing Yinghai Chuangjian Technology Development Co., Ltd. Dongnan Jiumu (Hebei) Aluminum Industry Co., Ltd.
Photographer+Video:whyseeimage
Design Area:4578 sqm
Design Period:2024.10-2025.03
Construction Period:2025.03–2025.08
Project Address: Qingfang Road, Hantai, Dongsheng District, Ordos, Inner Mongolia, China
客服
消息
收藏
下载
最近








































