查看完整案例

收藏

下载

翻译
Architects:Atelier Matteo Arnone,Core Concept,Falcão Tuan Arquitectos
Area:500m²
Year:2025
Photographs:Federico Cairoli
Manufacturers:Gaggenau,Secil,Viabizzuno,a catedral
Category:Residential Architecture,Houses
Lead Team:Matteo Arnone
Design Team:Atelier Matteo Arnone, Falcão Tuan, Core Concept
City:Alenquer
Country:Portugal
Text description provided by the architects. The project by Atelier Matteo Arnone for Quinta do Álamo represents a dialogue between past and present, between the memory of the winemaking tradition and the modernity of a house designed for two DJs. Located in Carnota, in the municipality of Alenquer, just 40 minutes from Lisbon, the Quinta is surrounded by vineyards that tell a long history of wine production, offering a unique natural and cultural setting.
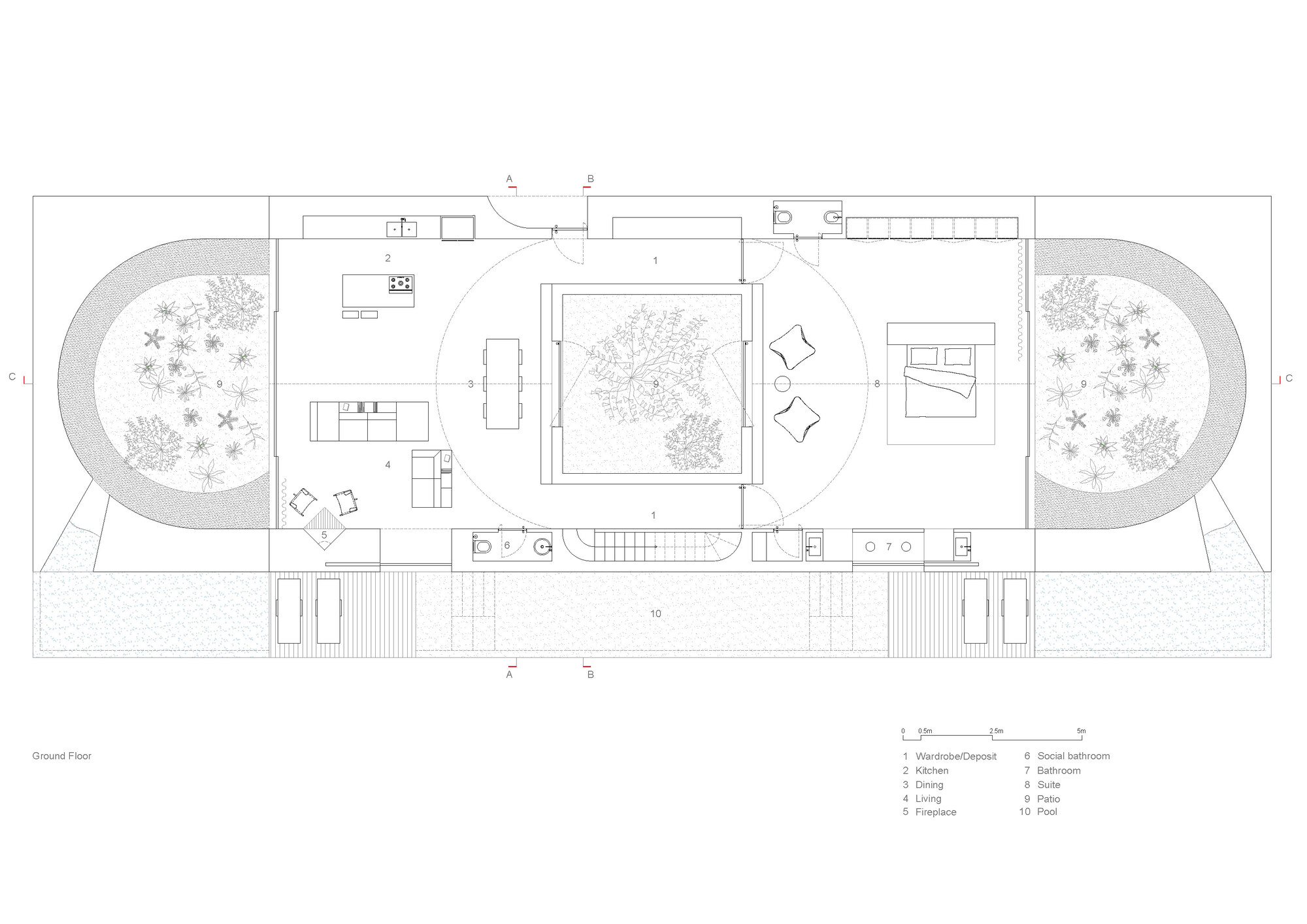
The architecture of the Quinta is brought to life through the renovation of a pre-existing ruin, an old winery originally used for storing large wine barrels. The project transforms this historical memory into a contemporary home, characterized by a perfectly symmetrical floor plan and a strong connection between interior and exterior spaces. On the lower floor, the main living spaces—a living room-kitchen area and a single bedroom—are arranged symmetrically, each opening onto a semi-circular patio that embraces the space.
These patios do not merely define the boundary between inside and outside; they turn this threshold into an aesthetic and harmonious element. Their curved shape eliminates sharp corners, fostering a fluid continuity that dissolves physical separation and creates private corners bathed in natural light. A third patio, positioned between the bedroom and the living room-kitchen area, introduces an even more intimate dimension: it not only brings light to the recording studios on the upper floor but also establishes a delicate visual connection between the living spaces.
The architectural solution stands out for its use of thick perimeter walls, which incorporate essential functional elements of the house. These walls do more than serve a structural purpose; they integrate features such as the staircase leading to the upper-floor studios, as well as storage spaces and built-in furniture. This choice ensures a minimalist and orderly aesthetic, optimizing the overall organization of the construction.
The recording studios on the upper floor, with their circular shape, reflect the creative soul of the house, designed to meet the professional needs of its owners.
Project gallery
客服
消息
收藏
下载
最近

































