查看完整案例

收藏

下载
摄影:直角建筑摄影
在杭州未来科技城的街角,由
gad杰地设计打造的
遥望总部大楼,以一种不张扬却独特的姿态融入城市风景。这座约
42000㎡
平方米的建筑,并非以高度取胜——它被限制在45米以下,却凭借宛如钻石切割般的多面体造型,在周围参差的建筑群中悄然脱颖而出。
摄影:直角建筑摄影
摄影:直角建筑摄影
建筑北侧通过体量的退让与悬挑,留出一片开阔的入口广场。这里不仅是企业内部集会的场所,也自然地成为城市中一处开放的公共空间,与街道对话,与人流互动。南侧则利用下沉庭院与首层花园,在有限用地里营造出一方静谧的办公小公园,延伸至不远处的河岸景观,让自然悄悄渗透进日常。
摄影:直角建筑摄影
摄影:直角建筑摄影
摄影:直角建筑摄影
摄影:直角建筑摄影
立面采用阳极氧化铝板勾勒出清晰的骨架,幕墙则以定制的菱形夹具固定玻璃,形成近乎隐框的平滑效果。渐变纹理的玻璃配合隐藏式通风设计,既保证了视觉上的纯净,也回应了科技企业对先锋与精致的追求。
摄影:直角建筑摄影
摄影:直角建筑摄影
摄影:直角建筑摄影
摄影:陈钢
走进内部,南北贯通的中庭贯穿主次入口,串联起各层功能。交错的连廊不仅是行走的路径,也构成建筑的结构语言,同时为企业的直播业务提供了灵活多变的空间场景。首层布置商业与餐饮,开放而亲和;二层以上是可灵活划分的办公区;顶层则设有接待区与观景露台,面向城市,收纳风景。
摄影:直角建筑摄影
摄影:直角建筑摄影
在这里,建筑不再是冰冷的容器,而成为连接城市、自然与人的媒介,以空间的方式,默默支撑着创意与灵感的生长。
摄影:直角建筑摄影
摄影:直角建筑摄影
摄影:直角建筑摄影
项目图纸
总平图 © gad
1F/2F平面图 © gad
3F/7F平面图 © gad
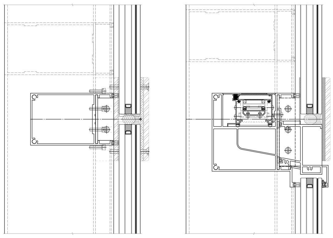
夹具节点/通风器节点 ©
gad
南立面图
©
gad
西立面图 ©
ga
d
剖面图 © gad
编辑:吉文 | 视觉:慕熙 胡音
联系:赵赵(id:cunquchina)
客服
消息
收藏
下载
最近




























