查看完整案例

收藏

下载
半卷闲书伴茶烟,
袅袅白烟里听暮年风声也温柔。
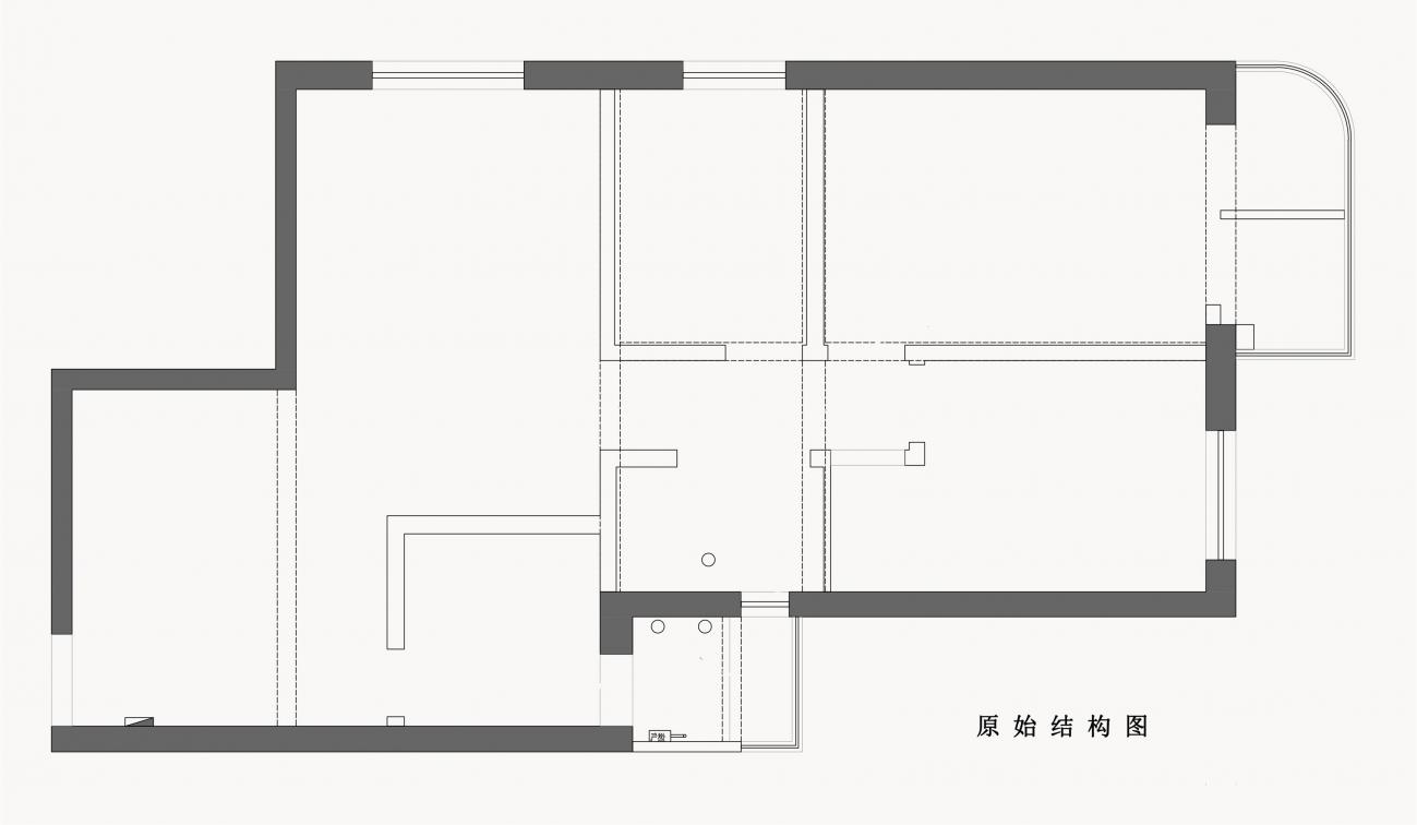
改造前痛点:
采光差:隔墙过多,功能区零散;收纳不足:储物分散,杂物堆积;
单一卫生间:高峰期使用不便;空间浪费:厨房小阳台、主卧阳台闲置,书房功能单一。
改造后:
❶打破隔阂:拆除厨房隔墙形成餐厨一体横厅;多功能房用玻璃移门代替实墙放大空间。
❷功能叠加:主卧阳台改造为独立卫浴,书房嵌入壁床实现“书房+客房”切换。
❸动线重组:公卫外置洗手台,双洄游动线串联餐厨与生活阳台,提升效率。
大冰箱与烹饪区嵌入墙体,释放台面空间,中央岛台兼具备餐与吧台功能:深度设计满足多人协作需求,高度适配日常操作。岛台既是料理枢纽,亦是简餐区和休闲角落,完美适配家庭社交场景。
在简约的空间基调下,石材的巧妙点缀为空间注入质感与层次。黑白粗犷的大理石与温润细腻的洞石形成对比,又与沙发、地毯的柔软材质相映衬,冷暖交织之间,营造出丰富而和谐的视觉体验。
客服
消息
收藏
下载
最近






























