查看完整案例

收藏

下载
项目名称:阿那亚北岸社区体育中心
位置:河北秦皇岛
设计单位:旭可建筑
图片数量:20张
阿那亚北岸社区体育中心位于河北省秦皇岛市昌黎县的大浦河南岸,是阿那亚九期滨河工业地块集群设计的一部分。集群设计的规划阶段设计师享有地块的选择权,我们在设计之初就选择了临近住区、离滨海核心景观较远的地块作为基地。在设计过程中,项目定位从最初的“游艇培训中心”转为明确服务住区的“社区体育中心”。
Aranya North Shore Community Sports Center is located on the south bank of the Dapu River in Changli County, Qinhuangdao City, Hebei Province, and is part of the cluster design for the Aranya Ninth Phase Riverside Industrial Plot. During the planning stage of the cluster design, the designers had the freedom to choose their plot. From the outset, we selected a site adjacent to the residential area and further from the core coastal landscape as our base. Throughout the design process, the project’s orientation shifted from the initial “Yacht Training Center” to a clearly defined “Community Sports Center” serving the residential area.
▼项目概览,Overall view © 陈颢
集群设计的场地是一块完全新建的滨水区域,且处于住区与公共建筑区域的过渡地带,而业主设定的功能也是同时给住区和公共建筑区域提供使用的社区体育中心,包括两个室内篮球场、一个室内健身馆、一个室内泳池,以及一个室外泳池。
The site for the cluster design is a completely new waterfront area, situated in a transitional zone between the residential area and the public building zone. The function designated by the client is a community sports center serving both the residential area and the public building zone. It includes two indoor basketball courts, one indoor fitness gym, one indoor swimming pool, and one outdoor swimming pool.
▼体育中心北立面,north elevation © 陈颢
▼立面细节,elevation details © 陈颢
回应场地和功能条件,设计采用滨水空间工业建筑常见的排架结构体系,创造一种滨水空间常见的场所感,来尝试给这个完全新建的街区一种熟悉的场地特征。同时将体育中心面对社区和面对公共建筑群开放,让体育中心成为公共活动的发生器。
Responding to the site and functional requirements, the design adopts the bent-frame structural system commonly found in industrial architecture of waterfront spaces, aiming to create a familiar sense of place typical of such areas and attempt to imbue this entirely new neighborhood with a recognizable site character. Simultaneously, the sports center opens towards both the community and the public building cluster, allowing it to become a generator of public activity.
▼北侧矮墙与接驳车站,north side wall & bus stop © 陈颢
我们希望借助体育馆大单体具有的物体性来稳定住基地本身的瞬时开发特征,一方面匹配体育中心本身的功能需求,另一方面也给予场地特征和体验者视觉与触觉上必要的安定感。坐落于居住区与公共区域交界处,体育中心实现了两种空间尺度的自然过渡。北侧大门敞开时,其内部宽敞的空间不仅服务于社区居民的日常健身活动,也广泛承接各类公共文艺事件。
自落成以来,体育馆前的室外游泳池更是成为备受全年龄段住户欢迎的活动场所,无论晴雨,始终洋溢着生机与活力。而内部空间在满足社区居民日常健身的需求外,也成为事件性大型公共活动发生的所在地。这使得体育中心既谦逊地融入北岸公共建筑群的整体氛围,又真诚地融入住区的日常生活图景——成为一种“巨大沉默而又平易近人”的存在。
Since its completion, the outdoor swimming pool in front of the gymnasium has become a popular activity venue for residents of all ages, brimming with vitality and energy regardless of weather. Beyond meeting the daily fitness needs of the community residents, the interior space has also become a venue for large-scale public events. This allows the sports center to both humbly integrate into the overall atmosphere of the North Shore public building cluster and sincerely blend into the daily life of the residential community – becoming a presence that is “monumental yet approachable, silent yet welcoming.”
▼人们在泳池活动,people in swimming pool © 陈颢
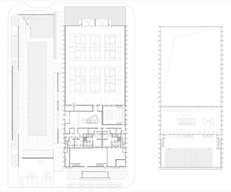
建成的体育中心是一个方盒子形态的大体量单体,长78.2米,宽35.5米,高12.7米。平面北侧通高空间为容纳两个室内篮球场的篮羽馆,南侧有一个夹层,夹层底层容纳体育中心的门厅,柔术教室,更衣室和室内游泳池的水处理机房;夹层上层为可鸟瞰篮羽馆的健身房和室内游泳池,两者均可俯瞰篮羽馆,形成上下呼应的空间布局。
The completed sports center is a large, monolithic volume in the form of a rectangular box, measuring 78.2 meters in length, 35.5 meters in width, and 12.7 meters in height. The full-height space on the north side of the plan accommodates the basketball and badminton hall containing two indoor basketball courts. The south side features a mezzanine level. The lower level of the mezzanine houses the sports center’s lobby, jiu-jitsu classroom, changing rooms, and the water treatment plant room for the indoor swimming pool. The upper level of the mezzanine contains a fitness gym that overlooks the basketball/badminton hall and the indoor swimming pool; both spaces offer a bird’s-eye view of the hall below, creating a spatially responsive layout.
▼儿童戏水池,children pool © 陈颢
门厅设置于体育中心西侧,通过室外泳池区域进入。门厅长20米、宽9米,虽然空间紧凑,却是体育中心最重要的动线枢纽。整个门厅采用环岛式布局,西侧进入后,使用者可绕岛通向四个方向:北侧进入篮羽馆,东侧为柔术教室,南侧通向更衣室并最终连接至室内泳池,上方则通过楼梯抵达夹层中的健身房。门厅中央的环岛区域抬升楼梯基座,同时设置公共长凳,便于等候与小憩,增强了空间的社交属性。
The lobby is situated on the west side of the sports center, accessed through the outdoor swimming pool area. The lobby is 20 meters long and 9 meters wide. Although compact, it serves as the most crucial circulation hub of the sports center. The entire lobby employs a roundabout layout. After entering from the west side, users can circulate around the central “island” to access four directions: north to the basketball/badminton hall, east to the jiu-jitsu classroom, south to the changing rooms leading ultimately to the indoor pool, and upwards via stairs to the fitness gym on the mezzanine. The central roundabout area features a raised base for the stairs and incorporates public benches, facilitating waiting and short breaks, thereby enhancing the social attribute of the space.
▼泳池入口,pool entrance © 陈颢
体育中心采用工业建筑常见的排架结构体系,由预制混凝土柱与钢桁架组成,形成一个整体大空间。内部夹层结构在结构系统中保持独立状态,作为大空间的填充体,不参与主体受力。篮羽馆、健身房和室内泳池由于暖通需求各异,被划分为三个独立的气候单元。
The sports center utilizes a bent-frame structural system common in industrial architecture, composed of precast concrete columns and steel trusses, forming one large, unified space. The internal mezzanine structure remains independent within the structural system, acting as an infill within the large space and not participating in the primary load-bearing structure. Due to differing HVAC requirements, the basketball/badminton hall, fitness gym, and indoor swimming pool are divided into three independent climate zones.
▼蓝羽馆,basketball/badminton hall © 陈颢
分隔篮羽馆、健身房和室内泳池的两排内部立柱不参与屋顶结构承重,仅作为玻璃幕墙的固定框,并在内部隐藏了共计12根屋面雨水管。外部这些立柱的截面尺寸与主结构柱一致,在视觉上增强了外立面的整体节奏感与层次。屋面采用统一灯具系统布置,篮羽馆顶部露明,健身房与泳池区域设有吊顶。统一的照明设备与设备带布局,使得吊顶形成一个完整而连续的顶面。
The two rows of internal columns separating the basketball/badminton hall, fitness gym, and indoor swimming pool do not bear the roof load; they solely serve as fixed frames for the glass curtain walls and internally conceal a total of 12 roof rainwater pipes. Externally, the cross-sectional dimensions of these columns match those of the main structural columns, visually enhancing the overall rhythm and layering of the facade. A unified lighting system is employed across the roof. The ceiling in the basketball/badminton hall is exposed, while the fitness gym and pool areas have suspended ceilings. The unified lighting fixtures and service trunking layout allow the suspended ceilings to form a complete and continuous overhead plane.
▼举办艺术活动,holding art event © 栩栩华生
▼举办篮球赛事,holding basketball event © 五条杠
北立面为一整面落地玻璃幕墙,将体育中心内部活动完全暴露于外,同时也将外部景观与社区公共活动纳入视线之中。幕墙中央设有两扇总宽18米的大门,打开后,社区人群可不经过门厅,直接进入篮羽馆及相关区域,使体育中心具备可变的社区使用潜力,强化其对外开放的可能性。
The north elevation is a full-height glass curtain wall, fully exposing the internal activities of the sports center to the outside, while also incorporating the external landscape and community public activities into the interior view. The central part of the curtain wall features two large gates with a total width of 18 meters. When opened, community members can directly access the basketball/badminton hall and related areas without passing through the lobby, giving the sports center variable potential for community use and strengthening its openness to the public.
▼公共楼梯及中央环岛,stairs & central core © 陈颢
体育中心西侧布置为附属的室外泳池区。包括位于南侧的一座50米×10米的标准成人泳池,和北侧12米见方的儿童戏水池。室外泳池西侧和体育中心之间设置大尺度雨棚,作为体育中心主入口的雨棚,并容纳供泳池使用者使用的储物柜。
The west side of the sports center is designated as the ancillary outdoor swimming pool area. This includes a standard 50-meter by 10-meter adult pool on the south side, and a 12-meter square children’s wading pool on the north side. A large-scale canopy is installed between the western side of the outdoor pools and the sports center building, serving as the main entrance canopy for the sports center and housing lockers for pool users.
▼灯具细节,lighting details © 陈颢
室外泳池区在南北和西三侧由高度、长度错动的混凝土矮墙环绕,既限定了人流视线和进入路径,也提供必要的遮阳与淋浴设施。北侧景观墙为最高,墙体外翻,底部设置了阿那亚九期社区的电瓶车接驳车站,形成体育中心与周边住区之间的交通接口,进一步强化了建筑的社区联动性。
The outdoor pool area is enclosed on its north, south, and west sides by concrete low walls of varying heights and lengths. These walls define sightlines and access paths while also providing necessary shading and shower facilities. The northern landscape wall is the tallest; its top folds outward, and at its base, an electric shuttle bus stop for the Aranya Ninth Phase community is situated, forming a transportation interface between the sports center and the surrounding residential area, further strengthening the building’s connectivity with the community.
▼夜览,Nightview © 陈颢
▼立面夜景,elevation nightview © 陈颢
▼平面图,plan © 旭可建筑
▼剖面图,section © 旭可建筑
项目 名称: 阿那亚 北岸社区 体育 中心项目 类型: 建筑项目 地点: 河北 秦 皇岛市 北戴 河区 阿那亚 北岸 滨河 商业 街设计 单位: 旭 可 建筑主 创 建筑师: 刘 可南, 张旭设计 团队 完 整 名 单:项目 建筑师: 沙玮 琦项目 团队: 沙玮琦, 邓添, 黄麟, 戴亦殊, 张朔, 张谱, 赖 大慰, 周瑾妮, 蔡天, 王思哲, 唐慧 莲( 实习 )结构 设计: 上海 三 垚 建筑 工程 设计 有限 公司结构 团队: 缪建波, 陈通机 电 设计: 上海 峙盛建筑 装饰 设计 有限 公司机 电团队: 俞晓明, 范鑫, 毛悖, 罗瑾驻场 建筑师: 邓添, 姚子 意( 实习 )建成 状态: 建成设计 时间: 20 19.10-2021建设 时间: 20 21-2024.6建筑 面积: 38 40㎡
客服
消息
收藏
下载
最近




















