查看完整案例

收藏

下载
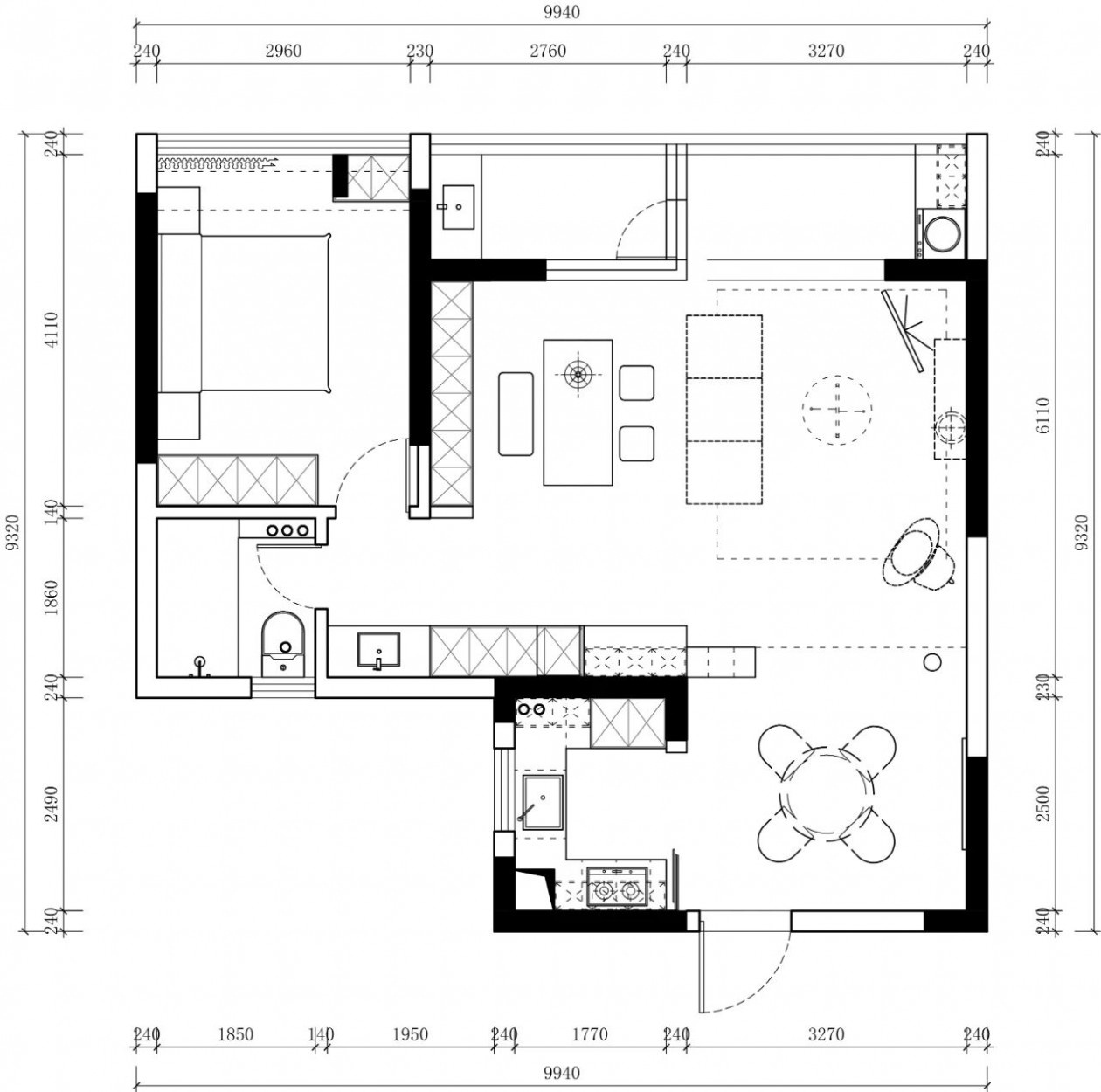
业主是作为独居的空间使用,平时功能也仅是朋友来家里喝茶吃饭。独居住宅不仅仅是“一个人住的房子”,更是一个承载生活方式、情绪价值和未来预期的私人领地。优秀的设计应在实用、安全、舒适、情感连接之间取得平衡,让居住者既能享受自由,又能感受到被空间温柔包裹的安全与归属。并且增加了一个外向的阳台区域,作为小灰空间的使用。
进门区域使用突出的柜子作为小玄关以及客厅和餐厅的分割。
对应另一边,使用一根十字柱加木面的做法,同时使用两种地面材质分割,进一步限定餐厅。
因为是一个人居住,业主也需要一个茶室作为朋友交谈的空间。于是将客厅和茶室结合作为本案最大空间使用。并且在墙体边上都作为红酒和茶叶的放置。整体柜子使用内向型材质,并且介于冰箱和红酒柜的深度做了两种形体的穿插做法。
因为是一个人居住,业主也需要一个茶室作为朋友交谈的空间。于是将客厅和茶室结合作为本案最大空间使用。并且在墙体边上都作为红酒和茶叶的放置。整体柜子使用内向型材质,并且介于冰箱和红酒柜的深度做了两种形体的穿插做法。
茶室边上单独做出一个穿插进大空间的阳台灰空间,作为个人接触大自然的桥梁。
卧室的部分则主要以简单为主,搭配质朴材质的家具。配合整体氛围。
项目名称:Y宅-时光的柔板
项目面积:81㎡
设计人:费嘉敏
设计公司:F+建筑空间设计
项目摄影:竹石空间摄影
客服
消息
收藏
下载
最近































