查看完整案例

收藏

下载
松风
Whispering Pines
“松风“作为历代文人所喜爱的典故,它指代了一种超越了单纯的听觉对象所激发的真实知觉体验——静听松风、自在闲逸。自宋以降,“松风”也指代”茶事”,象征煮茶时沸腾的如松涛般的水声。
“Whispering Pines,”a cherished motif among scholars through the ages, evokes a perceptual experience that transcends mere auditory sensation—a state of serene contemplation and untrammeled ease found in listening to the wind through the pines. Since the Song Dynasty, it has also symbolized the “art of tea,” representing the sound of boiling water reminiscent of wind-swept pine forests during tea preparation.
▼入口概览,Entrance overview © 黑曜石、李杨
半日松风,是位于南京谷里薛家凹的一方茶事小天地。关上园门,用心呵护这一块小小的天地,园外的一切皆付笑谈中。
Pine whisper,a tranquil tea retreat in Xuejia’ao, GuLi, Nanjing. Shut the gate, and this little world is tended with devotion, leaving the world outside behind.
▼入口细节,Entrance details © 黑曜石、李杨
前院
The Front Courtyard
从最初的古代文化开始,园林就是一种幸福的、普遍的异托邦。
——福柯
“From the first ancient cultures, gardens have been a happy, universal heterotopia.”
——Foucault
▼由喧嚣走向宁静,From noise to tranquility © 黑曜石、李杨
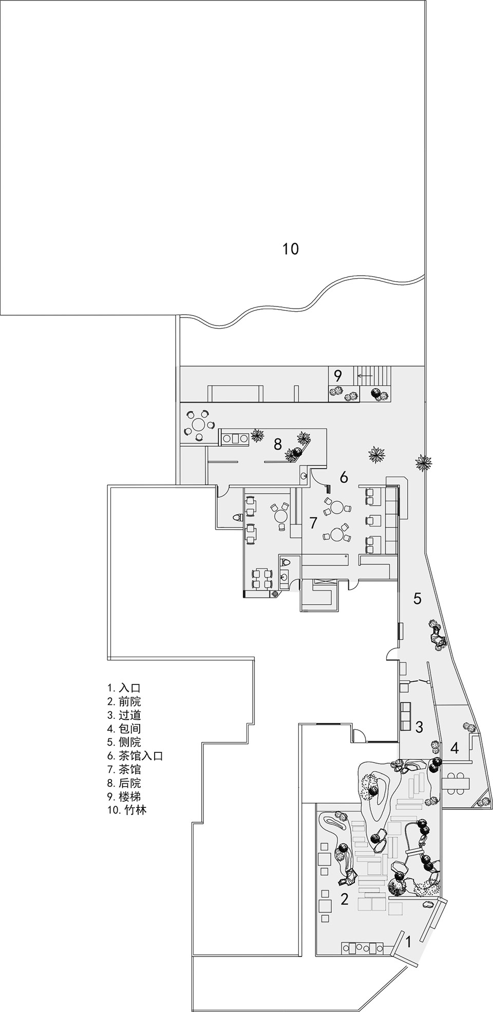
整个院落以中心区域的建筑群大致切分为四个单元:前院、侧院、后院和最北端的竹林。不同的院落,游园的重点各不相同。但他们串联在一起,是一段完整的由喧嚣走向宁静的叙事过程。
The entire compound is roughly divided into four distinct sections by the central building cluster: the Front Courtyard, the Side Courtyard, the Rear Courtyard, and the Bamboo Grove at the northernmost end. Each area offers a unique experience, yet together they form a continuous narrative—a journey from noise to tranquility.
▼精致的小径,Exquisite path © 黑曜石、李杨
前院山门内外入口错开,形成入门遮蔽转角。进门左侧为喝茶凉亭,它与山门连成一高一低的节奏;右侧置入松石水景,将天光水光一并纳入。
At the entrance of the Front Courtyard, the inner and outer gates are intentionally offset, creating a visual buffer and a gentle turn upon entry. To the left stands a tea pavilion, harmonizing with the main gate in a rhythmic play of heights—one tall, one low. To the right, a pine-and-stone water feature captures both daylight and aquatic reflections, drawing the sky into the garden.
▼喝茶凉亭,The tea pavilion © 黑曜石、李杨
园林的灵魂在于它是按照人的意愿,庇护最大限度的宁静。在这个咫尺方圆内,将自然缩小到适宜人体的尺度,它便成为抵御现代生活侵蚀的庇护所,从而与那些寻求与自然相连接的人们共通。
The soul of this garden lies in its design according to human will, sheltering serenity to the greatest extent possible. Within this intimate space, nature is scaled down to a human measure, transforming the garden into a refuge from the erosion of modern life. In this way, it resonates deeply with those who seek to reconnect with nature.
▼与自然相连接,Reconnect with nature © 黑曜石、李杨
侧院
The Side Courtyard
前院至建筑的一侧由植被坡地蜿蜒成两条路径,一条通往工作区,另一条连接侧院直通后院的茶馆。我们将侧院入口的建筑立面打开,把原本位于室内的区域置于室外,使它成为连接两个院落的通道,引导呼吸与停留。
The area between the front courtyard and the main building unfolds along two winding paths formed by a vegetated slope: one leading to the work area, the other connecting the side courtyard to the tea house in the rear. We opened up the facade of the side courtyard’s entrance, relocating what was originally an interior area to the outdoors, transforming it into a passage that links the two courtyards—a space that guides movement while inviting pause and breath.
▼侧院空间,The side courtyard space © 黑曜石、李杨
通道东侧另设一条小径通往一旁的小茶室,小径入口处以两丛竹子留出宽不足米的间距,营造茶室的半遮敝性。中间墙体以局部镂空窑砖打开,又袒白了这条复廊的存在。
To the east of this passage, a narrow path branches off toward a small tea room. At its entrance, two clusters of bamboo create an opening less than a meter wide, partially veiling the tea room from view. A wall in the middle, punctuated by hollowed-out kiln bricks, subtly reveals the presence of this layered corridor.
▼镂空窑砖,The hollowed-out kiln bricks © 黑曜石、李杨
▼小茶室,The tea room © 黑曜石、李杨
▼空间细部,The space details © 黑曜石、李杨
茶馆
The tea house
茶馆位于建筑北隅,其形制为坡顶双开间之格局。几处窗景以深檐口温柔包裹,既过滤掉室外强光,也确保了窗户外展的安全性。洞口内侧嵌入花格窗棂,成为捕获窗外景物的多变界面。坐于室内,光影斑驳。当人与外界进行生动的互动体验之时,才能让人理解并确信,内在的诗意营造可以超越物理的边界。
The tea house is situated in the northern corner of the building, designed as a double-bay structure with a sloping roof. Its windows are gently framed by deep eaves, which filter out harsh sunlight while ensuring safety for the outward views. Lattice window grilles are embedded within the openings, serving as versatile interfaces that capture the shifting scenery outside. Inside, dappled light and shadows play across the space. It is through these vivid interactions between the occupant and the outer world that one comes to understand and believe that an inner poetry of space can truly transcend physical boundaries.
▼茶馆外观,The exterior of a tea house © 黑曜石、李杨
▼外观细部,The exterior details© 黑曜石、李杨
▼窗户外展,The window outwards © 黑曜石、李杨
▼茶馆室内空间,The interior space of a tea house © 黑曜石、李杨
▼室内空间细节,The interior space details © 黑曜石、李杨
嵌入花板的老木头梁柱与收集来的老布彼此融合,乘物游心,它们与室内的老家具共同赋予了空间中的古老灵趣。人们对一处景致的沉浸与玩味,实质上是人们在建筑空间中寻求自我认同和情感寄托的过程。
The aged wooden beams and columns, embedded with decorative panels, blend harmoniously with collected antique textiles. Together with the vintage furniture within, they embody the principle of “journeying through objects to free the mind,” imbuing the space with a timeless, soulful charm. Immersion and contemplation in a scene such as this are, in essence, a process through which individuals seek self-identity and emotional resonance within architectural space.
▼墙体开窗,Window opening on the wall © 黑曜石、李杨
▼乘物游心,Journeying through objects to free the mind © 黑曜石、李杨
▼小走廊空间,Small corridor space © 黑曜石、李杨
▼靠窗座位,Window seat © 黑曜石、李杨
▼家具细部,Details of furniture © 黑曜石、李杨
▼收集的老物件,Collected old items © 黑曜石、李杨
后院
The backyard
后院初始状态为典型的乡村土坡地形,其坡势偏陡,这种自然地貌在一定程度上限制了场地功能的多样性与使用舒适度,同时也对空间的整体营造形成了挑战。我们针对坡地局部实施填平处理,以此构建出观景与休憩平台。填平后的平台与北侧的竹林形成拔地而起的姿态,创造出一种垂直向上的空间张力。同时利用原本场地中五棵树的界定,分出了围墙区域、庭院小景和休息区,从而制造出一些水平游移的视点。以树来界定人物活动,它提供了自然的边界和参照,而人终究是自然的尺度。
The backyard was initially a typical rural slope, relatively steep in gradient. This natural topography limited both the functional diversity and user comfort of the site, while also posing challenges to the overall spatial design. We partially leveled the slope to create viewing and resting platforms. The newly flattened platform, together with the bamboo grove to the north, forms a vertically rising gesture, generating a sense of upward tension. Meanwhile, the existing five trees on site naturally define the wall area, courtyard vignettes, and resting zones, creating viewpoints that encourage horizontal wandering. Using trees to delineate human activity provides natural boundaries and reference—and ultimately, the human being is the measure of nature.
▼后院概览,The backyard overview © 黑曜石、李杨
▼户外座区,Outdoor seating area © 黑曜石、李杨
竹林
The bamboo grove
相较于前院所呈现的具有某些规制特征的园林范式,后院竹林则全然是一种挣脱既定范式、回归自然本真状态的存在。
In contrast to the front courtyard’s garden paradigm, which embodies certain characteristics of formal design, the bamboo grove in the rear courtyard represents a complete departure from established conventions—a return to the unadorned essence of nature.
▼竹林景观,Bamboo forest landscape © 黑曜石、李杨
竹林,自魏晋时期以降,便始终承载着各个时代文人雅士所追求的隐逸自由精神,成为一种跨越时空的文化符号与精神寄托。
Since the Wei and Jin dynasties, bamboo groves have consistently embodied the recluse spirit of freedom cherished by literati across generations, becoming a cultural symbol and spiritual refuge that transcends time and space.
▼隐逸的氛围,A reclusive atmosphere © 黑曜石、李杨
当游览者从前院步入后院竹林,所经历的游玩体验,是一场从古典园林所代表的精致典雅,迈向田园牧歌式自然空间的过渡;是从前院所蕴含的文人雅趣,转向后院竹林所独有的质朴野趣的转变过程。于此,场地所流淌的生命活力才是人能够获得精神愉悦的来源。
As visitors move from the front courtyard into the rear bamboo grove, the experience unfolds as a transition: from the refined elegance epitomized by classical gardens, toward the pastoral simplicity of natural space; from the scholarly lyricism imbued in the front yard, to the rustic spontaneity unique to the bamboo grove. Here, the flowing vitality of the place itself becomes the true source of spiritual delight.
▼平面布局图,Plan © 南京拙木空间设计
项目名称:闭门即是深山-半日松风茶空间设计
设计公司:南京拙木空间设计
设计主创:吴媛媛
设计团队:吴媛媛、员媛
设计范围:建筑改造、庭院设计、室内设计
施工时间:2025.02-2025.09
施工单位:南京斌赢装饰工程有限公司
项目地址:南京谷里薛家凹
建筑面积:室内200㎡,庭院1000㎡
摄影版权:黑曜石、李杨
主要材质:窑砖、旧木、艺术涂料、水洗石
Project Title:Peace Behind Doors— Pine Whisper Tea Space Design
Design Firm:Nanjing Zhuomu Space Design
Lead Designer:Wu Yuanyuan
Design Team:Wu Yuanyuan, Yun Yuan
Scope of Work:Building Renovation, Courtyard Design, Interior Design
Construction Period:Feb 2025 – Sep 2025
Construction Unit:Nanjing Binying Decoration Engineering Co., Ltd.
Project Address:Xuejia’ao, Guli, Nanjing
Floor Area:Interior 200 ㎡, Courtyard 1000 ㎡
Photography Credits:Obsidian, Li Yang
Key Materials:Kiln Brick, Reclaimed Wood, Art Paint, Washed Aggregate
客服
消息
收藏
下载
最近











































