查看完整案例

收藏

下载
在都柏林历史悠久的Liberties街区中心,Concrete Amsterdam事务所为自由之家 打造了室内设计。该项目是一座拥有371套公寓的高端共居社区,融合历史、社区与当代生活方式,展现出本地独特而充满活力的精神,同时为居民提供一种现代且紧密连接的生活方式。
In the heart of Dublin’s, The Liberties neighbourhood, Concrete Amsterdam designed the interior of Liberties House, a premium co-living development comprising 371 apartments. Blending history, community, and contemporary living, the project reflects the vibrant spirit of The Liberties while offering residents a modern and connected way of living.
▼公寓的共享空间,Public area © Roger O’Sullivan for Liberties House and Concrete
历史与设计的交汇
History meets design
设计灵感源自都柏林Liberties街区丰富的历史。这片街区以独立精神、创意产业与多彩的城市性格而闻名。通过引用当地的壁画、纺织传统、织造学校、酒吧与酿酒厂等文化线索,自由之家在建筑与室内空间中融合了传承与创新,将旧与新编织在一起,既延续了街区的自由精神,又满足当代都市居民的生活需求。
The design takes inspiration from the rich history of Dublin’s The Liberties, a district long known for its independence, creative industries, and vibrant character. Referencing its murals, textiles, weaving schools, pubs, and breweries, Liberties House combines heritage and innovation, weaving old and new into spaces that reflect the free spirit of the neighbourhood while meeting the needs of today’s urban residents.
▼丰富的空间层次,Rich spatial hierarchy © Roger O’Sullivan for Liberties House and Concrete
连接性的生活方式
A connected way of living
该项目专为被都柏林蓬勃的商业与文化氛围吸引的年轻专业人士打造,提供的不仅仅是居所,更是一种以连接、舒适与当代生活为核心的居住体验——从高效的私人公寓到充满思考的共享空间,皆体现了这种理念。
Created for the rise of young professionals drawn to Dublin’s thriving business and cultural scene, Liberties House offers more than just a place to live. Every space is designed with connection, comfort, and contemporary living in mind, from efficient private apartments to thoughtful communal areas.
▼商业与文化氛围,The business and cultural scene © Roger O’Sullivan for Liberties House and Concrete
共享空间是建筑设计的核心,体现了社区性、健康与互动的理念。不同于传统的功能分隔布局,这里将公共设施组织为一个开放的多层次景观,居民可以自由穿行于各个区域之间。
Shared spaces are at the heart of the building’s design, reflecting a philosophy of community, wellbeing, and interaction. Rather than isolating functions into separate rooms, the public amenities form an open, multi-level landscape where residents can move freely from one area to another.
▼公共社交空间,Public social space © Roger O’Sullivan for Liberties House and Concrete
▼阶梯活动区,Booth activity area © Roger O’Sullivan for Liberties House and Concrete
通过细微的高差变化、原有承重墙与柱子的节奏,空间自然形成分区。由都柏林艺术家Sean Atmos与Rachel Tuffy创作的充满活力的壁画与织物艺术品,为每个区域注入独特的身份认同感,同时在视觉上串联起整个空间。空间中设置了多样化的座位:既有适合私密交流或专注工作的卡座与高背座椅,也有用于休憩与社交的宽敞“客厅岛”。这种层次化布置使空间能够轻松适应不同的情绪与使用场景。
Natural zoning is achieved through subtle height differences, existing load-bearing walls, and columns, while vibrant murals and tapestry artworks by Dublin-based artists Sean Atmos and Rachel Tuffy give identity to each area and visually connect the spaces. More intimate seating options, such as booths or high-back designs for private conversations or focused work, are introduced alongside generous living room islands designed for lounging and socializing. This layering of settings makes the space effortlessly adaptable to different moods and ways of using it.
▼艺术品空间,The artwork space © Roger O’Sullivan for Liberties House and Concrete
▼艺术品细节,The artworks details © Roger O’Sullivan for Liberties House and Concrete
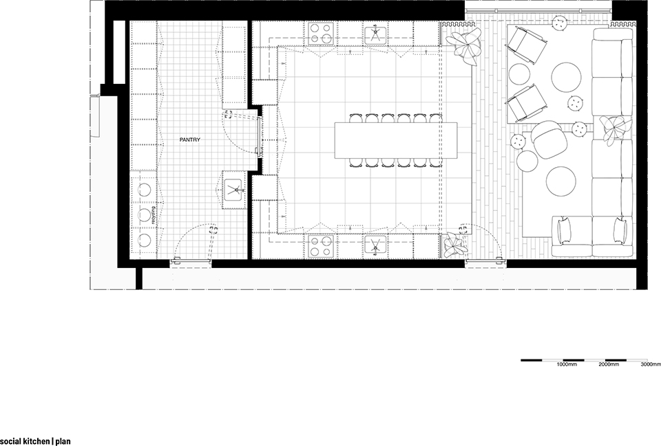
居民可以在多个空间中放松、工作或社交——从迎宾区与“俱乐部客厅”,到图书室、配有专用卡座与投影屏的活动区、公共厨房与休闲廊、游戏室、影院、健身房与瑜伽室。无论是亲密聚会还是大型活动,都能在此自然发生。这种空间开放性鼓励居民之间的交流与互动,塑造出真正意义上的共居社区。
Residents can relax, work, or socialize across a variety of spaces, from the welcome area and club living, to the library, the stage with dedicated seating booths and projection screen for various events, the master kitchen and events lounges, game room, cinema, gym and yoga studio. The spaces allow for both intimate gatherings and larger communal experiences. This spatial openness at Liberties House encourages engagement and interaction.
▼公共厨房,Social kitchen © Roger O’Sullivan for Liberties House and Concrete
▼游戏室,Game room © Roger O’Sullivan for Liberties House and Concrete
▼公共影院,Public cinema © Roger O’Sullivan for Liberties House and Concrete
▼健身房,Gym © Roger O’Sullivan for Liberties House and Concrete
▼瑜伽室,Yoga studio © Roger O’Sullivan for Liberties House and Concrete
贴心的公寓设计
Thoughtful apartments
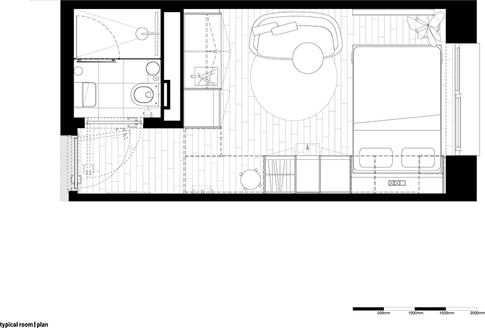
自由之家公寓项目的设计,旨在将紧凑空间转化为一种兼具舒适与私密的生活体验。虽然单间面积有限,但通过高效布局与精心细节,每一套公寓都显得完整而精致。设计团队采用一条贯穿空间的内置柜体作为结构主线,将厨房储物、床头柜、衣柜、收纳空间,甚至卧室入口都整合其中,如同一把“瑞士军刀”般多功能。这一设计高效地划分空间,使入口区域独立,同时增强卧室的私密性。
At Liberties House, the apartments are designed to transform compact living into an experience of space, comfort, and privacy. While the studios are modest in size, each apartment feels complete and refined through efficient lay out and thoughtful detailing. Concrete implemented a continuous built-in cabinet to structure the space, integrating all essential functions just like a Swiss knife. Pantry, bedstand, wardrobe, storage space and even the entrance to the bedroom are captured in it. This design zones the space efficiently, separating the entrance and making the bedroom more private.
▼多功能空间布局,Multi-functional spatial layout © Roger O’Sullivan for Liberties House and Concrete
由此产生的空间虽紧凑,却不显局促,反而显得宽敞而温馨。标准房型面积为17平方米,最大可达35平方米,以适应不同生活方式的需求。
The result is a home that feels generous despite its scale. The standard room is 17 sqm, with larger rooms up to 35 sqm also available, fitting a variety of lifestyles.
▼紧凑的空间,Compact space © Roger O’Sullivan for Liberties House and Concrete
▼地下室平面图,Basement floor plan © Concrete Amsterdam
▼一层平面图,Ground floor plan © Concrete Amsterdam
▼公寓标准平面,Typical room plan © Concrete Amsterdam
▼公共厨房平面图,Social kitchen plan © Concrete Amsterdam
project: Liberties House, Dublin
client: Crossroads Real Estate Concrete Amsterdam
Address: Oudezijds Achterburgwal 78A 1012 DR Amsterdam The Netherlands
Telephone: +31 (0)20 5200200
press@concreteamsterdam.nl
Instagram: @concreteamsterdam
Liberties House
Address: 118 Cork Street Dublin, Ireland
Instagram: @libertieshouse
Project details
Number of rooms: 371 rooms
Start design: 2022
Opening: September 2025
Project team concrete: Lisa Hassanzadeh, Rob Wagemans, Daisy Koppendraaier, Stevie Wesdorp, Rene Kroondijk, Elias Wolven, Sterre Csanyi Fritz, Sofie Ruytenberg, Joan Doyer, Nadèche de Paula Lopes
Interior design & styling: Concrete Amsterdam
Development manager: Grayling Properties
Executive architect: C+W O’Brien
Landscape architect: ThirtyThreeTrees
Photographer: Roger O’Sullivan
3D design and animation MdB3d
Mural artist: Sean Atmos
Woven art piece: Rachel Tuffy
Contractor: Elliott Group
Structural engineer: Waterman Moylan
MEP consultant: Waterman Moylan
Civil engineer: Waterman Moylan
Fire & DAC consultant: Michael Slattery Associates
Acoustics consultant: Amplitude Acoustics
BREEAM consultant: Catalyst
Lighting specialist: Willie Duggan Lighting
Fitted furniture amenity areas&rooms: P&L Group
Loose furniture: Total Fit Out
客服
消息
收藏
下载
最近
























