查看完整案例

收藏

下载
遥望总部大楼位于杭州市未来科技城联创街与海园路交汇处,总建筑面积约42000㎡。企业以“科技驱动的新消费服务平台”为定位,我们试图在通过建筑空间、形式、功能的整合,让建筑既成为城市景观的一部分,也能通过空间的方式助力企业激发灵感、孕育创意。
The Yowant Headquarters Building is situated at the intersection of Lianchuang Street and Haiyuan Road in Hangzhou Future Sci-Tech City, with a total floor area of approximately 42,000㎡. Positioned as a “technology-driven new consumption service platform,” the Company aims to integrate architectural space, form, and function, making the building both part of the urban landscape and a space that inspires creativity and fosters innovation.
▼建筑与城市,building and city© 直角建筑摄影
01 关照城市又独树一帜的建筑形态
01 A Building Form That Engages the City While Standing Out
用地周边建筑环境复杂,高低参差、界面多样。建筑如何在有限用地内,与城市产生更多互动并成为区域特别而不张扬的存在,成为设计的第一个思考。
The surrounding architectural environment is complex, with varying heights and diverse facades. The first design consideration was how the building could interact more with the city within the limited site while becoming a distinctive yet understated presence in the area.
▼入口广场,entrance plaza© 直角建筑摄影
建筑北侧通过边界退让与体量倾斜出挑的方式,形成最大尺度的主入口广场,主广场不仅为企业集会活动提供户外硬质场地,也作为与街道尺寸契合的城市公共小广场为城市使用者所用。
On the north side, the building steps back from the boundary and features a cantilevered volume, creating a spacious main entrance plaza. This plaza serves not only as an outdoor hardscape for corporate gatherings but also as a small public square that aligns with the street scale for urban users.
▼入口广场,entrance plaza© 直角建筑摄影
建筑南侧作为次要入口,在有限用地内通过下沉庭院、首层花园的设计,营造办公场所的独立小公园,并与不远处的城市河岸景观形成自然景观上的连续。同时优化办公小环境与城市环境。
The south side, serving as a secondary entrance, features a sunken courtyard and a ground-floor garden within the limited site, creating a secluded small park for the office space and forming a natural continuity with the nearby riverside landscape. This optimizes both the office micro-environment and the urban environment.
▼南侧花园与城市河岸景观,the south side and city waterfront© 直角建筑摄影
▼下沉庭院与南侧花园,sunken courtyard and south side garden© 直角建筑摄影
建筑限高45m,在无法通过高度“凸显”建筑存在感与特殊性时,设计在保证功能使用的前提下,结合空间布局,形成宛如钻石的多面体建筑形态。
With a height limit of 45m, the design ensures functionality while creating a multifaceted, diamond-like form through spatial layout, as the building cannot rely on height to stand out.
▼建筑不同的城市视角,different views of the building© 直角建筑摄影
建筑立面用阳极氧化铝板表达结构骨架。幕墙设计中,通过定制菱形夹具固定玻璃的方式实现隐框效果,精巧的菱形夹具配合玻璃的渐变肌理,让连续的大面积立面产生有节奏的变化,隐藏式通风器解决无开启扇下的空气流通问题。这些都是为了实现建筑立面的极致平滑与纯净。建筑充满未来感的形式、用材、细节,回应了科技企业的先锋性与独特性,让建筑在环境中“独树一帜”。
The facade uses anodized aluminum panels to express the structural framework. In the curtain wall design, custom diamond-shaped clamps secure the glass to achieve a frameless effect. The delicate clamps, combined with the glass’s gradient texture, create rhythmic variations across the large continuous facade. Hidden ventilators address airflow issues without visible opening sashes. These measures achieve an exceptionally smooth and pure facade. The building’s futuristic form, materials, and details reflect the pioneering and unique nature of the tech company, making it “stand out” in its environment.
▼建筑细节,building detail© 直角建筑摄影
▼夹具、隐藏式通风器、渐变玻璃,Fixtures, concealed ventilators, gradient glass© 直角建筑摄影
02 有限建筑体量中的丰富空间营造
02 Creating Rich Spatial Experiences within Limited Building Volumes
内部空间的设计,我们以南北贯通且局部通高的中庭贯通首层南北主次入口,并组织内部功能。中庭中交错的连廊,不仅是连接楼层、丰富路径体验的交通空间,也是建筑整体结构的一部分,同时为公司直播业务提供多样的直播空间场景。
For the interior space design, we created a north-south atrium with partial double-height ceilings to connect the primary and secondary entrances on the ground floor while organizing internal functions. The interwoven corridors within the atrium serve not only as circulation spaces linking floors and enriching pathway experiences but also as integral components of the building’s structure, while providing diverse live-streaming scenarios for the Company’s broadcasting operations.
▼通高的中庭空间,double-heights atrium space© 直角建筑摄影
▼中庭交错的楼梯,The crisscrossing stairs in the atrium© 直角建筑摄影
建筑首层布局商业、餐饮与少量办公,从空间、形式到功能,进一步强化建筑的公共性与开放性;2-8层是可根据现实使用需求灵活隔断的办公区;9层作为接待、展示及会所,并在面向城市公园的西南角布置空中观景露台。
The ground floor accommodates commercial, dining, and limited office spaces, enhancing the building’s public and open character through spatial, formal, and functional design. The 2nd to 8th floors feature flexible office areas with adaptable partitions to meet practical needs. The 9th floor functions as a reception, exhibition, and club space, with an elevated viewing terrace positioned at the southwest corner facing the urban park.
▼首层中庭空间,atrium space on the ground floor© 直角建筑摄影
至此,我们在有限的建筑体量内创造出不同尺度、开合、体验的丰富空间与使用场景。
Thus, within the limited building volume, we’ve crafted rich spatial experiences and versatile usage scenarios across varying scales and configurations.
▼项目鸟瞰,aerial view of the project© 直角建筑摄影
▼空中观景露台与城市,roof terrace and the city© 直角建筑摄影
遥望总部的设计,是我们对城市、自然、建筑、使用者多维考量下的空间实践,也是我们对遥望企业精神的建筑表达。
The design of Yowant Headquarters represents our spatial practice considering multiple dimensions of city, nature, architecture, and users, as well as our architectural interpretation of Yowant’s corporate spirit.
▼总平面图,site plan©gad杰地设计
▼一层二层平面图,ground floor and first floor plan©gad杰地设计
▼三层及七层平面图,level 3 and level 7 floor plan©gad杰地设计
▼立面图,elevation©gad杰地设计
▼剖面图,section©gad杰地设计
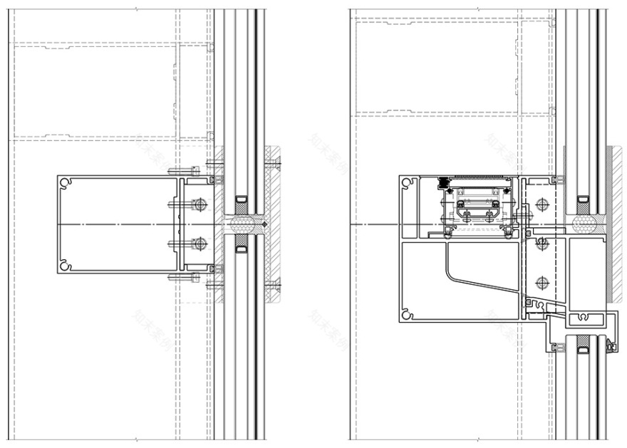
▼夹具、通风器节点,Fixture, ventilator detail©gad杰地设计
项目名称:遥望总部大楼
项目地点:浙江杭州
详细地址:浙江省杭州市余杭区五常街道融谷巷8号1幢
类型:办公
建成时间:2024年
用地面积:10461㎡
建筑面积:41862.26㎡
容积率:2.5
业主:杭州遥望网络科技有限公司
设计单位:gad杰地设计
室内设计:申江海工作室
景观设计:杭州建筑设计研究院
照明设计:杭州建筑设计研究院
幕墙设计:gad杰地设计
机电设计:gad杰地设计
设计总监:张微
建筑设计:陈钢/毛亮/许翔/宋春亚
技术支持:(结构)章钢雷/郭俊峰 (设备)刘荣/潘小艳/王跃/陈德闯/傅旭辉/洪理靖/洪至彦 (幕墙)夏冯慧/刘乾龙/陈常青/赵磊/胡嘉媛
摄影:直角建筑摄影、陈钢
Project Name: Yowant Headquarters Building
Location: Hangzhou, Zhejiang
Address: Building 1, No. 8, Ronggu Lane, Wuchang Sub-district, Yuhang District, Hangzhou, Zhejiang Province
Type: Office
Year of Completion: 2024
Land Area: 10,461㎡
Gross Floor Area: 41,862.26㎡
Plot Ratio: 2.5
Client: Hangzhou Yowant Network Technology Co., Ltd.
Design Unit: gad
Interior Design: Shen Jianghai Studio
Landscape Design: Hangzhou Architectural Design & Research Institute Co., Ltd.
Lighting Design: Hangzhou Architectural Design & Research Institute Co., Ltd.
Curtain Wall Design: gad
MEP Design: gad
Design Director: Zhang Wei
Architectural Design: Chen Gang/Mao Liang/Xu Xiang/Song Chunya
Technical Support: (Structure) Zhang Ganglei/Guo Junfeng (MEP) Liu Rong/Pan Xiaoyan/Wang Yue/Chen Dechuang/Fu Xuhui/Hong Lijing/Hong Zhiyan (Curtain Wall) Xia Fenghui/Liu Qianlong/Chen Changqing/Zhao Lei/Hu Jiayuan
Photography: Right Angle Architectural Photography, Chen Gang
客服
消息
收藏
下载
最近




























