查看完整案例

收藏

下载
阿姆斯特丹施因克尔河南岸矗立着一栋全面翻新的办公楼,它将过去与未来巧妙衔接。自2024年改造完成以来,这座建筑——最初由Arthur Staal于1962年设计——通过Office Winhov的活化与扩建,委托方为Flow Development,重新焕发了重要意义。Staal最具代表性的作品之一是壳牌大厦(Shell Tower),如今被称为A’DAM Tower。
On the southern bank of the river Schinkel in Amsterdam stands a thoroughly renovated office building that bridges past and future. Since its transformation in 2024, the structure – originally designed by Arthur Staal in 1962 – has gained renewed significance through a revitalisation and extension by Office Winhov, commissioned by Flow Development. Among Staal’s most iconic works is the Shell Tower, now known as the A’DAM Tower.
▼外观概览,Exterior view© Stefan Müller
Staal-Kade项目对Office Winhov意义重大,该事务所在长期实践中表现出对Staal建筑的深厚认同——最显著的例子是他们对Staal另一作品Frederiksplein 1的改造。Office Winhov还出版过一期以Staal为主题的《Local Heroes》特刊,由Marcel Lok整理。发布活动中,Staal的女儿Karin及孙子Arthur出席了Frederiksplein 1和Staal-Kade等建筑的导览参观。
The Staal-Kade project holds meaning for Office Winhov, which has long demonstrated an affinity with Staal’s architecture – most notably in its transformation of Frederiksplein 1, another of his designs. Office Winhov also published a Local Heroes issue dedicated to Staal, compiled by Marcel Lok. The launch event included guided tours of Staal’s buildings – such as Frederiksplein 1 and Staal-Kade – attended by his daughter Karin and grandson Arthur.
▼大楼临河而建,The building is built along the river © Tom de Kort(上),Stefan Müller(下)
▼远观,Distant view© Tom de Kort
▼附近街道看向大楼,Looking from nearby street© Stefan Müller
传承与创新的和谐
Heritage and Innovation in Harmony
经过数十年的高强度使用,Staal-Kade建筑亟需重大翻新及可持续性升级。此次改造不仅打造了现代且高韧性的办公环境,也优化了施因克尔河沿岸的公共空间。
Following decades of intensive use, the Staal-Kade building required significant renovation and sustainability upgrades. Its transformation has not only created a contemporary and resilient workplace but has also helped enhance the surrounding public space along the Schinkel.
▼大楼1974年全貌,The building in 1974 © beeldbank Amsterdam
Staal标志性的建筑手法——水平底座之上的垂直塔楼——在本项目设计中得以核心保留,并呼应了他在A’DAM Tower的设计。在Staal-Kade,这一构图被细致保留与加固。原有混凝土构件经过清洁和修复,保持其特有质感。新增的两层楼遵循现有立面的节奏,同时通过现代材料与比例加以区分。
Staal’s characteristic architectural approach – a vertical tower atop a horizontal podium – is central to this design and echoes his work on the A’DAM Tower. At Staal-Kade, this composition has been carefully preserved and reinforced. The original concrete elements have been cleaned and restored, preserving their characteristic appearance. Two new storeys have been added that follow the rhythm of the existing façade but are distinguished by contemporary materials and proportions.
▼大楼近景,Close view© Stefan Müller
透明的入口大厅基于Staal原始设计全面更新,并增设了此前未实现的独特雨棚。改造后的底座立面进一步强调水平感,同时拓宽了向绿地与河流的视野。最终呈现的是一栋层次分明的建筑,历史元素与现代元素和谐共存。▼项目模型,model© Office Winhov
The transparent entrance hall has been fully renewed, based on Staal’s original design, and now includes the distinctive canopy that was never previously realised. The redesigned podium façade further emphasises horizontality and opens views across the greenery and river. The result is a thoughtfully layered building in which historic and modern elements coexist.
▼建筑立面,Facade© Stefan Müller
室内与可持续性达A++++
Interior and Sustainability to A++++
在保留结构性混凝土外壳的基础上,室内空间进行了全新设计。空间布局、材质饰面及建筑系统全面现代化,以提供舒适性、灵活性与可持续性。项目的一大挑战是,在有限的层高条件下整合新型服务与技术。改造后的办公楼可适应多样化工作模式,在开放式空间与封闭办公室之间实现平衡。
While the structural concrete shell has been retained, the interior has been completely reimagined. The spatial layout finishes and building systems have all been modernised to provide comfort, flexibility and sustainability. A key challenge was to incorporate new services and technologies within the building’s limited floor-to-ceiling height. The renovated office accommodates a variety of working styles, offering a balance between open-plan spaces and enclosed offices.
▼立面近景,Facade close view© Stefan Müller
▼入口处,Entrance© Stefan Müller
此次改造的另一大亮点在于其可持续性策略。通过保留现有结构,实现材料的最大化再利用;立面升级提高了保温性能,系统设备更换为高能效方案,屋顶增设了绿色屋顶和光伏板。成果卓越:Staal-Kade获得BREEAM杰出认证(Outstanding)及A++++能源等级——荷兰可达的最高分。▼轴测分析图,axo© Office Winhov
A major strength of the redevelopment lies in its sustainability strategy. By conserving the existing structure, material reuse was maximised. The façades have been upgraded with improved insulation, systems have been replaced with energy-efficient alternatives, and the roof has been fitted with green roofs and photovoltaic panels. The outcome is exceptional: Staal-Kade achieved BREEAM Outstanding certification and an A++++ energy rating – the highest achievable score in the Netherlands.
▼接待处,Reception© Tom de Kort
▼休息大厅,Entrance hall© Stefan Müller
▼休闲座椅,Seating area© Tom de Kort
绿色城市汇聚点
Green Urban Meeting Point
Staal-Kade位于阿姆斯特丹南区城市景观向绿地过渡的边缘,已成为该区域新的重要节点。景观事务所Deltavormgroep将此前被忽视的河岸改造为充满活力的公共空间。曾经被忽略的Jaagpad步道如今成为连接Nieuwe Meer与Amsterdamse Bos的新步行路线的重要组成部分。底层的咖啡馆也成为路线的起点。河岸和建筑均冠以Staal-Kade之名,以向Arthur Staal致敬。
▼预制系统分析图,prefab system © Office Winhov
Situated on the edge of Amsterdam-Zuid, where the urban landscape transitions into green space, Staal-Kade has become a new anchor point for the area. Landscape architects Deltavormgroep transformed the previously neglected riverbank into a vibrant public realm. The Jaagpad, once overlooked, now forms a key part of a new walking route linking to the Nieuwe Meer and the Amsterdamse Bos. A café on the ground floor acts as the starting point of this route. Both the river side and the building now bear the name Staal- Kade – paying tribute to Arthur Staal.
▼开敞的内部空间,Open interior space © Stefan Müller
▼宽大的窗户,Large windows © Stefan Müller
有意义的再利用
Meaningful Reuse
Staal-Kade体现了Office Winhov的理念:对现有建筑的再利用不应被视为局限,而是一种创造有意义且可持续建筑的机会。
Staal-Kade reflects Office Winhov’s belief that the reuse of existing buildings should not be seen as a limitation, but as an opportunity to create meaningful and sustainable architecture.
▼露台,Terrace© Stefan Müller
该项目展示了战后建筑的精心改造如何助力可持续城市未来。通过对原有建筑的尊重性融合与现代元素的结合,Staal-Kade呈现了既尊重历史又拥抱创新的办公空间。建筑强化了周边环境的身份感,并在水边提供了富有启发性的工作环境。对于Office Winhov而言,Staal-Kade代表了他们与Arthur Staal建筑遗产长期互动的有意义延续。
This project shows how the careful transformation of post-war buildings can support a sustainable urban future. By respectfully combining original architecture with contemporary elements, Staal-Kade delivers a workplace that honours its heritage while embracing innovation. The building strengthens the identity of its surroundings and offers an inspiring working environment by the water. For Office Winhov, Staal-Kade represents a meaningful continuation of their long-standing engagement with Arthur Staal’s architectural legacy.
▼项目区位,site plan© Office Winhov
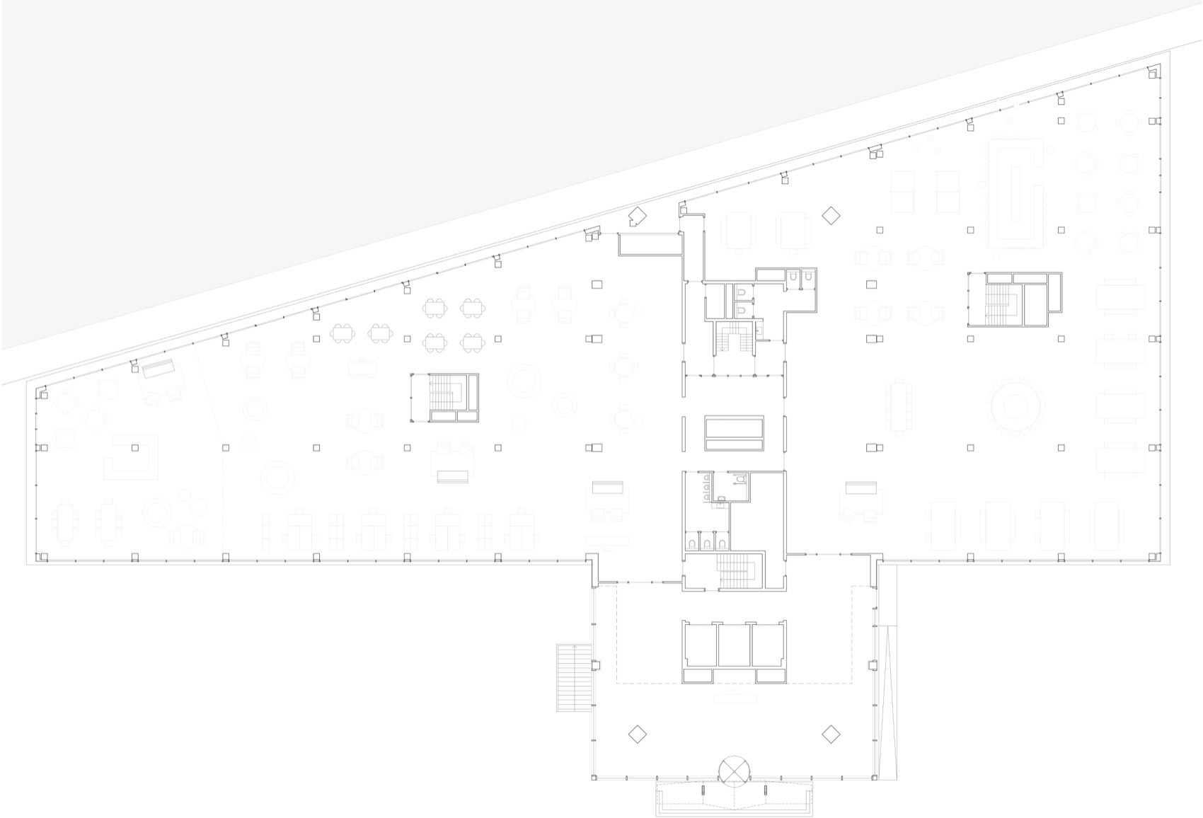
▼首层平面图,ground floor plan© Office Winhov
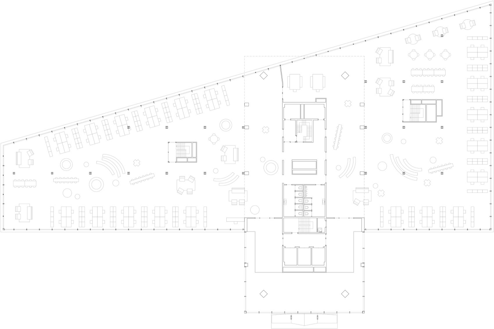
▼二层平面图,first floor plan© Office Winhov
▼三层平面图,second floor plan© Office Winhov
▼四层平面图,third floor plan© Office Winhov
▼五层平面图,forth floor plan© Office Winhov
▼六层平面图,fifth floor plan© Office Winhov
Project: Staal-Kade
Address: Rijnsburgstraat 9-11, 1059 AT Amsterdam
Architecture: Office Winhov, Amsterdam
Design team: Jan Peter Wingender, Caroline Versteden, Carlo van Steen, Alice Dicker
Programme: Renovation, transformation and sustainability upgrade of existing office building
Gross floor area:
• new base (incl. roof houses): 3,883.90 m²
• existing office tower: 6,011.20 m²
• new crown: 1,369.70 m²
Net floor area:
• new base (incl. roof houses): 3,632.80 m²
• existing office tower: 5,103.80 m²
• new crown: 1,195.50 m²
Sustainability rating: BREEAM Outstanding A++++
Sustainability measures:
• sustainable landscaping, enhancing biodiversity
• PV panels
• water absorption and water infiltration
• demountable façade cladding
• insulation of existing building, interior
Listed status: N/A
Original design: architect Arthur Staal
Design period: from 13/05/2021 to 10/07/2023 (SO – UO)
Completion date: 29 May 2024
Client: Flow Development
User: currently multi-tenant
Main contractor: G&S Bouw b.v.
Landscape architecture: Deltavormgroep BV
Structural engineer: Van Rossum Raadgevende Ingenieurs b.v.
Building services: Arcadis Nederland B.V., Bosman Bedrijven
Building physics: DGMR
Quantity surveying: BBN
Fire safety: DGMR
Photography:
Historical images: Beeldenbank Amsterdam
Visualisations/renders: Nanopixel
Photos existing situation: Luuk Kramer
Photos new situation: Tom de Kort, Stefan Müller
客服
消息
收藏
下载
最近

































