查看完整案例

收藏

下载
松风
Whispering Pines
“松风“作为历代文人所喜爱的典故,它指代了一种超越了单纯的听觉对象所激发的真实知觉体验——静听松风、自在闲逸。自宋以降,“松风”也指代”茶事”,象征煮茶时沸腾的如松涛般的水声。
▼入口概览
半日松风,是位于南京谷里薛家凹的一方茶事小天地。关上园门,用心呵护这一块小小的天地,园外的一切皆付笑谈中。
▼入口细节
前院
The Front Courtyard
从最初的古代文化开始,园林就是一种幸福的、普遍的异托邦。——福柯
▼由喧嚣走向宁静
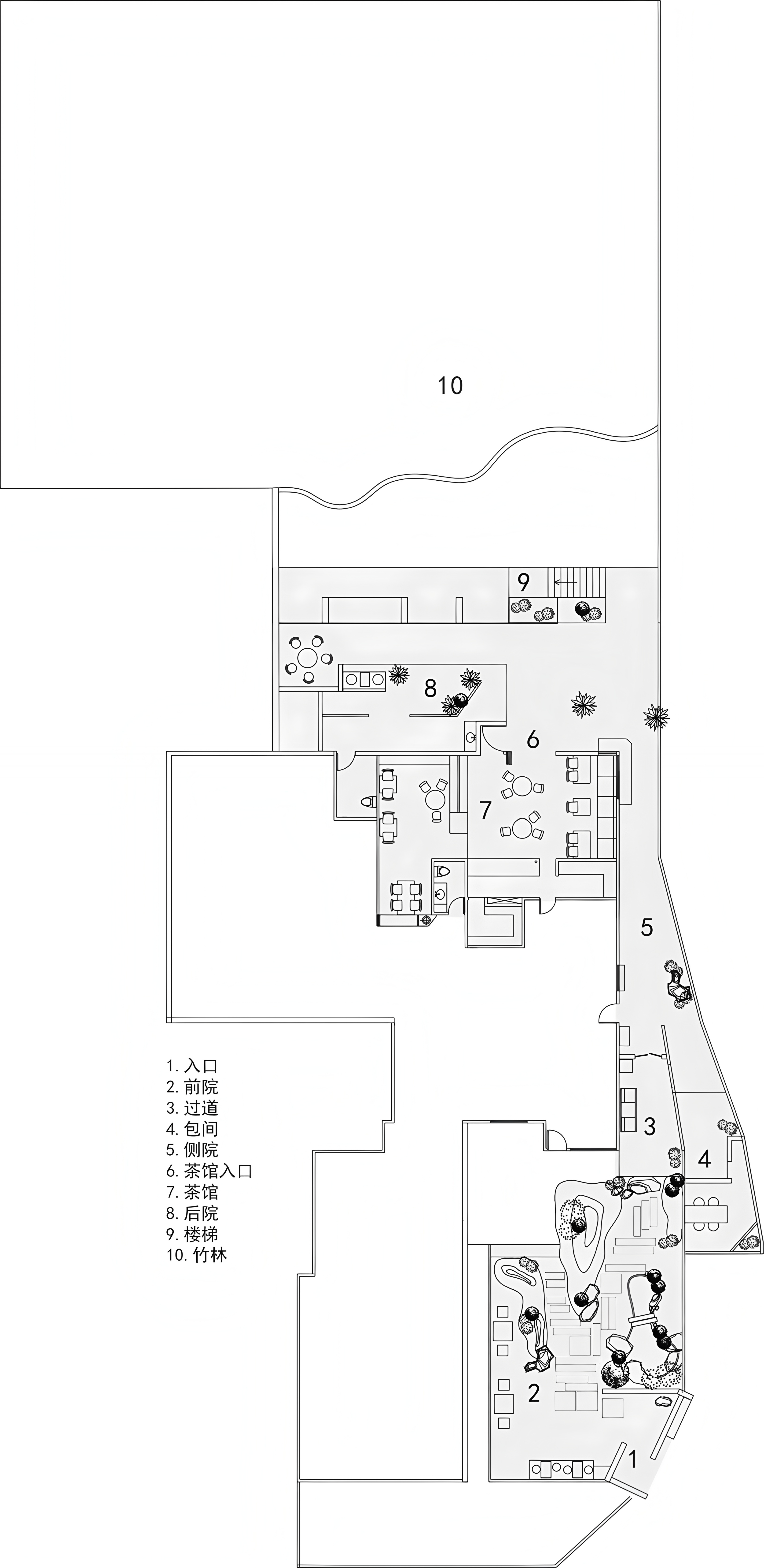
整个院落以中心区域的建筑群大致切分为四个单元:前院、侧院、后院和最北端的竹林。不同的院落,游园的重点各不相同。但他们串联在一起,是一段完整的由喧嚣走向宁静的叙事过程。▼精致的小径
前院山门内外入口错开,形成入门遮蔽转角。进门左侧为喝茶凉亭,它与山门连成一高一低的节奏;右侧置入松石水景,将天光水光一并纳入。
▼喝茶凉亭
园林的灵魂在于它是按照人的意愿,庇护最大限度的宁静。在这个咫尺方圆内,将自然缩小到适宜人体的尺度,它便成为抵御现代生活侵蚀的庇护所,从而与那些寻求与自然相连接的人们共通。
▼与自然相连接
侧院
The Side Courtyard
前院至建筑的一侧由植被坡地蜿蜒成两条路径,一条通往工作区,另一条连接侧院直通后院的茶馆。我们将侧院入口的建筑立面打开,把原本位于室内的区域置于室外,使它成为连接两个院落的通道,引导呼吸与停留。
▼侧院空间
▼镂空窑砖
通道东侧另设一条小径通往一旁的小茶室,小径入口处以两丛竹子留出宽不足米的间距,营造茶室的半遮敝性。中间墙体以局部镂空窑砖打开,又袒白了这条复廊的存在。
▼小茶室
茶馆
The tea house
茶馆位于建筑北隅,其形制为坡顶双开间之格局。几处窗景以深檐口温柔包裹,既过滤掉室外强光,也确保了窗户外展的安全性。洞口内侧嵌入花格窗棂,成为捕获窗外景物的多变界面。坐于室内,光影斑驳。当人与外界进行生动的互动体验之时,才能让人理解并确信,内在的诗意营造可以超越物理的边界。
▼茶馆外观
▼外观细部
▼茶馆室内空间
嵌入花板的老木头梁柱与收集来的老布彼此融合,乘物游心,它们与室内的老家具共同赋予了空间中的古老灵趣。人们对一处景致的沉浸与玩味,实质上是人们在建筑空间中寻求自我认同和情感寄托的过程。
▼墙体开窗
▼乘物游心
▼小走廊空间
▼靠窗座位
后院
The backyard
后院初始状态为典型的乡村土坡地形,其坡势偏陡,这种自然地貌在一定程度上限制了场地功能的多样性与使用舒适度,同时也对空间的整体营造形成了挑战。我们针对坡地局部实施填平处理,以此构建出观景与休憩平台。填平后的平台与北侧的竹林形成拔地而起的姿态,创造出一种垂直向上的空间张力。同时利用原本场地中五棵树的界定,分出了围墙区域、庭院小景和休息区,从而制造出一些水平游移的视点。以树来界定人物活动,它提供了自然的边界和参照,而人终究是自然的尺度。
竹林
The bamboo grove
相较于前院所呈现的具有某些规制特征的园林范式,后院竹林则全然是一种挣脱既定范式、回归自然本真状态的存在。
竹林,自魏晋时期以降,便始终承载着各个时代文人雅士所追求的隐逸自由精神,成为一种跨越时空的文化符号与精神寄托。
▼隐逸的氛围
当游览者从前院步入后院竹林,所经历的游玩体验,是一场从古典园林所代表的精致典雅,迈向田园牧歌式自然空间的过渡;是从前院所蕴含的文人雅趣,转向后院竹林所独有的质朴野趣的转变过程。于此,场地所流淌的生命活力才是人能够获得精神愉悦的来源。
项目名称:闭门即是深山-半日松风茶空间设计
设计公司:南京拙木空间设计
设计主创:吴媛媛
设计团队:吴媛媛、员媛
设计范围:建筑改造、庭院设计、室内设计
施工时间:2025.02-2025.09
施工单位:南京斌赢装饰工程有限公司
项目地址:南京谷里薛家凹
建筑面积:室内200㎡,庭院1000㎡
摄影版权:黑曜石、李杨
主要材质:窑砖、旧木、艺术涂料、水洗石
售价: 1 金钱
[]
客服
消息
收藏
下载
最近











































