查看完整案例

收藏

下载
项目名称: 杭州遥望总部大楼
位置:杭州
设计单位:gad杰地设计
图片数量:26张
遥望总部大楼位于杭州市未来科技城联创街与海园路交汇处,总建筑面积约42000㎡。企业以“科技驱动的新消费服务平台”为定位,我们试图在通过建筑空间、形式、功能的整合,让建筑既成为城市景观的一部分,也能通过空间的方式助力企业激发灵感、孕育创意。
▼建筑与城市 © 直角建筑摄影
01 关照城市又独树一帜的建筑形态
用地周边建筑环境复杂,高低参差、界面多样。建筑如何在有限用地内,与城市产生更多互动并成为区域特别而不张扬的存在,成为设计的第一个思考。
▼入口广场 © 直角建筑摄影
建筑北侧通过边界退让与体量倾斜出挑的方式,形成最大尺度的主入口广场,主广场不仅为企业集会活动提供户外硬质场地,也作为与街道尺寸契合的城市公共小广场为城市使用者所用。
▼入口广场 © 直角建筑摄影
建筑南侧作为次要入口,在有限用地内通过下沉庭院、首层花园的设计,营造办公场所的独立小公园,并与不远处的城市河岸景观形成自然景观上的连续。同时优化办公小环境与城市环境。
▼南侧花园与城市河岸景观 © 直角建筑摄影
▼下沉庭院与南侧花园 © 直角建筑摄影
建筑限高45m,在无法通过高度“凸显”建筑存在感与特殊性时,设计在保证功能使用的前提下,结合空间布局,形成宛如钻石的多面体建筑形态。
▼建筑不同的城市视角 © 直角建筑摄影
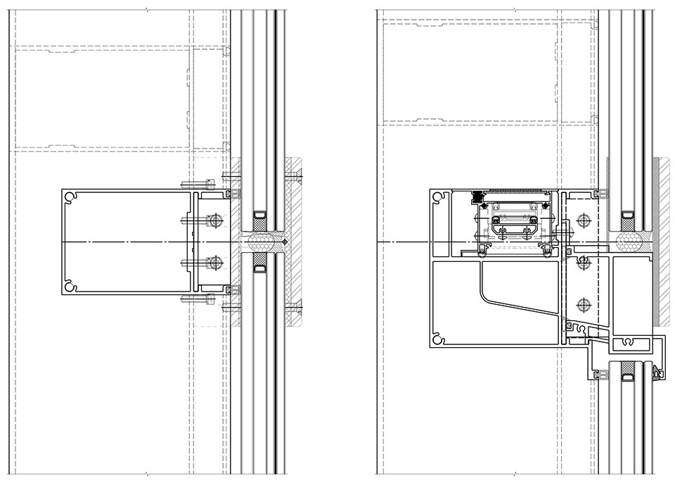
建筑立面用阳极氧化铝板表达结构骨架。幕墙设计中,通过定制菱形夹具固定玻璃的方式实现隐框效果,精巧的菱形夹具配合玻璃的渐变肌理,让连续的大面积立面产生有节奏的变化,隐藏式通风器解决无开启扇下的空气流通问题。这些都是为了实现建筑立面的极致平滑与纯净。建筑充满未来感的形式、用材、细节,回应了科技企业的先锋性与独特性,让建筑在环境中“独树一帜”。
▼建筑细节© 直角建筑摄影
▼夹具、隐藏式通风器、渐变玻璃 © 直角建筑摄影
02 有限建筑体量中的丰富空间营造
内部空间的设计,我们以南北贯通且局部通高的中庭贯通首层南北主次入口,并组织内部功能。中庭中交错的连廊,不仅是连接楼层、丰富路径体验的交通空间,也是建筑整体结构的一部分,同时为公司直播业务提供多样的直播空间场景。
▼通高的中庭空间 © 直角建筑摄影
▼中庭交错的楼梯 © 直角建筑摄影
建筑首层布局商业、餐饮与少量办公,从空间、形式到功能,进一步强化建筑的公共性与开放性;2-8层是可根据现实使用需求灵活隔断的办公区;9层作为接待、展示及会所,并在面向城市公园的西南角布置空中观景露台。
▼首层中庭空间 © 直角建筑摄影
至此,我们在有限的建筑体量内创造出不同尺度、开合、体验的丰富空间与使用场景。
▼项目鸟瞰 © 直角建筑摄影
▼空中观景露台与城市 © 直角建筑摄影
遥望总部的设计,是我们对城市、自然、建筑、使用者多维考量下的空间实践,也是我们对遥望企业精神的建筑表达。
▼总平面图 © gad杰地设计
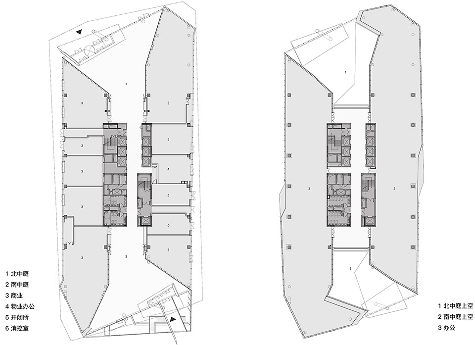
▼一层二层平面图 © gad杰地设计
▼三层及七层平面图 © gad杰地设计
▼立面图 © gad杰地设计
▼剖面图 © gad杰地设计
▼夹具、通风器节点 © gad杰地设计
项目名称:遥望总部大楼项目地点:浙江杭州详细地址:浙江省杭州市余杭区五常街道融谷巷8号1幢类型:办公建成时间:2024年用地面积:10461㎡建筑面积:41862.26㎡容积率:2.5业主:杭州遥望网络科技有限公司设计单位:gad杰地设计室内设计:申江海工作室景观设计:杭州建筑设计研究院照明设计:杭州建筑设计研究院幕墙设计:gad杰地设计机电设计:gad杰地设计设计总监:张微建筑设计:陈钢/毛亮/许翔/宋春亚技术支持:(结构)章钢雷/郭俊峰 (设备)刘荣/潘小艳/王跃/陈德闯/傅旭辉/洪理靖/洪至彦 (幕墙)夏冯慧/刘乾龙/陈常青/赵磊/胡嘉媛摄影:直角建筑摄影、陈钢
客服
消息
收藏
下载
最近




























