查看完整案例

收藏

下载
位于广州罗浮宫家居艺术中心的巢象被动房广州体验中心试图构建一个静谧的庇护所。它不仅仅是对尖端建筑科技的展示,更是一次关于空间本质、身体感知的探索。设计师与甲方都不认可传统机电暖通展厅对设备与管道的直白陈列,转而以“体验至上”为核心,塑造一个能让人直观感受超低能耗建筑所带来的舒适环境的生命容器。
设计的核心是“无为而治”。设计师相信,最高级的技术是让人感受不到技术的存在。被动房的五大系统——高性能保温、气密性、节能门窗、遮阳与新风热回收——在此并非作为冰冷的展品,而是全部退隐于空间背后,成为默默运作的“背景”。
设计师的职责,是将这些技术所达成的物理结果——恒温、恒湿、恒氧、恒静——转化为人体可感可知的舒适体验。因此,空间被定义为一个包容性的场域:它可以是茶室,是办公室,是书房,是任何允许静谧发生的地方。人们在此所做的任何事,都成为体验舒适本身。
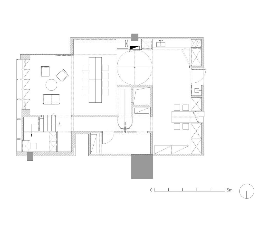
在空间布局上,设计师运用了“丰富的间隔,但又相互通透”的方式。墙体与洞口、材质的变化划分出不同的功能区域,但视线与空气依然可以自由流动。这种“隔而不断”的手法,既保证了空间的领域感与趣味性,又确保了被动房所追求的均匀、无死角的物理环境。
新风系统带来的24小时洁净空气,如同无形的溪流,在每一个间隔间悄然穿行,让整个空间成为一个会呼吸的“天然氧吧”。
然而,在通透的整体中,设计师特意创造了一些角落。这些角落,是对广阔空间的微妙收束。正如法国哲学家加斯东·巴什拉在《空间的诗学》中所言:“角落是对宇宙的一种否定。”在这样一个开放通透的场域里,角落提供了一种珍贵的否定——它否定了外界的纷扰,否定了无尽的虚空,为个体创造了一个可以退缩、沉思、与自己对话的安定之所。
每一个角落,都是一次内向的探索,它让宏大的“宇宙”尺度回归到亲密的、可把握的“居所”尺度,给予使用者深刻的安全感与归属感。
室内空间装饰选用了水泥涂料(砼泥)与木,以及少量石材。它们构成了空间在视觉与触觉上的基调。
灰色水泥给人的感觉往往是理性与永恒。它质朴的灰色调和原始肌理,是房间里坚固围护结构与高效性能的无声宣言。它承载着空间的“骨架”,冷静而可靠。
在这个空间里设计师做了个有趣的小暗示,既所有灰色水泥涂抹的墙面和天花,内部都是保温层。而木质墙面则是单纯的隔断或家具。表里如一的松木胶合板,柔化了水泥的冷静,为空间注入宜人的温度与亲和力。
两种材料的刻意区别是理性计算与感性体验的平衡。同时设计师在壁龛中设置了扩香石。它以缓慢、持久的方式释放淡淡自然气息,有意或无意地调动访客的嗅觉,与恒温恒湿的体感、静谧的听觉、质朴的视觉与触觉交织在一起,共同编织出一幅全感官的舒适图景,让“健康住宅”的概念用最质朴的方式变得可被完整感知
这个小空间最终是一个关于“回归”的提案。它让建筑回归其庇护的本质,让技术回归其服务生活的初心,让人回归其身心安宁的本真状态。
在这里,岭南的酷暑与回南天的潮湿被优雅地隔绝在外,留下的是一个干爽、舒适、静谧的内部世界。它通过通透的布局与沉思的角落,既提供了交流的自由,也捍卫了独处的尊严。这不仅仅是一个展示未来居住方式的空间,其本身,就是现实生活的一首宁静诗篇。
项目名称|巢象被动房广州体验中心
项目地点|中国 广州
设计主创|谭立予
驻场设计|张莉
设计团队|吴道颖,陈家林
主供应商|TONG砼馆、木梨家具、iDi、欧艺斯、美墅馆、亨特窗饰、一盏盏照明
设计时间|2025年3月
完工时间|2025年8月
项目摄影|林灿宇
项目视频|深意文化
谭立予谭立予设计师工作室 首席设计师
谭立予设计师工作室,位于广州,项目包括住宅,办公室,私人会所等室内设计,同时也涉及建筑与景观的方案设计。
客服
消息
收藏
下载
最近














































